2024(珠海·华发横琴玺)首页网站-横琴玺(珠海横琴岛)欢迎您-华发横琴玺楼盘详情/价格/户型
扫描到手机,新闻随时看
扫一扫,用手机看文章
更加方便分享给朋友
万丰海岸城瀚府二期- 启幕城芯繁华 ��主力建面89-188平3-6房㎡ 全能户型
开发商售楼处24小时电话:400-065-2898(预约咨询热线)现场详细解答丨项目介绍丨户型图丨在售房源丨特价房丨学校丨交通位置丨样板房丨小区图片丨交房时间丨周边配套

【项目名称】海岸城
【占地面积】2平方公里
【建筑面积】超500万
【推售产品】100-120-143-188㎡3-4房
【交付标准】送品质简装
【交房时间】待定
【产权年限】70年
【房产性质】住宅
【总户数】待定
【车位比】1:1.1
【容积率】待定
【绿化率】40%
【梯户比】4梯6户/4梯5户/3梯3户
【开发商】海岸城
【物业公司】深圳市海岸物业管理集团有限公司
【项目地址】宝安区11号线马鞍山站-深外宝安学校旁
依托大前海+宝安西部中心规划,沙井符合城市发展趋势,正处在价值快速增长通道,未来就是第二个“宝安中心区”。
万丰海岸城诞生在这里,就像南山海岸城20年前诞生在后海,注定会和时代一同起飞。

万丰区域整体城市更新项目包含A、B、C三区,合计总建面超500万平,包含商业、住宅、产业、甲级写字楼、高端酒店、学校教育、文化休闲、交通枢纽、生态公园等全维业态。
2倍于华润城的体量、更齐全的业态功能,深圳罕见,完全有改变城市格局、繁荣西部中心的客观条件。

万丰海岸城邻近11号线马安山站,7站直达宝中、8站直抵前海,还能直线快速通达后海、红树湾、福田中心、车公庙枢纽,出行非常便捷,工作和生活可以快速切换。

万丰海岸城拥有深圳外国语学校(集团)宝安学校(本部)、深圳外国语学校(集团)宝安学校北校区(在建)两所名校,规划学位共计7000+,非常充足。
深外宝本部2025年中考成绩非常优异,294人参考,500分以上就有160人,560分(十大录取分数线)以上49人,最高分588分。
注意,深外宝是宝安首个引入的深圳“四大名校”,而且是本部,又与在建的北校区形成“双深外校区”格局,预计将推动区域教育竞争力成为宝安北的天花板。
南山海岸城落成时,是深圳最大的室内休闲娱乐中心,开启深圳商业滨海时代。
万丰海岸城购物中心则是宝安北目前最大的商业综合体,规模高达约18万平,而且与海岸公园连为一体,是深圳西部腹地首个“公园里的mall”,目前已经近300+品牌入驻,其中超100家都是宝安北首店。
可以说,万丰海岸城购物中心延续南山海岸城影响力,再一次在深圳西部开启了一个商业新时代。

万丰海岸城购物中心旁边还有宝安首家山姆会员店(已经挂牌,预计10月底开业),作为全球高端仓储式零售的“顶流”,山姆凭借全球甄选的品质、高端的会员服务,一直备受中产及以上阶层的欢迎。
它的落地,不仅能为万丰海岸城带来高质人流、消费流,更重要的是,也将会给区域带来一种新的生活方式。
万丰海岸城离11号线地铁口最近的住宅,约300米就是马安山站,轻松直达、从容通勤。
楼下就是三大公园:大钟山公园、万丰体育公园、海岸公园。
一步通勤、一步公园,生活场景随意切换,“鱼与熊掌兼得”。
此外,继去年万丰海岸城购物中心开业后,山姆会员店10月底也将开门迎客,同时,深圳外国语学校(集团)宝安学校北校区正在建设中。
相较于A区住宅,檀府迎来了更便捷的交通、更优越的生态景观、更丰富的商业、教育资源,配套大幅升级。
2、品质升级,增配风雨连廊。
檀府的主入口,打造了约8m高、超20m宽的超级门楼,一眼望过去,满是尊崇气派。

入内,散发着现代东方禅意的园林景观,由日本知名景观设计师户田芳树亲手打造,对,就是南山半山豪宅汉京九榕台(10万+/平)的同款设计师。
串联园林和各楼栋架空层的风雨连廊,是区域少见的高端配置,不仅能增添归家仪式感,还能雨中漫步赏景,诗意生活触手可及。

来到入户大堂,米黄石材+玉石打造的背景墙,温润雅致,低调而不失格调。

3、产品升级,高实用率、无遮挡公园景观。
檀府首推建面约89-169平3-6房,结合建筑新规设计,实用率和舒适度大幅提升。
建面约93平户型,高实用率,在功能上做到了4房2厅2卫,在舒适度上做到了4开间朝南、约11.7米采光面、双飘窗全明主卧,完全能满足一步到位的置业需求。
新规之前,若要做出相似舒适度的4房,建面最少也要去到105-110平,相比之下,檀府节省了10几平空间,等于给买房人节省了一辆豪车的成本。
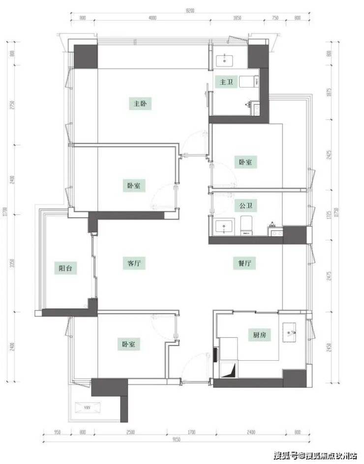
建面约93平4房户型图示意
建面约169平的6房2厅2卫,楼王单位,舒适度拉满,全屋11个飘窗,东南采光面超16米+阳台进深超7米、无遮挡看公园,主卧L型飘窗270°采光+进深约4.5米+卫生间可做双台盆,豪华感、尊贵感拉满。
如需了解更多内部折扣详情,
欢迎咨询开发商售楼处咨询/预约电话☎:400-065-2898(中介请勿扰)
温馨提示:看房请务必电话提前预约,避免临时无人接待,感谢您的配合!
开发商承诺:一对一专属开发商销售服务,尊享开发商内部优惠服务!
声明:本文由入驻焦点开放平台的作者撰写,除焦点官方账号外,观点仅代表作者本人,不代表焦点立场。
