【2025.9.21】翰熙典居售楼处电话@首页网站-翰熙典居营销中心电话-翰熙典居欢迎您-楼盘详情-周边配置-最新价格-热线电话
扫描到手机,新闻随时看
扫一扫,用手机看文章
更加方便分享给朋友
☯☯翰熙典居☯☯
☯☯翰熙典居开发商电话:400-032-8066 【☎☎已认证】☯☯
☯☯翰熙典居售楼处电话:400-032-8066【☎☎已认证】☯☯
☯☯翰熙典居售楼中心电话:400-032-8066【☎☎已认证】☯☯
☯☯☞☞Vip贵宾置业==欢迎来电预约尊享内部折扣===匠心钜制恭迎品鉴☜☜☯☯

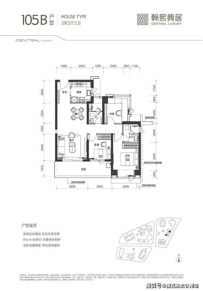
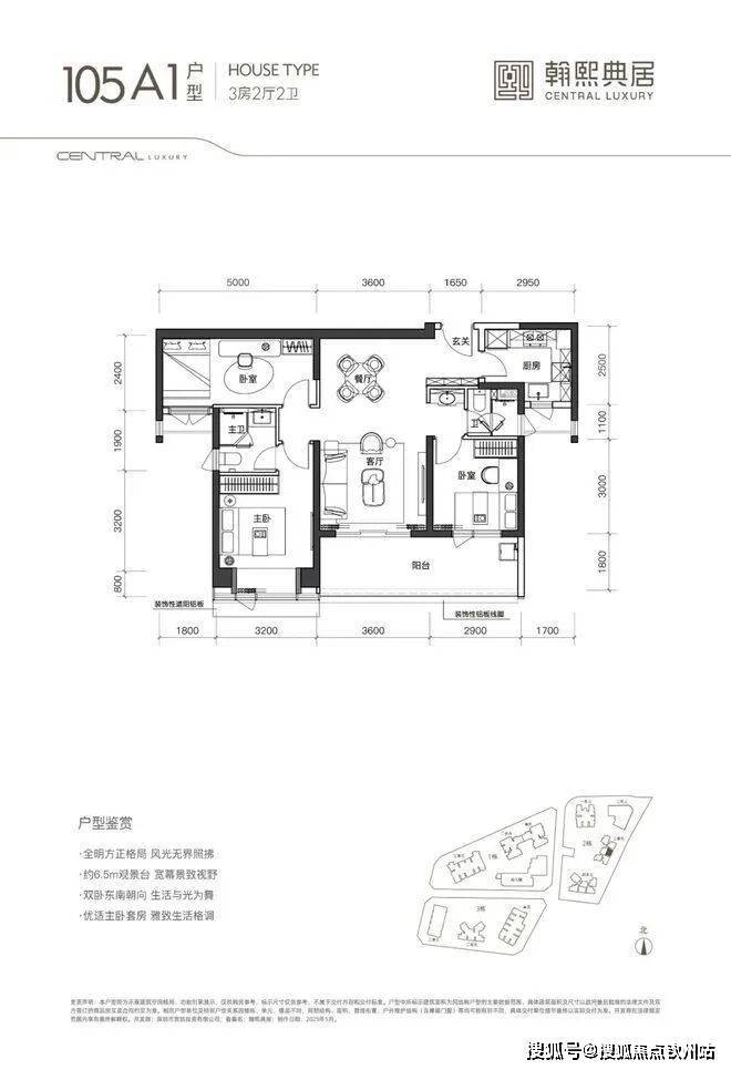
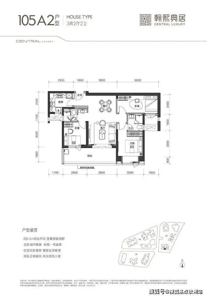
南山粤海,翰熙典居本次首推02地块的2栋3/4单元,共328套房源,面积有104-105-117㎡的3房2卫,120-135㎡的4房2卫户型,预计在2027年带精装交房。

翰熙典居是南山粤海板块唯一在售的新盘,原是桂庙新村城市更新单元,9/15号地铁线“深大南站”就在家楼下,有学府一小+学府中学加持,步行800多米到海岸城高端商业区,关注此盘的买家较多。

翰熙典居丨逾50万㎡地标级奢居综合体
集住宅、商业、办公、酒店等业态于一体。项目自带约1.9万㎡精奢时尚酒店、约5.7万㎡未来潮流街区(以后期实际运营为准)、约1.26万㎡公共配套,多维配套迭新粤海人居想象。
质匠高定丨集聚一流大师 匠造雅质奢宅
翰熙典居联袂华汇设计、迈丘设计、CCD(香港郑中设计事务所)等国际国内大师,匠制三重归家礼序,打造美学园林及品质公区,成就卓尔不凡的超感生活。

流线之幕 | 幕墙集成系统
静雅奢华风格延续奢宅风貌,历久弥新的品质凝练

盛世翰韵 | 新东方都市风格园林
度假式无边际泳池,樱花大道、无界人文街区

逐光之旅 | 大师高定艺术公区
以超脱酒店的艺术手法,构筑雅静空间,大堂墙面高端用材,精心雕琢尊崇归家仪式感

翰熙典居位于粤港澳大湾区科创核心——粤海街道,紧邻深圳大学,背靠腾讯总部,逾50万㎡地标级奢宅综合体,代言湾区时代奢居典范,焕新塔尖生活向往,引领人居品质进阶。

地铁9号线、15号线(在建中)交汇深大南站;9号线2站高新园、3站深超总、4站大前海区域;周边“四横三纵”主干道、双城际铁路及海空交通网络环绕,纵横驰骋,畅连全城。

系统门窗大面积采用双银LOW-E中空夹胶、三层钢化超白玻璃(深灰色),以高透光率重塑光影哲学,在降噪节能的科技内核外,包裹着永不褪色的艺术锋芒,让建筑立面成为镌刻城市精神的立体画布,为片区注入兼具人文温度与未来质感的建筑美学新范式。
新东方都市风格园林,园林景观叠加人文符号重构社区空间价值。
为打造舒适的社区环境,翰熙典居采用整体围合式布局,楼间距更大,可更大程度保证每栋的通风采光。
体量约1万余㎡的园林设计,由国际景观设计单位迈丘设计担纲,以五重景观、樱花大道、松林景观组团、无边际泳池社区生态景观&奢享级泛休闲空间,叠加桂庙百年人文印记,将传统东方造园美学与现代都市生活需求深度融合,打造了一个兼具东方意境与都市功能的新东方都市风格园林
既能满足科技人群日常的社区生活需求,也能满足其对“诗意栖居”的精神追求。
首推105-140㎡全维户型
新规产品匹配科技新贵高效生活需求
除了有极高品质感外,翰熙典居还是新规后产品,叠加“粤海街道时隔10年再上新的综合体项目”这层buff,直接把户型优势拉满。
要知道户型是决定一个项目产品竞争力、居住体验以及长期价值的核心要素之一,主要原因在于,优质的户型除了可以增强项目的市场竞争力与议价能力外,还能够提升居住舒适度与功能性,满足不同人群的居住需求。
据壹地产了解,翰熙典居户型为新规后产品,其120C户型与片区内网红盘-华润城润玺一期建面约121㎡的户型相比,阳台更大,留白更多,能够承载更多的生活可能,在未来市场竞争力更大。
翰熙典居首推产品为建面约105-140㎡奢雅空间,每个户型各有亮点,精准覆盖首次置业、改善置业家庭。
先看,105A1户型:
声明:本文由入驻焦点开放平台的作者撰写,除焦点官方账号外,观点仅代表作者本人,不代表焦点立场。
