琅玥湾佳园(售楼处) 首页网站-琅玥湾佳园营销中心-环境-户型-琅玥湾佳园地址-楼盘详情-配套-电话-交房时间-配套-电话-交房时间
扫描到手机,新闻随时看
扫一扫,用手机看文章
更加方便分享给朋友
公积金首套:2.6% 二套:3.075%
南山最火网红盘【琅玥湾佳园/南山1978·半岛擎峯一期】
5字头单价,龙华价买南山!!还有看海楼层!
抄底南山山海资源!赤湾地铁上盖背山面海准现房,稀缺户型错过再难寻!!!
半岛擎峯一期,备案名:琅玥湾佳园,推广名:南山1978·半岛擎峯,位于南山区招商街道赤湾三路与赤湾六路交汇处。金众云山海公馆东区南面,赤湾总部大厦西面。
项目总建筑面积1.1万m²,2栋纯住宅,无商业无保障房,南面无高楼无遮挡海景,视野非常开阔,精装交付。
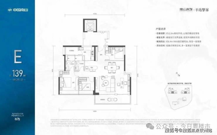
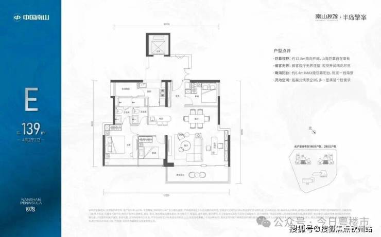
该项目将推出大约380套住宅,户型面积范围在113-124-139-167平方米,涵盖3至5房的不同户型。
建筑规划包括2栋塔楼,其中高区采用4梯4户的设计,低区则为5梯5户,确保了每户都能享有独立电梯厅的配置。
区域价值
【双湾交汇 城市战略前沿】
作为国家海上丝绸之路的桥头堡,赤湾占据前海湾和蛇口双湾交汇处,是两大中心组团双向奔赴的融合地带,是世界服务贸易重要基地和国际性枢纽港,既可享前海发展利好,亦可享蛇口国际生活配套。
【约3.2平方公里 世界海洋科技创新先导区】
在深圳跻身全球海洋中心城市的宏伟蓝图下,占据蛇口、前海双湾C位的赤湾,依托南山集团42年海洋产业底蕴,再次赋能国家海洋科技战略,将承担起海洋科技创新的战略使命,与前海、蛇口共同打造属于深圳的“世界海洋中心城市“。
【蛇口国际海洋城 南山下一个增长极】
蛇口国际海洋城--海洋科技、海洋文化、港口经济、邮轮经济产业聚集地。赤湾作为“蛇口国际海洋城”三大主要承载区之一,与太子湾片区、蛇口片区共同融入深圳“大空港-前海-蛇口”西部海洋科技创新走廊,定位为“赤湾海洋科技创新区”,探索建设海洋科技园、赤湾海洋风情小镇,创新布局海洋新能源、海洋新材料、极地开发等海洋潜力产业,培育孵化一批海洋创新型企业。
【蛇口豪宅带 高端生活圈】
项目坐落于蛇口豪宅带,半山臻境、山语海、鲸山觐海、汉京九榕台、兰溪谷、龟山别墅等众多豪宅择址于此,进阶高端圈层生活。
配套价值
【纵横繁华要脉 擎领湾区生活圈】
5地铁:毗邻地铁2/5号线赤湾站,近12号线,1站太子湾、2站海上世界,24号线和28路线双地铁规划中。
多路网:兴海大道、南海大道、望海路、妈湾跨海隧道(建设中)等多条干道环绕,从容往来全城。
1航空:速抵深圳宝安国际机场,链接世界精彩。
1海运:紧邻太子湾邮轮母港,连通香港,走向世界。
1快轨:深港西部通道铁路建成后,将快速缩短香港与深圳之间的通行时间。
【国际名校为邻 一站式精英教育】
公立学校:4所幼儿园、南二外赤湾学校、北师大附中高中部、两所九年一贯制学校(规划中)。
国际学校:南山中英文学校、深圳贝赛斯国际学校,深圳前海哈罗港人子弟学校、深美国际学校等。
【集萃百万国际商圈 畅享都市万千繁华】
自带约4.2万㎡商业(在建中),将引进知名运营商统一运营。
地铁1站直达太子湾,享受K11 ECOAST、兰桂坊(在建中),2站海上世界,链接蛇口、前海高端商业。
约6公里范围内华润万象前海、前海山姆会员店、卓悦Intown、蛇口沃尔玛、招商花园城、海岸城、宝能太古城、来福士广场等多个大型商超。
【环山抱海臻境 居所亦是度假地】
三山为庭:大南山、小南山、赤湾山三山林立,写就城市自然间生活交响曲。
一海为院:伶仃洋天然在侧,黄金海岸线前沿占位,感受妈祖文化、见证郑和下西洋的远航足迹。
七园为邻:约2公里范围内,有大南山公园、小南山公园、文天祥纪念公园、赤湾公园、兴海公园、月亮湾公园等公园环伺。
人文沉淀:周边历史遗迹云集,文天祥纪念公园、天后宫、赤湾烟墩、左炮台等,真切感受历史底蕴。
【三甲国际医疗 为健康全维护航】
距太子湾国际医院约1.8km(在建中),近南山区蛇口人民医院、南山区妇幼保健院、南方医科大学深圳医院等多家三甲医院。
本体价值【南山品牌主场 片区运营者】
中国南山集团,国企品牌,深耘赤湾42载,承担片区规划者和运营者角色,焕新赤湾约3.2平方公里土地,已打造建面约47.7万方集总部办公、五星级酒店、购物中心、高端住宅为一体的TOD璀璨综合体。
【跃级高品质产品 C位一线海景】
低密板楼:板楼设计,户型方正,南北通透,倚山瞰海的低密住区。
一线海景:天生C位,是赤湾住宅群组团的首排,享一线无遮挡海景。
纯居业态:纯粹居住地块,无回迁房、保障房、商业、办公等其余业态,生活圈层更纯粹,营造更高格居住氛围 。
先锋立面:大面采用灰色铝板和三层超白low-e 玻璃类幕墙,提高建筑的安全性、腐蚀性和耐久性,确保建筑形体的美观,公建化先锋立面,品质历久弥新。
豪华梯户比:1:1的豪华梯户比,31F以下5梯5户,31F以上4梯4户,私密性更强,居住更舒适,出入从容有序。
归家礼序:三重尊奢归家,主入口前设置迎宾广场,拾级而上,入社区后景致相依,酒店式的归家奢华大堂,营造归家尊崇仪式感。
社区园林:约4300㎡社区园林,以“海岛花园”为主题,营造多个岛状特色空间组团,皇家园林移步移景的设计打造手法,独一无二的滨海花园体验。
全维社区:社区内配备了阳光双泳池(儿童&成人)、阳光草坪、全龄儿童活动区、四大主题多功能泛会所等社区活动场所,满足业主休闲生活所需。
项目平面图:
项目户型图:
声明:本文由入驻焦点开放平台的作者撰写,除焦点官方账号外,观点仅代表作者本人,不代表焦点立场。
