中建鹏宸云筑(售楼处)首页网站电话-中建鹏宸云筑营销中心电话-中建鹏宸云筑欢迎您-楼盘详情-最新价格-户型图-容积率@售楼中心2025.11.11
扫描到手机,新闻随时看
扫一扫,用手机看文章
更加方便分享给朋友
…中建鹏宸云筑……中建鹏宸云筑…


中建鹏宸云筑,由中建集团打造,由总占地面积约4.33万㎡,总建筑面积约31万㎡,计容建筑面积约22.6万㎡,容积率5,绿化率40.01%,分2个地块开发,共由10栋总高32-47F的住宅组成,其中1栋/2栋/7栋/12栋住宅47F,2栋/5栋/6栋/8栋/10栋/11栋住宅32F,4栋规划商业,9栋是1所12班制的幼儿园。
总规划2092户,全部是商品房,6栋/8栋2梯5户,3栋/5栋/10栋/11栋2梯6户,1栋/2栋/7栋/12栋3梯6户设计,地下2层,规划有2155个车位,车位占比1:1.03。
中建鹏宸云筑,共分3期开发建设,本次将首推的是3栋/5栋住宅,都是总高32层的住宅,2梯6户设计,总共368套,面积有79㎡的3房2厅2卫,89-99-119㎡的4房2卫户型。
===基础指标 ====
总占地面积:约4.2万㎡
总建筑面积:约31万㎡
规定容积率 :≤5.37
绿化覆盖率 :约40.01%
开 发 商 :中建壹品&湖北文旅
总 户 数:总户数1992户(东区1016户,西区976户)
停 车 位:总2155个(东区1059个,西区1096个,车位与幼儿园共享,东西区停车场不连通)
首推楼栋:8栋楼尊,共154套
楼 栋 高:32层,标准层高约3米
梯 户 比:西区高层2梯5户,超高层3梯6户
首推户型:建筑面积约102-103㎡、118㎡、139㎡
项目地址:龙华·8号仓旁·华南数字超核
【好产品】全生命周期户型,新规产品高使用率

①31万方岭南人文高阶住区,精工匠造纯粹圈层
深圳近10年最大纯居地块,约31万方深圳城央美好生活领地,无公租房、无保障房、无人才房。采用围合式布局,以岭南建筑美学理念,打造岭南东方诗意园林。
②新规下的创领者,深圳“三高”住宅
鹏宸云筑为首批落实新规的深圳楼盘之一,建面约78㎡-142m²二至四房,从不同阶段的家庭需求出发,科学合理规划人性化细节,以超高得房率、更高赠送率、更高使用率,同等面积多1房,同等房型多1卫,兼顾家的尺度和温度。
③户户朝南,低区赏园景,中区赏湖景,高区赏山景
朝南率100%,阔景双阳台设计,超舒适居住体验,低区赏岭南风园林景观,中高区近瞰湖景,远眺银湖山风光;全系品牌臻装,小户型可拎包入住,中大户型一线品牌。

本次加推的9栋是西区东南前排的“C位”楼栋,属于真正的一线前排位置,无遮挡直面民治水库、民悦公园(在建),远眺塘朗山和银湖山山景。
104㎡户型(02/03/04户型)
104㎡户型为3+1房2厅2卫设计,竖厅布局。该户型拥有约3.5米面宽的奢阔客厅,外连开间约6米的宽景阳台。
户型设计上,进门有入户玄关,客厅3.6米开间,采用LDKB一体化设计,S墙设计预留冰箱卡槽位,四开间朝南。主卧与一个次卧带有270°飘窗,客厅连接次卧出6米长大阳台。
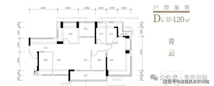
120㎡户型(01/05户型)
120㎡户型为3+1房2厅2卫设计,南北通透。该户型拥有独立玄关、奢阔厅房,在空间感和居住体验上,可媲美市面上建筑面积约140平方米的大户型产品。
声明:本文由入驻焦点开放平台的作者撰写,除焦点官方账号外,观点仅代表作者本人,不代表焦点立场。
