翰熙典居营销中心(售楼处)首页网站-翰熙典居营销中心-翰熙典居欢迎您-地址-价格-户型-小区环境-楼盘详情-交房时间-周边配套-售楼处电话2025
扫描到手机,新闻随时看
扫一扫,用手机看文章
更加方便分享给朋友
═ ═ ⑉ıl⑉翰熙典居⑉lı⑉ ═ ═
⚠️⚠️⚠️【购房须知】:
💎💎💎翰熙典居售楼处(营销中心)电话为4000 437 779(开发商权威认证),请提前拨打售楼中心电话预约,销售一对一深度讲解楼盘, 更享额外购房优惠!谢谢您的配合!
💎💎💎翰熙典居售楼中心24小时电话☎:4000 437 779【☎权威认证】💎💎💎
💎💎💎翰熙典居售楼处24小时电话☎:4000 437 779【☎权威认证】💎💎💎
💎💎💎翰熙典居营销中心24小时电话☎:4000 437 779【☎权威认证】💎💎💎
💎💎💎☞☞Vip贵宾置业→欢迎来电预约尊享内部折扣→匠心钜制恭迎品鉴☜☜💎💎💎
注: ◆◆◆若有中介虚假宣传,请及时与售楼中心核对真假,避免上当!开发商热线4000 437 779【已认证】

阳光华艺房地产公司已深耕深圳23年,主营房地产开发,旗下有建筑施工企业、物业管理公司、酒店经营管理公司等,运营有自有品牌酒店,已经成功开发了阳光华艺大厦、南山城市花园、流塘阳光花园、阳光海滨花园等多个旧改楼盘,在行业内颇有名气。
项目开发建设用地41660㎡,容积率8.9,计容建筑面积369100㎡,包含住宅249950㎡(含人才住房和保障性住房32500㎡),商业、办公及旅馆业建筑106530㎡(含商业文化设施不低于5330㎡)。
🔸占地面积:约4.16万㎡
🔸建筑面积:约51.6万㎡
🔸绿化率:35%
🔸土地年限: 70年(2023.9.14-2093.9.13)
🔸业态:集住宅、商业、办公、酒店等业态于一体。项目自带约1.9万㎡精奢时尚酒店、约5.7万㎡未来潮流街区(以后期实际运营为准)、约1.26万㎡公共配套,多维配套迭新粤海人居想象。
🔸首推套数:344套
🔸单层层高:3米
🔸梯户比:3梯5户
🔸管 理 费: 7.5元
🔸物业公司:深圳市丹枫物业管理有限公司
【平面图】

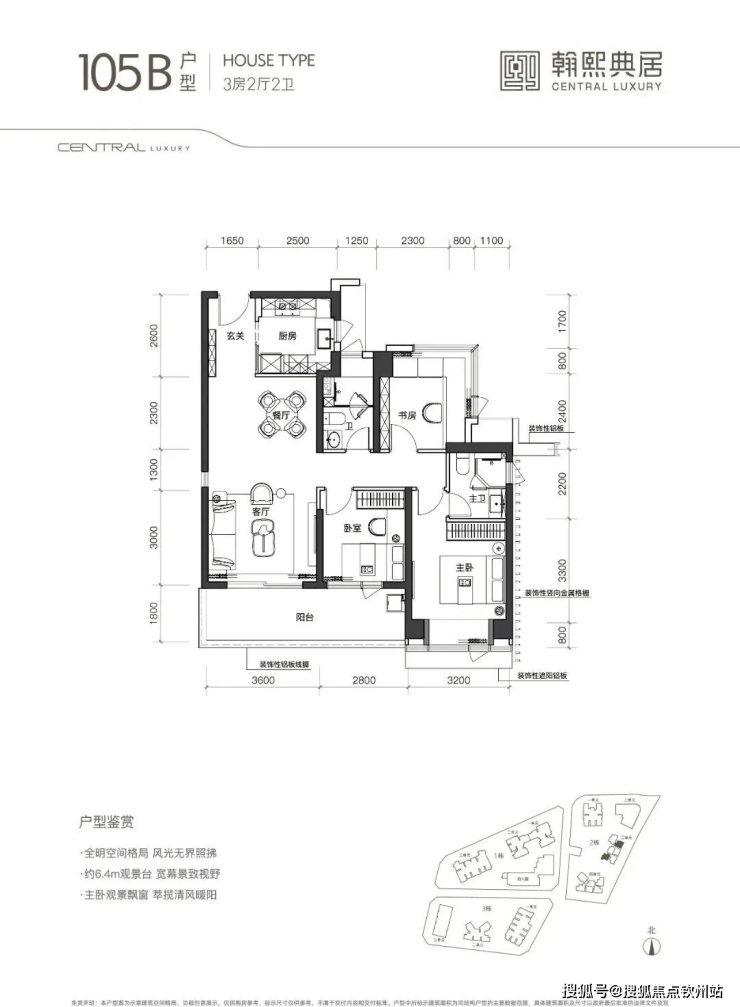
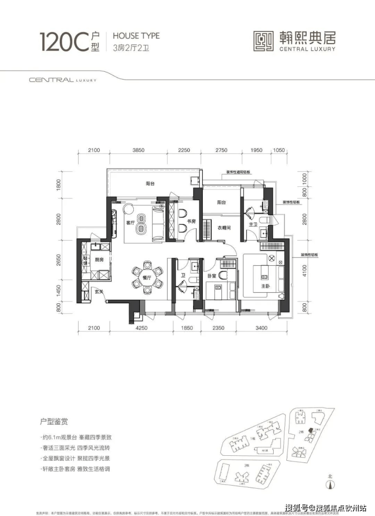
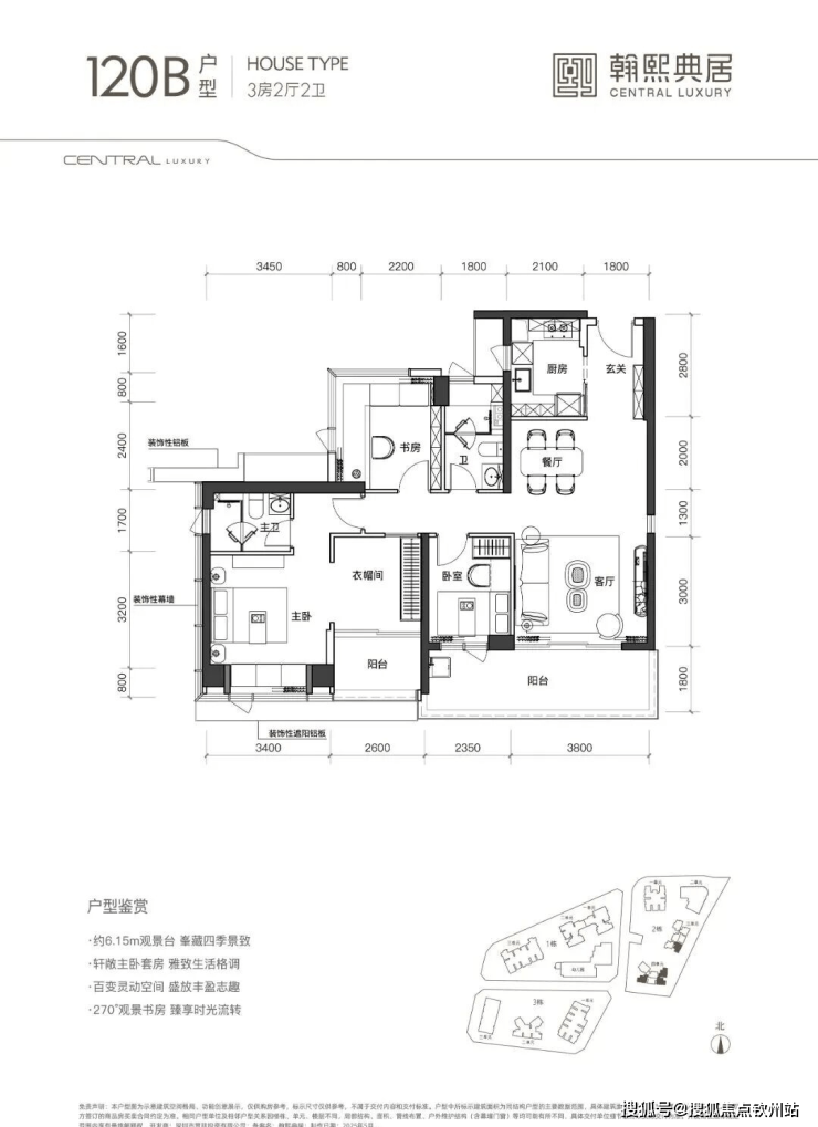
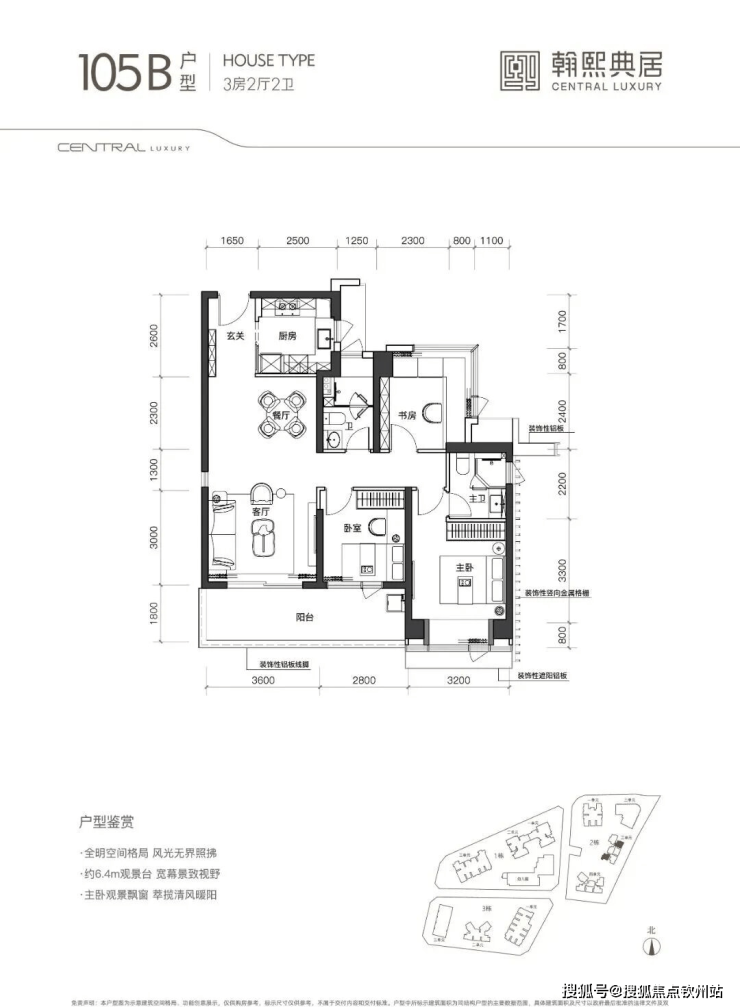
项目出售共有5个户型105-142平米户型图如下都是带大阳台👉分户型折后价
1⃣️105A:约1017-1107万,9.7-10.5万/㎡
2️⃣105B:约894-1068万,8.6-10.1万/㎡
3️⃣120B:约1144-1271万,9.1-10.8万/㎡
4️⃣120C:约1038-1115万 8.5-9.2万/㎡
5️⃣140 :约1457-1570万,10.5-11.1万/㎡
建面约105㎡的3房2厅2卫
经典的双龙抱珠布局,主人空间与客卧空间互不干扰,具备私密性优势。并且户型方正,实用三房两厅两卫。朝南向四开间面宽共约 13.2m,全明空间,采光极佳。这个户型含赠送半阳台和飘窗的面积后使用率可达约 83%,这在超高层中是比较高的使用率。
本次首推的 02 地块 ,户型有这个双龙抱珠的,还有一个户型是竖厅格局,各有优势,看个人喜好选择。


建面约105㎡的3房2厅2卫
经典的双龙抱珠布局,主人空间与客卧空间互不干扰,具备私密性优势。并且户型方正,实用三房两厅两卫。朝南向四开间面宽共约 13.2m,全明空间,采光极佳。这个户型含赠送半阳台和飘窗的面积后使用率可达约 83%,这在超高层中是比较高的使用率。
本次首推的 02 地块 ,户型有这个双龙抱珠的,还有一个户型是竖厅格局,各有优势,看个人喜好选择。



建面约140㎡的3房2厅2卫
该户型为 02 地块的唯一一条腿,非常稀缺。户型南北通透,带大主卧套房的奢居型三房。带 5.35m 观景台,大横厅奢阔空间设计,主卧同客厅阳台、餐厅三面宽朝西南。北向双次卧、双卫生间、拓展空间共五面宽一字排开,视野全面俯瞰社区内园林,静谧舒适。

【区域分析】:
翰熙典居项目坐落于“深圳最牛街道”——粤海街道,一侧是深圳大学,另一侧是大厂云集的南山科技园,地理位置十分优越。
要知道,粤海街道被誉为“中国的硅谷”,走出了华为、腾讯、大疆等一大批著名企业,传说曾凭一己之力抗住了贸易战,于2020年开始火出圈。
【交通配套】:
无缝接驳地铁9号线、15号线(在建中)交汇深大南站。核心区罕有TOD项目。
四横:滨海大道、深南大道、北环大道、学府路
三纵:南海大道、后海大道、白石路
(以上所有交通规划最终通车时间以政府最新工程进度落实为准)

【商业配套】:
项目自带1万㎡商业,咫尺海岸城商圈,近距离可达深圳湾万象城、万象天地、鹏润达广场、后海汇、来福士广场

【教育配套】:
根据2024年南山学区划分,项目对口学校是南山区第二外国语学校(集团)学府一小和南山区第二外国语学校(集团)学府中学。根据坊间学校排名,两所学校均属于第二梯队。 (具体入学以当年教育局公布为准)
学府中学成立于 2003 年,是南二外教育集团目前孵化的成员学校当中,综合实力仅次于南二外海德初中部的存在。学校现有 50 个教学班,2400 余名学生和 201 名教职员工,师资力量雄厚 。

【文体配套】
9大城市级人文峯层配套,咫尺亲子休闲好时光。
深圳湾体育中心、保利剧院、南山书城、南山图书馆、南山文体中心、南头古城、南山博物馆、粤海街道文体中心、深圳湾文化广场。

5重生态丨山/湖/园/海/湾 聚揽城市一湾风华 1山1湖:深圳大学杜鹃山、文山湖 4公园:荔香公园、文心公园、科技公园、深圳人才公园 1深大后花园1海湾:约15公里深圳湾滨海长廊 (项目规划连廊直通深大,中国十大最美校园之一。该天桥为方便深大师生进出而设置,后期具体人员进出管理以深圳大学有关规定为准)

质匠高定丨集聚一流大师 匠造雅质奢宅 翰熙典居联袂华汇设计、迈丘设计、CCD(香港郑中设计事务所)等国际国内大师,匠制三重归家礼序,打造美学园林及品质公区,成就卓尔不凡的超感生活。

流线之幕 | 幕墙集成系统静雅奢华风格延续奢宅风貌,历久弥新的品质凝练

盛世翰韵 | 新东方都市风格园林 度假式无边际泳池,樱花大道、无界人文街区

逐光之旅 | 大师高定艺术公区以超脱酒店的艺术手法,构筑雅静空间,大堂墙面高端用材,精心雕琢尊崇归家仪式感

奢阔空间丨中心极境 礼献粤海 翰熙典居,粤海十年之后再上新,全新奢居综合体礼献峯层。可售主力户型新规后建面约105-140㎡奢雅空间,全明方正户型将空间奢阔感与生活舒适度完美契合。明星户型超6米阳台开间,全维度巨幕景观视野,尽揽湾心万千风景。


项目优势:
1、位于粤海街道办内,周边集聚了腾讯滨海大厦(400米)、软件产业基地等写字楼,片区高新人才聚集,地理位置优越;
2、属于大型旧改项目,未来改造潜力巨大,焕新区域居住环境;
3、周边配套齐全,交通十分便利,楼下即9号线深大南站,15号线(在建)预计2028年开通,双地铁交汇。自驾可通过南海大道、滨海大道快速连接福田、前海等核心区域。
4、周边没有新房供应,二手放盘也很少,片区内无对手,楼盘关注高;
5、户型实用:新规后户型得房率约90%,105-140㎡的3-4房设计,空间利用率高,部分户型阳台开间达6.5米,采光通风佳。
项目不足:
1、小区居住属性不够纯粹,714套商品房+1525套回迁房+791套保障房,圈层混杂;
2、容积率偏高,且属于超高层住宅,居住舒适度一般;
3、车位比不足1:1,停车位较紧张。
4、37万㎡综合体+3030户高位密度,且属于超高层住宅,居住体验存疑;

═ ═ ⑉ıl⑉翰熙典居⑉lı⑉ ═ ═
⚠️⚠️⚠️【购房须知】:
💎💎💎翰熙典居售楼处(营销中心)电话为4000 437 779(开发商权威认证),请提前拨打售楼中心电话预约,销售一对一深度讲解楼盘, 更享额外购房优惠!谢谢您的配合!
💎💎💎翰熙典居售楼中心24小时电话☎:4000 437 779【☎权威认证】💎💎💎
💎💎💎翰熙典居售楼处24小时电话☎:4000 437 779【☎权威认证】💎💎💎
💎💎💎翰熙典居营销中心24小时电话☎:4000 437 779【☎权威认证】💎💎💎
💎💎💎☞☞Vip贵宾置业→欢迎来电预约尊享内部折扣→匠心钜制恭迎品鉴☜☜💎💎💎
注: ◆◆◆若有中介虚假宣传,请及时与售楼中心核对真假,避免上当!开发商热线4000 437 779【已认证】
【免责声明】本文部分信息和图片来源网络,如有内容侵权请联系删除。本文所述内容和意见仅供参考,不构成市场交易依据和投资建议
声明:本文由入驻焦点开放平台的作者撰写,除焦点官方账号外,观点仅代表作者本人,不代表焦点立场。
