鸿荣源尚云售楼处(鸿荣源尚云电话)鸿荣源尚云营销中心地址-鸿荣源尚云欢迎您丨最新户型图/得房率-配套详情@最新售楼处2025-8-28
扫描到手机,新闻随时看
扫一扫,用手机看文章
更加方便分享给朋友
鸿荣源尚云花园,位于深圳市龙华区民治街道工业路与龙华人民路交汇处西南侧,由深圳市鸿龙达投资有限公司(鸿荣源集团)开发,物业公司为深圳市鸿荣源物业服务有限公司。项目总占地面积约2.68万平方米,总建筑面积约23.6万平方米,容积率7.78,绿化率40.01%,规划总户数1878户,其中可售商品房1278套,公租房600套。项目共分南北两个区开发,由6栋18-57层的住宅和2栋27-31层的写字楼组成,车位1521个,车位占比1:0.81,预计于2025年12月前精装修交房。

二、交通配套
区域及交通:鸿荣源尚云花园地处龙华中心区,周边有鸿荣源壹城中心、丰润花园等成熟社区,生活氛围浓厚。项目距离4号地铁线“龙华站”约1.2公里,未来还将有25号线“景龙站”和27号线“油福站”在附近设站,交通出行十分便捷。此外,项目周边还有深大城际“民治北站”等交通枢纽,进一步提升了区域的交通优势。

教育配套:项目周边教育资源丰富,根据2024年龙华区教育局学区划分,小学学区划分在深圳艺术高中民治学校小学部、华东师范大学附属深圳龙华教育集团未来小学;初中学区划分在深圳艺术高中民治学校初中部、龙腾学校北辰校区、龙华高级中学教育集团民治校区初中部、格致中学民治校区初中部、红山中学初中部,还有龙华实验学校初中部的大学区划分。其中,深圳艺术高中民治学校是一所54班学校,提供2520个学位,小学1620个,初中900个,教育质量有保障。商业配套:项目自带约1.25万平方米商业,周边紧挨着鸿荣源壹方天地购物中心,商业总建面高达60万平方米,内含1000米华南最长商业步行街和ABCDE五大主题商业区,超1000家品牌商家入驻,90%都是首进龙华的知名品牌,购物、休闲、娱乐一应俱全。医疗配套:项目周边医疗资源丰富,包括深圳龙华区人民医院、龙华区中心医院、广州医科大学附属第一医院、深圳市第二儿童医院(在建)、新华医院(在建)等医疗机构,为居民提供全方位的医疗保障。


文体配套:项目周边还有深圳书城龙华城、龙华文体中心、简上体育综合体、展览馆、演艺馆、深圳市图书馆北馆、美术馆新馆、深圳市文化馆新馆等文体设施,满足居民的文化娱乐需求。
三、项目户型
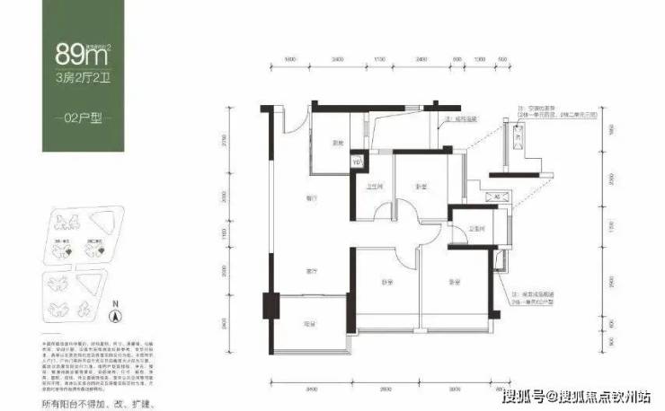
83㎡-3房2厅2卫,设计的是竖厅南北通透格局,客厅3.3米开间,3个卧室分别是3米/2.6米/2.4米的宽度,主卧南北通透设计,L型厨房,得房率:75.42%(不含赠送),01户型是西北朝向,07户型是东北朝向。89㎡-3房2厅2卫,设计的是经典竖厅格局,客厅3.4米开间,三开间朝南,3个卧室分别是3米/2.8米/2.4米的宽度,L型厨房,得房率:75.42%(不含赠送),02-03户型是东南朝向,05.06户型是西南朝向。
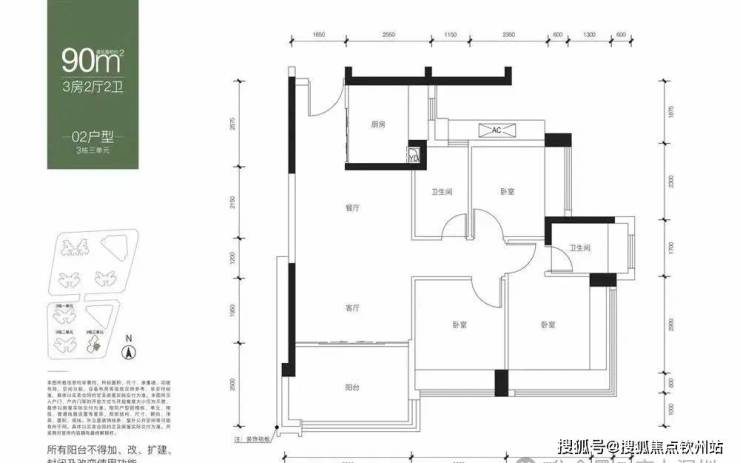
90㎡-3房2厅2卫,仅3栋2单元02户型,设计的是经典竖厅格局,客厅3.8米开间,三开间朝南,3个卧室分别是3.2米/2.95米/2.85米的宽度,L型厨房,得房率:75.97%(不含赠送),东南朝向。
109㎡的4房2厅2卫,仅3栋3单元的01户型,设计的是横厅南北通透格局,客餐厅5.5米开间,4个卧室分别做到了3.7米/2.775米/2.55米/2.4米的宽度,L型厨房,得房率:75.98%(不含赠送),阳台主朝西北向。
109㎡的4房2厅2卫,仅3栋3单元的03户型,设计的是竖厅双龙抱珠格局,客厅3.8米开间,4个卧室分别做到了3.1米/3米/2.9米/2.5米的宽度,L型厨房,得房率:75.98%(不含赠送),西南朝向。
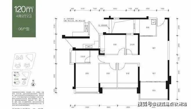
120㎡的4房2厅2卫,设计的是竖厅竖厅格局,客厅4米开间,4个卧室分别做到了3.3米/2.85米/2.5米/2.45米的宽度,L型厨房,得房率:75.34%(不含赠送),西南朝向。
四、优劣势分析
优势:
地理位置优越:项目位于龙华中心区,周边交通便利,教育资源丰富,商业配套完善。
大品牌开发商:鸿荣源集团作为知名开发商,有着丰富的开发经验和良好的市场口碑。
户型多样:项目提供了多种户型选择,满足不同购房者的需求。
精装交房:项目计划在2025年12月之前带精装交房,省去了购房者装修的麻烦和成本。
劣势:
容积率较高:项目容积率为7.78,相对较高,可能会对居住舒适度产生一定影响。
部分户型朝向不佳:虽然项目提供了多种户型选择,但部分户型朝向可能不够理想,影响采光和通风效果。

五、总结
综上所述,鸿荣源尚云花园作为龙华中心区的一个大型住宅项目,具有地理位置优越、大品牌开发商、户型多样和精装交房等优势。然而,容积率较高和部分户型朝向不佳也是其需要改进的地方。购房者在选择时应根据自己的实际需求和预算进行综合考虑。看完以上






❄免责声明:本文如无意中侵犯了某方的知识产权告知即删,部分内容图片可能来源于网络,无法核实其真实出处,如涉及侵权请联系本网站删除!!!
声明:本文由入驻焦点开放平台的作者撰写,除焦点官方账号外,观点仅代表作者本人,不代表焦点立场。
