深圳焦点热搜:富通九曜公馆售楼处电话-富通九曜公馆售楼处地址--富通九曜公馆热线@售楼处2025.9.25
扫描到手机,新闻随时看
扫一扫,用手机看文章
更加方便分享给朋友

「楼盘名称:」 富通九曜公馆
「参考均价:」 125000元/㎡
「总价:」 4300万/套起
「楼盘地址:」 [福田-车公庙]新沙街18号
「用途:」 住宅
「户型:」 2/3/5居
「建面:」 96 - 359㎡
「装修情况:」 毛坯
337平 【01户型4房】
247平 【02户型3房】
246平 【03户型3房】
住宅
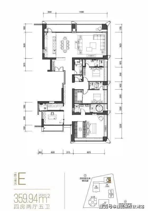
360平 【D户型5房】
360平 【09户型4房】
360平【 08户型4房】
96平 【B02/05户型2房】
区域价值
【福田CBDx香蜜湖双中心价值高地,】
项目占位深圳最高水平金融总部聚集区、国家级南方金融中心的香蜜湖金融中心南区。⾹梅路南延线&福华⼀路延⻓线贯通双⾦融中⼼,项⽬位于⾹蜜湖⾦融街1公⾥半径⽣活圈内。
【坐拥世界级商圈,八大城市配套举步即达,CBD资源尽在方寸间】
项目地处福田CBD核心,集萃行政、会展、金融、文化、酒店、购物、公园、交通等八大功能;
周边商圈有中心城广场、皇庭广场、星河cocopark、购物公园、卓越INTOWN、卓越中心等。
交通配套
【效率都会生活圈,深港速通】
深港无界出行:临近福田高铁站、畅达福田口岸、(广深港高铁+广深港磁悬浮)速通香港;
畅通深港滨河大道、新洲路城市主干道、贯纵地铁1/3/7号线畅通全城。
教育配套
【300米享受美国排名前三国际学校——贝赛思】
在美国各大特许公立学校的排行榜中,贝赛思学校都是遥遥领先。2019、2020均为U.S. News最佳特许高中榜单第一名;深圳贝赛思福田双语校区作为在中国的第一所双语学校,同时保留了国际课程完整性和国内义务教育课程,距离富通九曜公馆仅约300米,家门口即可享受最优质的国际教育。

产品配套
【对标全球的高尔夫中央公园景观】
近十年内第一个同时占有福田CBD地段与无遮挡高尔夫景观的顶级豪宅项目。北侧直面深圳高尔夫俱乐部,南眺红树湾公园与深圳湾海景,东望福田CBD,四重稀缺景观集萃。
【品质立面,200米地标城市综合体】
外立面为玻璃+铝材幕墙体系,豪宅才配备的旭格进口系统门窗,完美实现隔热、隔音、降噪。
【深圳首个网红地标配套“全悬空空中连廊+空中透明无边泳池”】
100M高空打造全悬挑空中连廊,空中透明无边际泳池,整个连廊敞开面对公园方向,将高尔夫公园景观和城市景观尽收眼底;百米高空私享星级主题泛会所,属于精英人物的奢想圈层盛宴。
【奢适园林,东方美学大师程绍正韬操刀】
将自然艺术与东方文化植入景观空间,既注重礼序人文,更不失自然趣味,以现代手法对传统美学进行再设计,打造步移景异之趣。
声明:本文由入驻焦点开放平台的作者撰写,除焦点官方账号外,观点仅代表作者本人,不代表焦点立场。
