前海时代尊府三期售楼处电话(深圳)首页网站-前海时代尊府三期营销中心-前海时代尊府三期欢迎您-楼盘详情-最新价格-户型图-最新售楼处电话2025.09.22
扫描到手机,新闻随时看
扫一扫,用手机看文章
更加方便分享给朋友
…前海时代尊府三期……前海时代尊府三期……

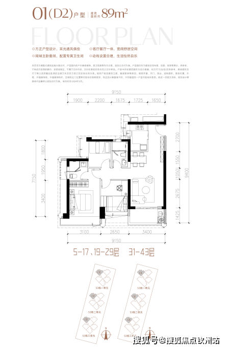
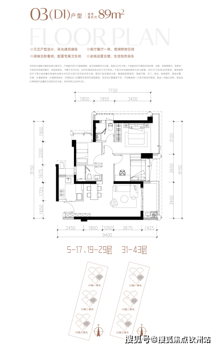
这次3单元是53栋几个单元中位置最好的,位于头排,景观视野基本没有遮挡,高层还能看到部分海景。
前海时代尊府户型图






『多重价值 领衔未来湾居前沿』
【区域】前海桂湾 活力国际金融城
【交通】地铁枢纽 高效交通全球互联
【配套】丰盛集萃 举步可揽世界精粹
【TOD】百万大城 献映时代美好生活
【匠心】府系力作 钜献环幕湾居大宅
【品牌】国企实力 筑就时代湾居典范
【前海湾区新中心,桂湾国际金融城】
前海:特区中的特区,五重国家战略叠加、16项战略定位、24项政策加持,总斥资约3839亿元,国家顶层意志凝聚,迈向湾区城市新中心。
桂湾:汇聚前海十余年发展精粹,规划打造24h活力的国际金融城,加速迈向世界金融和科技中心与全球总部中心,以国际化视野,领衔未来湾居趋势。
【轨道枢纽极核 集萃湾芯万象】
近地铁1/21号线(规划中)鲤鱼门站,坐拥海陆空轨多维交通,可瞬达湾区城际及全球主要城市,聚集前海较为成熟的桂湾繁盛配套,荟萃商业商务、生态人文等优质资源,随时融入大湾区国际化生活圈。
【多地铁】1/21号线(规划中)鲤鱼门站,近5号线桂湾站,9号线梦海站
【多路网】滨海大道、梦海大道等三横三纵路网
【六城际】穗莞深/深莞/深惠/穗深延长线(在建)、深珠/港深西部铁路(规划中)
【三高速】沿江高速、深中通道(已通车)、深珠公铁两用线(规划中)
【三港口】赤湾港、妈湾港、太子湾邮轮母港
【二机场】深圳宝安国际机场、香港国际机场
【一口岸】前海口岸(规划中)
【百万TOD综合体,交互美好生活】
深铁前海时代,总建面约130万㎡综合体TOD地标,引领时代湾居美好向往。
已建成物业:总建面约45.2万㎡,包括CEO公馆、国际都荟住宅、深圳市前海深港基金小镇以及学校等。
在建/待建物业:总建面约84.3万㎡,集国际公寓、总部办公、高端住宅、风尚商业、精品酒店等全业态价值连接,商务、社交、生活等全场景切换自如。
【云境美学园林 邻里社交聚场】
以“云巅之上,熙照万千”理念,打造“云谷、云峰、云海”三重云境园林,十八项景观体系;架空层打造邻里活动中心,及业主私享悬浮式泳池,预留户外休闲空间,儿童游戏空间等,领悟自然与艺术的交融之美,营造独特的精神归属感。
【现代美学立面 辉映天际封面】
深铁府系精工携手匠心团队,联袂共筑世界湾居新坐标,香槟金搭配高级灰调立面,现代建筑与艺术风格交相辉映,勾勒前海天际美学封面。
·景观设计 :DDON笛东/梁黄顾事务所
·室内设计 :CCD郑中/ARUP奥雅纳
·建筑设计 :Leigh & Orange/A+E奥意建筑
【臻奢品质公区 礼序归家仪式】
约9m高臻奢大堂,精研艺术与生活交融之美,匠心雕琢金属与石材质感,让归家之路成为艺术巡礼。
私享入户电梯厅,昭示显赫门庭,出门入户间,尽享艺术格调洗礼。
负一层典雅车马厅,阔绰车行落客区,出入尽享优雅从容。
『深铁置业 抵达无限可能』
深铁置业为深铁集团全资子企业,2022-2024连续三年荣膺“深圳市房地产开发行业综合实力十强”榜首,探索并形成国内领先的“轨道+物业”开发模式。深铁前海时代,深铁置业又一TOD力作,共进大湾区时代。
声明:本文由入驻焦点开放平台的作者撰写,除焦点官方账号外,观点仅代表作者本人,不代表焦点立场。
