翰熙典居(售楼处)首页网站-翰熙典居售楼处-翰熙典居售楼处欢迎您-周边配套-楼盘详情-最新价格-备案价@售楼处
扫描到手机,新闻随时看
扫一扫,用手机看文章
更加方便分享给朋友
有着“中国硅谷”之称的深圳最牛街道——南山粤海街道,翰熙典居本次首推02地块的2栋3/4单元,共328套房源,主打新规后产品105㎡-120㎡-140㎡住宅!折后单价仅‘8字头’,低于周边二手房,同学区划分参考阳光粤海花园,近期成交均价在9万/平左右。8月份,翰熙典居突围而出,揽金6.1亿,实力遥遥领先!
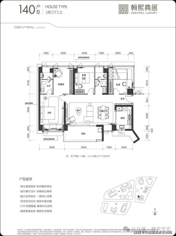
首推02地块,105-120-140㎡的3-4房,精装交付。已按新规调整户型,由原套内80%左右增加到现套内90%。按内部流传实用率将近100%!规划总建面约16万㎡,容积率9.12。规划住宅建面约8.37万㎡,商业建面约1万㎡,办公面积约1.7㎡。
规划为4栋超高层塔楼,2栋一单元住宅174米53层,2栋二单元办公130米27层,2栋三单元住宅168米51层,2栋4单元住宅175米53层。
规划872套,其中回迁544套+可售328套,停车位747个。
桂庙新村城市更新单元位于南山区粤海街道白石路与学府路交叉口西北侧,东临白石路,西近南海大道,南临学府路,北面与深圳大学毗邻。周边集聚了腾讯滨海大厦、软件产业基地等写字楼,地理位置优越。
从位置上看,项目临近深大南站,9号线和已经在建15号线在此交汇。其中,地铁15号线串联前海湾、大铲湾、留仙洞总部基地、西丽交通枢纽、南山高新科技园等,是深圳最具有价值的一个圈。
在交通配套方面,项目距离9号线/15号线(在建中)交汇处——深大南站不到300米,地铁出行十分便利。
其中,地铁15号线是深圳首条环线轨道,起终点均为前海站,极速串联起前海、宝中、大铲湾、“腾讯科技岛(在建中)”、南山科技园、后海总部基地、留仙洞总部基地等高端产业密集区,是深圳最具有价值的一个圈。
此外,自驾出行也很方便。项目临近南海大道、滨海大道,去往深超总部基地、前海自贸区、宝中等西部核心区域仅要20分钟内。
在商业配套方面, 项目自带约5000㎡的商业规划。2公里范围内有海岸城、茂业百货、海雅百货等大型商超,日常购物娱乐皆能满足。
在教育配套方面, 根据2024年南山学区划分,项目对口学校是南山区第二外国语学校(集团)学府一小和南山区第二外国语学校(集团)学府中学。根据坊间学校排名,两所学校均属于第二梯队。

文体休闲方面, 3公里范围内汇聚文心公园、南山书城,荷兰花卉小镇、南头古城、荔香公园、深圳人才公园等,各种休闲娱乐设施一应俱全。
02地块规划3栋53层·、51层、53层超高层住宅(2栋一、三、四单元),以及1栋办公楼(2栋二单元),住宅、商业、办公及酒店为一体的大型综合项目。
105㎡ ,110套,均9.4万,总868-1200万
120㎡ ,181套,均10万,总1008-1378万
140㎡ ,43套,均10.8万,总1400-1706万
本宣传资料不构成邀约邀请,对周边、政府规划、商业配套、教育资源、投资前景等数据和图文仅为提供相关信息,该信息以政府最终批文为准,开发商不对此作任何承诺。买卖双方的权利义务以双方签订的买卖合同约定及附件、实际交付为准,本公司保留对宣传资料修改的权利,敬请留意最新资料。联系号码☎:400 065 2898【开发商已认证】
声明:本文由入驻焦点开放平台的作者撰写,除焦点官方账号外,观点仅代表作者本人,不代表焦点立场。
