加福华尔登府邸售楼处电话(加福华尔登府邸)销售中心-加福华尔登府邸2025楼盘详情•最新价格-户型图-容积率@加福华尔登府邸售楼处
扫描到手机,新闻随时看
扫一扫,用手机看文章
更加方便分享给朋友
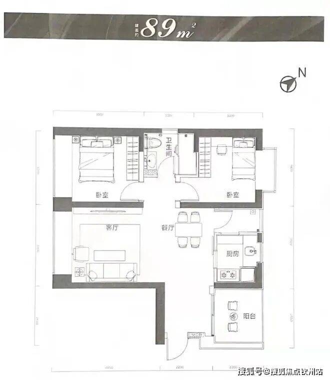
加福华尔登府邸是一个纯住宅项目,居住氛围纯粹,主推建面约86平大两房,建面约89平三房,和建面约125平大三房。
【加福华尔登府邸项目基础信息】
占地面积:7602平方米
建筑面积:51581平方米
总户数:462户
梯户比:6梯8户
楼层:地上67层,地下3层
层高:3.25米
楼层总高:239米
开发商:加福投资(深圳)有限公司
物业公司:华尔登物业管理(深圳)有限公司
车位数:500个
车位比:1:1.1
产品打造考究,豪华气质彰显。
福田地标福朋喜来登酒店的开发商就是加福华尔登府邸的开发商。
每次出手,从设计到建造都以不计代价而著称,用难以想象的精雕细琢人居与环境的极致融合。
高颜值的外立面,采用一线品牌3MM铝板,三涂AKzoNobel氟碳漆为主要材料,这完全是豪宅标准,使得历久弥新,无惧风吹日晒。
开阔的居住空间,户型层高约3.25米,在深圳非常罕见,不惜投入成本,也要让户型敞亮通透。
整个楼层是蝶形平面布局,罕见的超板楼设计,实现每一户景观价值和通透价值最大化。
此外还有很多亮点凸显“豪华”调性,每一层采用分区设计,分为东翼、西翼和中区,设计非常私密尊贵;每一层电梯厅,按照五星级标准打造;项目也配置有多重空中花园;每一层都有观景窗……目之所及都是对高品质生活的追求。
福田CBD,地处深圳市核心位置,是集行政、文化、信息、国际展览、金融商务等于一体的综合服务中心,占据着城市鼎级资源,拥有得天独厚的区位优势。加福华尔登府邸位居福田CBD,圈定一城繁华核芯,将乘福田腾飞之东风,勾勒出完美的都荟生活蓝图。
交通便利:楼下即为4号线福田口岸站。
教育资源:周边有福田外国语南校区九年制学校。
商业配套:附近有卓越世纪中心、COCOPAPK以及皇庭广场等商业设施。
户型鉴赏
5.注意事项:为保证接待质量,请出发前进行预约,避免案场没有销售接待;也可提前1-3天预约销售;
声明:本文由入驻焦点开放平台的作者撰写,除焦点官方账号外,观点仅代表作者本人,不代表焦点立场。
