华发·珠海湾售楼处户型_价格(售楼中心)24小时电话丨华发·珠海湾楼盘最新详情_户型_价格
扫描到手机,新闻随时看
扫一扫,用手机看文章
更加方便分享给朋友
华发·珠海湾将教育、商业、养老等配套与住宅同步推进,为了助力片区的大发展,珠海高新区与华发集团战略携手,投资300亿在其核心区再造一座超级大城——华发·珠海湾,引进文园小学/中学双学位,华发教育体系幼儿园等顶级教育资源,华发新天地、邻里中心等顶级商圈,通过系统提升生活配套,使得该片区更具竞争优势。
ZHU HAI
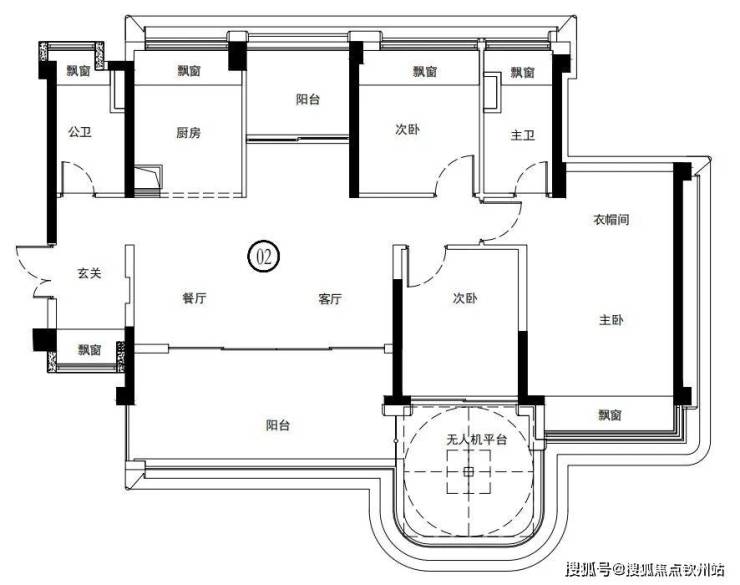
02
华发科技+新一代好房子
— 创新人居新样本 —
科技与自然共生、产业与人文共荣,是未来城市竞争力的核心维度。华发珠海湾有着“科技生态人文产业高地”的顶层设计蓝图。

| 华发科技+好房子产品标准
华发·珠海湾秉持“四方面十五优”产品标准,打造集“超级舒适、超级智慧、超级绿色、超级安全”的“华发科技+新一代好房子”,深度融合低空经济、机器人应用、绿色建筑等产业生态,同时依托滨海景观资源与智慧康养配套,构建起“生产、生活、生态”三生融合的创新型社区。

| 华发·珠海湾项目效果图
环绕式错层露台设计(每户约30㎡不计产权面积)结合270°环幕落地窗,革新传统的“华发科技+新一代好房子”,实现超100%以上得房率。

| 华发·珠海湾项目效果图
在空中花园与错层露台的打造上,华发·珠海湾拥有约9-16米游艇级采光面,每户标配约18-30㎡全景庭院,可化身品茗茶室、家庭聚会场域甚至私人花房,高层住宅秒变“空中别墅”。

| 华发·珠海湾项目实景图
规划约3万㎡运动公园、近700㎡梵高星空无边际泳池,日咖夜酒,配套全龄段泛会所及SPA、普拉提等20+主题空间。


| 华发·珠海湾项目效果图
垂直立体园林融入约8.6米飞瀑造景和新加坡樟宜机场同款热带雨林景观,绿化率达约35% 。


環繞式無干擾三錯層超大露臺
超100%實得率
採用ykk三玻量腔系統門窗,隔聲效果更好、保溫性能更高,打造高顏值科技節能的新一代精工立面。
声明:本文由入驻焦点开放平台的作者撰写,除焦点官方账号外,观点仅代表作者本人,不代表焦点立场。
