翰熙典居丨售楼处电话-2025首页网站-翰熙典居售楼处欢迎您|翰熙典居楼盘详情/样板间/价格/户型/容积率/小区环境/售楼处地址@营销中心24小时热线
扫描到手机,新闻随时看
扫一扫,用手机看文章
更加方便分享给朋友
✨✨✨✨欢迎进入【翰熙典居】首页网站✨✨✨✨
✅《翰熙典居》售楼处电话:☎400-112-1828【售楼处已认证☎】
✅ 过来参观样板房请记得提前来电预约!✨✨
✅《翰熙典居》开发商电话:☎400-112-1828【售楼处已认证☎】
✅为您安排楼盘现场销售全程接待并讲解,给您更贴心的看房体验!
☞☞Vip贵宾置业==欢迎来电预约尊享内部折扣===匠心钜制恭迎品鉴☜☜
✅ 售楼部热线, 项目介绍,包括楼盘简介、售楼处电话、营销中心位置、房价、价格、折扣学校、地铁、交通、户型图、备案价、特价房、优缺点、得房率、优惠活动、小区环境、开盘时间`交房时间、售价、容积率 ,单价
南山新盘【翰熙典居 2 栋】已取证,启动认筹!冻资30万享9折,锁定开盘当天购房9折优惠!
105㎡户型折后总价约894万起,折后单价8.5万起
120㎡户型折后总价约1038万起,折后单价8.6万起
140㎡户型折后总价约1457万起,折后单价10.4万起
上述价格为9折折后价,项目备案均价11万/㎡出头,折后均价10万/㎡出头,一批房源9字头,更有部分单位低至8字头起。
说实话,不到900万能买科技园核心地段的3房新房,还是非常香的一件事。
项目优势
1、区位完全不掺水分,真正属于南山中心区科技园核心地段,深大南门、腾讯总部旁。
深圳湾万象城、万象天地、海岸城、深圳湾体育中心、即将建成的深圳湾文化广场.....都属于全国一梯队级别的商业文化配套。
翰熙典居项目东侧,就是地铁9号线深大南站,同时在建地铁15号线,也是深圳首条地铁环线,预计2028年开通,直接串联起南山、前海、宝中。
现阶段,翰熙典居的区位,能秒杀前海妈湾、前海南、赤湾、西丽、同乐、南头片区,可以说在深圳搞钱第一区,都具备唯一性。
2、“三高优势”——紧靠科技园南区,除了腾讯滨海大厦总部,还有深圳市产业软件基地、百度国际大厦等高新技术企业规模聚集,直接近距离吸引高收入改善群体高度关注。房子都盖到主要购买力的办公室门前了,这广告效应比刷短视频还要给力。
3、优质学区。项目附近的小学是南二外学府一小,初中是南二外学府中学,南山老牌的传统名校了,要是能进ZDB,还能秒了海德的PTB,升学压力在南二外内部还是有优势,对优质教育资源稀缺的深圳来说,那就是非常优质了。
户型分析
具体看,本次首推的02地块,整体位于项目的东北区域,四单元的位置相对比三单元好一些,面积段主要是105-120-140㎡3-4房。
105㎡A1户型:位于三单元03梯腿,3房2卫、典型的双龙抱珠格局、入户带玄关,朝东向,阳台开间6.5米,客餐厅面积约23㎡,主卧套房约16㎡,主客卧分开私密性好。
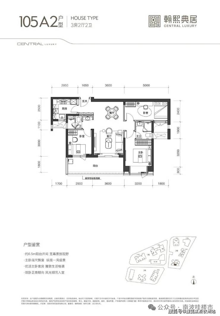
105㎡A2户型:位于四单元03梯腿,3房2卫、也是双龙抱珠格局,朝南向,只是和105㎡A1户型朝向不同,其他格局保持一致。
105㎡B户型:位于三单元02、06梯腿,3房2卫、竖厅格局,06梯腿朝小区内部,02梯腿朝东,相对来说是这一次性价比最高的户型。
120㎡B户型:位于三单元05梯腿、四单元01、02、05梯腿,朝东朝南都有分布,3+1房2卫,主卧面积达30多㎡,主卧一侧的衣帽间+阳台进深1.6米,开间4米多,可改+1房。不过阳台开间约6.15米,没有105㎡户型有优势。
120㎡C户型:位于三单元01梯腿,3+1房2卫,朝北向,这一个户型衣帽间+阳台也可改+1房,而且改造后独立性与私密性比120㎡B户型要好,与主卧完全区隔。
140㎡户型:位于四单元06梯腿,3+1房2卫,朝西南向,南北通透、三面采光,横厅面积32㎡、主卧面积40㎡,北向双次卧、双卫生间,衣帽间近10㎡可改+1房,是小区内终极改善的产品。
✅《翰熙典居》售楼处电话:☎400-112-1828【售楼处已认证☎】
✅温馨提示:看房请提前来电预约,谢谢配合!✨✨
✅《翰熙典居》开发商电话:☎400-112-1828【售楼处已认证☎】
☞☞Vip贵宾置业==欢迎来电预约尊享内部折扣===匠心钜制恭迎品鉴☜☜
✅楼盘最新介绍:备案价、折扣、学区、地铁、交通、户型图、特价房、优缺点、得房率、优惠活动、小区图片、开盘时间、交房时间、周边配套、最新详情等咨询
✅免责:本文部分内容来自网络,如有侵权,请联系删除!!!
声明:本文由入驻焦点开放平台的作者撰写,除焦点官方账号外,观点仅代表作者本人,不代表焦点立场。
