玺玥麓坊最新 (营销中心)2025首页网站-玺玥麓坊 欢迎您@玺玥麓坊 最新楼盘详情-售楼中心-在售户型-备案价@24小时(服务热线)
扫描到手机,新闻随时看
扫一扫,用手机看文章
更加方便分享给朋友
执掌城芯主轴,多维交通畅达各区
紧邻地铁:地铁 5 号线洪浪北站,可快捷连接福田南山等区域。
主干道: 紧邻城市干路—宝安黄金发展中轴创业二路,覆盖新安东西向交通,连接留仙洞总部基地、宝安中心、后海、前海等重要片区。


商业配套算是非常丰富,本身自带两万平米的商业综合体,对面是勤诚达K+广场,步行四百米是中州πmall、满足日常生活需求没有问题。
玺玥华府位于宝安区创业二路与新安三路交汇处,是深圳前海湾芯地标综合体:集高端住宅、商务公寓、甲级办公、集中商业、保障房及多类型配套为一体的区域标志性项目。
玺玥华府开发建面约2.9万㎡,自带3200㎡幼儿园、1800㎡公交首末站、600㎡老年人日间照料中心、1000㎡社区健康服务中心、5000㎡地下商业,配套非常成熟。周边有灵芝公园、新安公园、宝安公园,方便日常休闲娱乐。
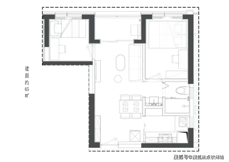
目前在售商务公寓户型建面约44-71平,单价区间在5.84-7.43万/平,
项目地址: 深圳·前海·新安三路27号(地铁5号线洪浪北D出口)
占地面积: 9662.66㎡
建筑面积: 33650㎡
推售产品: 建面约44-71㎡ 1-2房公寓产品
梯户比: 6梯13户
公寓层高: 2.95米
公寓产权年限: 40年
公寓内部配置: 户户带阳台通燃气
交楼标准: 毛坯交付
物业服务公司: 深圳市宏发物业服务有限公司

44㎡1房总价:280-300万 单价6.3-6.8万

53-56㎡1房320-400万 单价6-7.1万


63-65㎡2房2厅1卫 总价380-460万 单价6-7万


71㎡2房2厅1卫 总价450-520万单价6.3-7.3万

世界前海核芯版图,擎领湾区增长极:大湾区国际门户枢纽地位,对标世界超级城市,大前海总体发展规划,共推区域统筹、功能统筹、陆海统筹、岸线统筹,共建全球先进城区,宝安中心区成为国际化城市新中心,宝安都芯强势崛起,全面接轨前海标准。
位于西部黄金中轴发展线上的——新安,占据前海“腹地”,前海+宝安中心区双中芯辐射,城市核芯资源尽皆于此。
高新科技产业及总部汇聚于新安,与众多高科技巨头为邻(如腾讯、vivo、亚太卫星、欣旺达、顺丰等集团),与万亿级市值大坂湾相近,时代菁英比邻而居。

项目交通:紧邻地铁:地铁 5 号线洪浪北站,可快捷连接福田南山等区域。
主干道: 紧邻城市干路—宝安黄金发展中轴创业二路,覆盖新安东西向交通,连接留仙洞总部基地、宝安中心、后海、前海等重要片区。

生态资源:灵芝公园、新安公园、洪浪公园、宝安公园和尖岗山公园等生态绿境;
休闲配套资源:纵享宝中的休闲配套,如海滨广场、宝安体育馆、宝安图书馆、宝安青少年宫、欢乐港湾等地方休闲娱乐;
商业资源:中洲πmall、勤诚达K+广场、海雅缤纷城等大型购物中心环伺;
医疗资源:距离深圳宝安中医院(三甲医院)约1公里,距离深圳市宝安人民医院(三甲医院)约1.5公里,距离宝安妇幼保健院约3.5公里,医疗资源丰富;
教育资源: 宝安中学、孝德学校、灵芝小学、12班幼儿园等教育资源围绕。
项目及样板间实景:
声明:本文由入驻焦点开放平台的作者撰写,除焦点官方账号外,观点仅代表作者本人,不代表焦点立场。
