万科未来之光售楼处电话-2025首页网站-万科未来之光售楼处欢迎您|楼盘详情/样板间/价格/户型/容积率/小区环境/售楼处地址@营销中心24小时热线
扫描到手机,新闻随时看
扫一扫,用手机看文章
更加方便分享给朋友

【开发商】:深圳市安万置业有限公司
【物业公司】:深圳市万科物业服务有限公司
【物业管理费】:6.8元/㎡
【总占地面积】:约7.4万㎡
【总建筑面积】:约21.5万㎡
【容积率】:2.91
【绿化率】:35%
【产权年限】:2022.6-2092.6年(70年)
【总户数】:2466户,可售商品房1699套
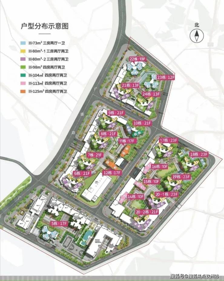
【总栋数及层高】:23栋,10/12/13/17/19/20/21/23F
【梯户比】:2梯6户/1梯2户
【停车位】:2060个
【车位占比】:1:0.83
【交房时间】:2025年12月(3期,3号地块)
【交付标准】:精装修
「万科未来之光」项目位于宝安区新安街道,所处片区为宝安尖岗山豪宅区,处于宝安中心区,南山科技园,西丽留仙洞中间位置,地理优越,项目依山而建,周边有尖岗山公园,宝安公园环绕,整体生态环境优越,周边是深圳有名的豪宅:曦城别墅区,中海九号公馆等。
交通配套
距离最近的地铁兴东站(5号线)步行约2.0公里,目前来看利用地铁通勤较远,小区入住后会有接驳车到地铁站,来解决最后1公里的通勤问题。但真正解决地铁出行不便,则要到前南环线(15号线)宝安公园站开通才能解决,届时900米到地铁站,步行约15分钟,沿线可抵前海,大铲湾,南山中心,宝安核心区
自驾出行方面,项目本身靠近经京港澳高速道路入口,周围的主干道还有南光高速和创业路等,去南山科技园不到20分钟,去福田车公庙不用半小时

商业配套
万科未来之光自带有1万㎡商业街区,在3公里范围内有万达广场,中洲购物中心,海雅缤纷城,沃尔玛等大型商业,6公里范围内有前海壹方城,欢乐海岸等大规模shopping mall。

教育配套
项目内自建幼儿园,3km内南方科技大学附属中学宝安学校(在建中)、宝安中学(集团)实验学校、新安中学(集团)外国语学校、曦城协同学校等学府汇聚
其中宝安中学(集团)实验学校,是宝安中学集团分校,宝安中学是宝安区当之无愧的龙头,同一集团的实验学校自18年招生以来也是稳占深圳学校第二梯队,在教育上是一个比较好的兜底
南方科技大学附属中学宝安学校 今年9月开学在即,本身是双一流大学附属分校教学质量还是值得期待的
医疗配套
南方医科大学深圳医院则距离项目较近,宝安区比较有名的三甲医院有宝安中医院、宝安人民医院、南方医科大学深圳医地铁1号线宝体站附近有宝安区妇幼保健院,基本能满足周边医疗配套需求。

休闲配套
万科未来之光所处的尖岗山板块是深圳有名的豪宅板块,周边环境优美,小区紧挨57公顷的尖岗山公园,距离约700米还有72.5公顷的宝安公园。
平面图及户型图
本宣传资料不构成邀约邀请,对周边、政府规划、商业配套、教育资源、投资前景等数据和图文仅为提供相关信息,该信息以政府最终批文为准,开发商不对此作任何承诺。买卖双方的权利义务以双方签订的买卖合同约定及附件、实际交付为准,本公司保留对宣传资料修改的权利,敬请留意最新资料。联系号码☎:400 065 2898【开发商已认证】
声明:本文由入驻焦点开放平台的作者撰写,除焦点官方账号外,观点仅代表作者本人,不代表焦点立场。
