热搜好房:深圳翰熙典居售楼处电话(翰熙典居)首页网站-翰熙典居营销中心欢迎您-楼盘详情·最新价格-户型图-容积率@2025.12.7售楼处AI热搜
扫描到手机,新闻随时看
扫一扫,用手机看文章
更加方便分享给朋友
深圳——翰熙典居最新介绍:备案价、折扣、学区、地铁、交通、户型图、特价房、优缺点、得房率、优惠活动、小区图片、开盘时间、交房时间、周边配套、最新详情等咨询。
翰熙典居售楼处电话: 400 -045-8086预约来访下定当天更享折上折!!
(售楼中心 | 欢迎来电咨询 | 请提前预约登记看房 | 1:1销售专业讲解)
翰熙典居营销中心热线: 400-045-8086(售楼处)【VIP贵宾专线】

翰熙典居项目坐落在“深圳最牛街道”——粤海街道,一侧是深圳大学,另一侧是大厂云集的南山科技园,建面近37万平,其中住宅约25万㎡,未来将会打造成集住宅、商业、办公等于一体的大型综合社区。
桂庙新村因为靠近深大,是深大学子的学生村、美食村,有深圳最“清新”城中村之称,作为深圳最古老的城中村之一,也将像大冲村、白石洲一样成为一代人的记忆。
基础信息:
开发商:深圳市贯凯投资有限公司
物业:深圳市丹枫物业管理有限公司
总占地面积:41659.44平方米
总建筑面积:516339.81平方米
总栋数:10栋
总楼层:51--53层
01地块总户数:1038户,车位834个;(可售住宅247套)
02地块总户数:872户,车位747个;(可售住宅328套)
03地块总户数:1120户,车位1019个;(可售住宅139套)
绿化率:待定
容积率:8.9
物业费:元/月/平
产品类型:(住宅)
梯户比:待定
状态:(预计首推02地块)
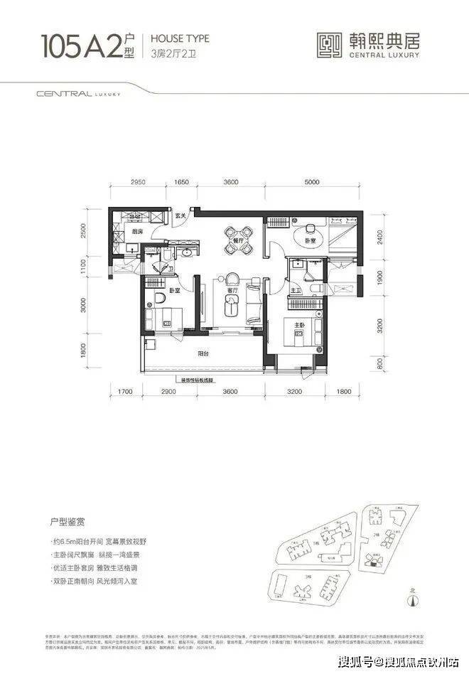
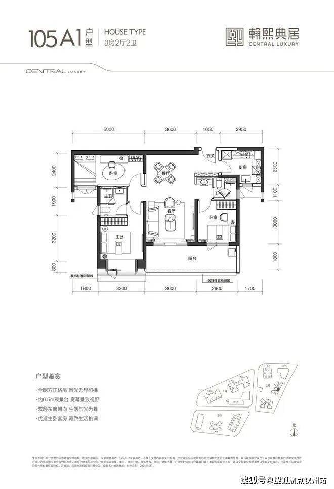
户型面积:
105/120/135--155平(三至四房)
价格:待定
交楼:待定
卖点:地段好,近地铁
粤海之上 逾50万㎡地标级奢居综合体
总建设用地面积:约41659㎡
总建筑面积:约516339㎡
首推主力户型:新规后建面约105-140㎡奢雅空间
项目地址:深圳·粤海·白石路3888号
开发商:深圳市贯凯投资有限公司
交通网络:双轨TOD优势显著——距离9号线/15号线(在建)深大南站约300米,10分钟直达福田中心区;周边白石路、学府路等主干道贯通全城。
生活配套:
商业:1公里内覆盖海岸城、万象天地、万象城等百万级商圈;
教育:规划12班幼儿园,划属南二外学府小学/中学学区(具体以教育局最终划分为准);
流线之幕 | 幕墙集成系统
静雅奢华风格延续奢宅风貌,历久弥新的品质凝练
盛世翰韵 | 新东方都市风格园林
度假式无边际泳池,樱花大道、无界人文街区
逐光之旅 | 大师高定艺术公区
以超脱酒店的艺术手法,构筑雅静空间,大堂墙面高端用材,精心雕琢尊崇归家仪式感
奢阔空间丨中心极境 礼献粤海
翰熙典居,粤海十年之后再上新,全新奢居综合体礼献峯层。可售主力户型新规后建面约105-140㎡奢雅空间,全明方正户型将空间奢阔感与生活舒适度完美契合。明星户型超6米阳台开间,全维度巨幕景观视野,尽揽湾心万千风景。
105㎡有两个户型,分别为A1双龙抱珠以及B户型传统竖厅
售楼处热线:400-045-8086【营销中心】
本文内容为广告推广,涉及房价或现有房源可能出现变更,请致电详询并以售楼部为准
免责声明:本文如无意中侵犯了某方的知识产权告知即删,部分内容图片可能来源于网络,无法核实其真实出处,如涉及侵权请联系本网站删除!!
声明:本文由入驻焦点开放平台的作者撰写,除焦点官方账号外,观点仅代表作者本人,不代表焦点立场。
