华侨城新玺售楼处电话(华侨城新玺)首页网站-华侨城新玺营销中心欢迎您-楼盘详情·最新价格-户型图-容积率@2025.12.09售楼处AI热搜
扫描到手机,新闻随时看
扫一扫,用手机看文章
更加方便分享给朋友

新玺周边荟萃海上世界、太子湾K11艺术购物中心(在建中,预计2024年运营)、太子湾邮轮母港
(总建面约170万㎡)、兰桂坊等一系列国际化商业,都市万千繁华生活一站式尽享。

医疗配套: 项目周边2公里范围内有深圳市南山区人民医院(三甲)、蛇口人民医院;还有南山区妇幼保健院等
(二甲)综合性医院,为您和家人的健康保驾护航。
此外,蛇口还规划构建以公共交通为主导的“4城轨+3快线+10干线”共17条轨道线路组成的综合交通体系。
无论是产业定位、创新体系,还是交通规划等,蛇口在深圳都属佼佼者。
华侨城新玺名苑自身配套有商业,周边交通、商业、教育、医疗等配套也都一应俱全,生活非常便利。此外,项目最独特的配套当属深圳湾海岸线不可复制的海景资源,三面环海,景观优越。
纵观整个深圳,新玺无疑担当着承载这座城市成为国际滨海门户与世界客厅的使命,城市的精英人物在此汇聚,就等你了!
寰海标杆之作,定鼎海岸传奇
【品牌】36载华侨城,实力央企的品牌创想
【区域】蛇口联动前海、深圳湾,三大千亿级经济中心叠加发展
【地段】三面环海半岛,深圳湾线绝版地段,成就世界海岸的坐标
【景观】纵览270°海景,15公里滨海长廊上盖,物尽珍藏,与自然无间
【配套】集结湾区首屈一指的文化艺术坐标,高端商业配套环伺,奢享国际都市生活场
【产品】250米地标级超高层,定鼎深湾之作,4m舒阔层高,只此再无
【酒店&商业】一线酒店品牌酒店入驻,立体开放式悦享天地,奢享全优配套
新玺,一座矗立于都市之巅的28.9万平方米巨制,以垂直城市的创新构想为灵魂,匠心独运地融合高端酒店、海景公寓与多元商业生态,构筑起一座功能复合的生活艺术殿堂。这里,商务办公与社交聚会交相辉映,休闲时光与私密享受无缝切换,构成一幅全天候、多维度的生活画卷。居者于此,可轻松穿梭于各类生活场景之间,体验从晨曦到夜幕,不间断的高品质生活韵律,让每一刻都成为不凡享受。
该项目坐拥10.7万平方米的恢弘体量,巧妙融合商务办公、休闲娱乐、生活居住多元业态,打造以渔文化为灵魂的世界级湾区地标。它不仅是一个综合体,更是深圳湾滨海休闲带上的一颗璀璨明珠,作为重要节点与门户地标,引领区域发展新风尚。
商业布局巧妙,贯穿地下一至四层,涵盖下沉式广场,营造独特景观体验;同时融入精致生态元素,打造融合式商业空间,为顾客带来自然与购物的双重享受。此外,还设有小型快闪店区,为公共商业空间增添活力与新鲜感。特别为公寓及酒店客户规划了私密商业区,提供专属服务体验。整体配套设有1964个停车位,充分满足顾客停车需求,便捷高效。
作为深圳国际教育重地——蛇口,这里吸收了70%-80%的外籍人口子女,平均每2.75平方公里就有一所国际学校。并且深圳真正“血统纯正”的国际学校仅7所,6所都集中在蛇口片区。高水平国际教育资源,培育未来全球精英。
02户型 约230㎡ 三房两厅三卫
03户型 约230㎡ 三房两厅三卫
(02、03镜像对称)
南、北,双面景观视野
看深圳湾海景、内海景、城市景观
【户型亮点】
1. 双龙抱珠户型设计,户型方正实用
2. 双套房朝南,赏南向一线海景
3. 广角视野景观阳台,遨游无垠海天
【一栋 三、四单元】
(24-32层)
三梯两户
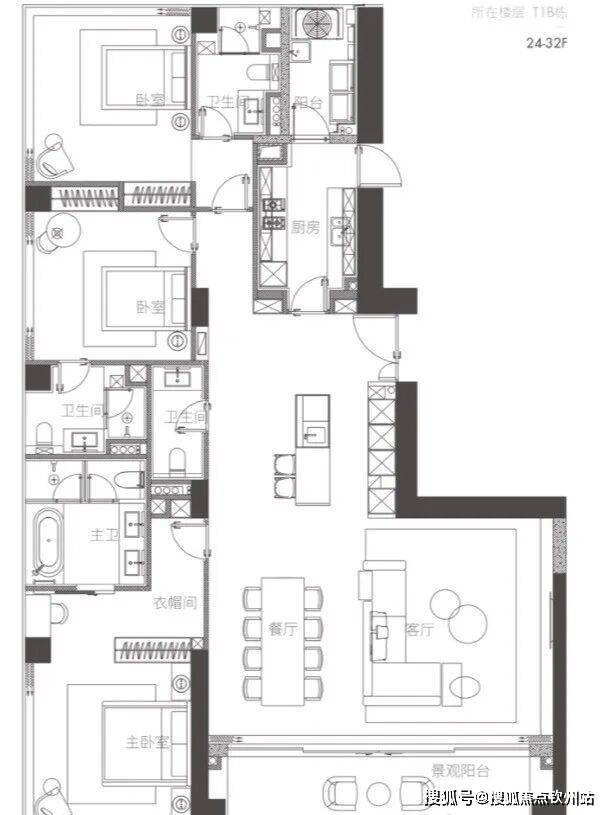
05户型 西端户 约280㎡ 四房两厅四卫
(05、08镜像对称)
南、西、北,三面景观视野
看深圳湾海景、内海景、城市景观
08户型 东端户 约280㎡ 四房两厅四卫
(05、08镜像对称)
南、东、北,三面景观视野
看深圳湾海景、内海景、城市景观
【户型亮点】
1. 超8米超宽幕开间,厅出阳台邂逅无垠海景
2. 三套房设计,尊贵私属空间
3. 主卧L形全景落地窗,270°最佳观海位
4. 动静分区布局有序
06户型 约230㎡ 三房两厅三卫
07户型 约230㎡ 三房两厅三卫
(06、07镜像对称)
南、北,双面景观视野
看深圳湾海景、内海景、城市景观
【户型亮点】
1. 双龙抱珠户型设计,户型方正实用
2. 双套房朝南,赏南向一线海景
3. 广角视野景观阳台,遨游无垠海天
高区大户型
【一栋 一、二单元】高区
(33-38层)
三梯一户
01+02户型 约700㎡ 六房三厅七卫
南、西、北,三面景观视野
看深圳湾海景、内海景、城市景观
【户型亮点】
1. 一层一户,臻稀单位,仅6席。
2. 七房六套房设计,尊贵私属空间
3. 主卧L形全景落地窗,270°最佳观海位。南向超大三厅一体,奢华大气。
4. 动静分区布局有序
03+04户型 约500㎡ 五房三厅六卫
南、东、北,三面景观视野
看深圳湾海景、内海景、城市景观
声明:本文由入驻焦点开放平台的作者撰写,除焦点官方账号外,观点仅代表作者本人,不代表焦点立场。
