深圳(南山)金众云山海公馆售楼处电话(首页网站)欢迎您-金众云山海公馆营销中心地址-楼盘详情·最新价格-户型图-容积率@售楼处✦AI热搜
扫描到手机,新闻随时看
扫一扫,用手机看文章
更加方便分享给朋友
东区(交房2026.12月底,精装交付)
折后总价
1-1702,116平,830万
1-303,116平,770万
3-3503,116平,847万
1-205,117平,715万
1-2705,117平,791万
3-1301,155平,1205万
西区(交房2026.6月底,精装交付)
折后总价
1-503,129平,1016万
总建面约19.5万m²,包括住宅、商业(800m²)和幼儿园等配套用房。一共5栋楼,分为东西区,首推的是西区(1栋+3栋)334套住宅,其中1栋37层,2梯4户,3栋36层,3梯6户,2026年6月底精装修交楼。
东区1栋和3栋住宅480套, 层高51层,3梯5户,交房时间为2026年12月底精装修交楼。
周边配套
交通方面:地铁交通:步行约200米,即可抵达2/5号线的赤湾站,项目与深圳首条环形地铁15号线紧密相连,为您的出行增添更多选择与便利,此外,周边更有12号线、28号线(规划中)以及24号线(规划中)等地铁线路汇聚,后期连接前海、后海总部基地、宝安中心、留仙洞总部基地、福田香蜜湖等城市价值核心区。
干路交通:1.5公里范围内有兴海大道、南海大道、望海路、港湾大道、月亮湾大道等多条主干道,想去前海、宝中、福田,说走就走!
水路交通:10分钟车程可达太子湾邮轮母港,连接香港、澳门及大湾区城市,甚至可直接邮轮出国旅游。
教育方面:社区自带双18班幼儿园(建设中)、直线距离约280米公办九年一贯制南二外赤湾学校、深大附中高中部、北师大南山附校高中新校区(即市第三十高级中学,建设中)、两所九年一贯制学校(规划中)。
商圈方面:直线距离约1.8公里可享受约46万㎡太子湾商圈,包括K11、兰桂坊(建设中)等商业高端,真正实现地铁一站即达。

文体方面:【区域高端休闲生活配套】
湾区最大歌剧院-约22.2万㎡深圳歌剧院
涵盖30余种潮流体育娱乐项目的湄南河体育小镇
深圳顶尖创意产业发生地-蛇口价值工厂
深圳市区内粤港澳自由行指定停靠的游艇会-深圳湾游艇会
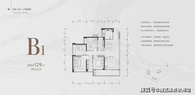
户型鉴赏
声明:本文由入驻焦点开放平台的作者撰写,除焦点官方账号外,观点仅代表作者本人,不代表焦点立场。
