首页网站【鸿荣源观城】✆新房热搜【鸿荣源观城】持续火爆中【鸿荣源观城】✆售楼处电话⋙预约看房⋙最新楼盘百科详情⋙房价⋙户型图
扫描到手机,新闻随时看
扫一扫,用手机看文章
更加方便分享给朋友
…鸿荣源观城……鸿荣源观城……

最新消息:
鸿荣源观城,3栋1单元折后价格:
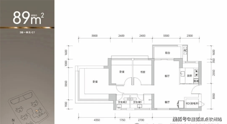
约88㎡(3房2卫)约104套 折后344-365万
约98㎡(3房2卫)约208套 折后377-418万
鸿荣源观城在售1栋二单元开盘折后价格:
07户型:88平(南北通透)单价38200-39100,总价336-344万。
01户型:88平(南北通透)单价39900-40800,总价351-359万。
05户型:98平(西南向)单价38500-39400,总价378-387万。
03户型:98平(东南向)单价39600-41100,总价389-404万。
06户型:117平(西南向)单价43500-44000,总价509-520万。
02户型:108平(东南向)单价43700-45200,总价475-491万。




龙华观澜,鸿荣源观城(首推地块备案名:未来平方云山府),本次将会首推1栋2单元,共312套房源,面积有88-98㎡的3房2卫,108-117㎡的4房2卫户型,周边有2024年9月入市的金光华溪山禾玺,备案均价4.43万/㎡以及2024年5月份入市的景勋天著,备案均价4.97万/㎡,实际折后销售均价4.2万/平,这次观城开盘均价大概率也是在这个幅度范围内,预计在2026年12月份带精装交付。
鸿荣源观城作为观澜CBD综合体大盘,从建设初期就一直广受关注,迭代升级的壹方天地2.0版本,集超40万㎡一站式观城壹方商业、3所全龄段公立学校、5大生态公园、三甲医院及甲级写字楼集群于一体,以全维配套矩阵重塑区域价值,打造深圳西部醇熟生活新范本!
项目区位
鸿荣源观城,位于龙华区观湖街道4号地铁线“观澜站”旁,从大区位来看,项目处于龙华六大重点发展片区之一的鹭湖中心区,规划建设集聚区域性总部研发办公、中高端商业服务、应用研发与双创专业服务平台、培训展示、文化、医疗、行政服务、中小企业孵化培育等功能,将环湖活力生态区升级为辐射深莞中部的综合服务核心区。

项目介绍
鸿荣源观城,原为龙华区观湖街道观城第一期城市更新单元,该城市更新单元总规划占地约38万㎡,总建筑面积约275万㎡,共分六期16个地块开发,其中住宅面积133万㎡(其中包含了公租房18.08万㎡,土地整备安置房1万㎡),其中1/2期加起来有8108套房源,包含了有商品房5602套,租赁+安置房2506套。
本次首推的08地块,备案名:未来平方云山府,由鸿荣源集团打造,共分3期建设,总占地面积约2.73万㎡,总建筑面积约37.41万㎡,计容建筑面积约27.51万㎡,容积率9.23,绿化率32.01%,共由5栋58-59层高住宅组成,其中1栋1单元住宅59F,1栋2/3单元住宅58F,3栋1单元/2单元住宅58F,4栋1/2单元写字楼35F,2栋是1所18班幼儿园,配建有公交首末站。
总规划1566户,全部都是商品房,3梯6户设计,地下室有4层,规划2220个车位,其中包含公共停车位200个,实际车位比约1:1.29。
声明:本文由入驻焦点开放平台的作者撰写,除焦点官方账号外,观点仅代表作者本人,不代表焦点立场。
