鸿荣源壹城中心十区(鸿荣源壹城中心十区售楼处)首页网站|鸿荣源壹城中心十区欢迎您_价格_户型_地址
扫描到手机,新闻随时看
扫一扫,用手机看文章
更加方便分享给朋友
——鸿荣源壹城中心十区——
在售户型图丨项目详情介绍丨最新售价丨项目周边配套丨详细在线解答
➢ ➢鸿荣源壹城中心十区售楼处400热线电话☎:400-101-6201【售楼处认证】✨✨✨
➢ ➢鸿荣源壹城中心十区营销中心24小时电话☎:400-101-6201【售楼处认证】✨✨✨
➢ ➢鸿荣源壹城中心十区售楼处电话:400-101-6201销售中心电话:400-101-6201 (中介勿扰)在售户型图丨项目详情介绍丨最新售价丨项目周边配套丨详细在线解答✨✨✨
项目基本信息
开发商:鸿荣源地产
地址:深圳市龙华区景龙建设路与景龙太平路交汇处
占地:130万㎡(十区:2.53万㎡)
建面:320万㎡(十区:29万㎡)
产权:70年(15-95年)
总户数:1656可售1056
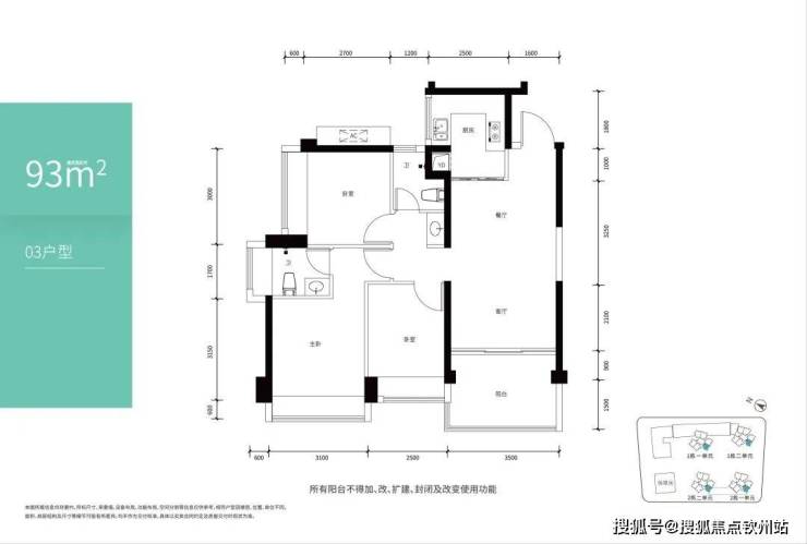
面积:85-93㎡3房2卫
车位比:1600个1:0.97
梯户比:3梯6户
价格:6.1.-7.4万
交楼标准:精装
物业公司:鸿荣源物业
水电:民水民电
学校:龙华创新实验
区域价值
「 龙华超级商圈,世界级消费中心 」
龙华超级商圈:龙华六大重点片区之一,以人民路为中轴,规划承载中洲龙商旧改、龙华海岸城旧改为核心,打造人民路龙华超级商圈。
世界级消费中心:未来龙华超级商圈将成为规模超200万㎡、产值超500亿的市级核心商圈和世界级未来消费体验中心。
作为壹成中心的压轴之作,十区自发布入市的消息以来,一直为购房者所期待。不少购房者为了等10区,放弃其它新盘,就是看重十区更繁华、更便利。
从位置上看,十区位于建设路旁,近人民路、东环一路,入住后出行更方便,快速上龙华大道等主干道,自驾更便捷。
从地铁出行看,十区距离地铁四号线龙华站约500米,比其它片区更近。
4地铁环绕,尽享城市中轴便捷出行十区地铁出行目前有地铁4号线龙华站,直线距离约500m。未来,深圳地铁25/27/22号线(规划中)等线路开通后,未来大家出行又多出更多选择。
从学校看,十区东边就是龙华区创新实验学校小学部和龙华区创新实验学校附属幼儿园,南边是龙华区创新实验学校初中部。学校建筑楼栋高度大多在30米以内,视线受遮挡程度较低,未来拥有更加开阔的视野范围,景观优势更明显。
从商业配套看,十区位于壹方天地最早开业的A区旁,生活氛围成熟。商业配套可满足全龄段生活需求,吃喝玩乐一应俱全,商场一整天都逛不完。
壹成中心以约1/2平方公里的恢弘体量,引领区域人居价值再上新台阶。
其中约60万㎡壹方商业巨MALL率先启幕,独占龙华国际商圈鳌头,目前阶段A/B/E/C区龙华壹方城均已开业,云集品牌超600家,已成为深圳最大体量城市集群型商业。
在壹成中心十区,匠造高约7.2米纯手工打磨黄金麻石出入门庭,以及近4米高差的跌瀑水景,只为以品质生活,予您尊崇归家仪式感。
多元景观园林、中心阳光草坪、入口水景,一草一木倾力构筑美好,一步一景,每一帧都是超带感的实景大片,为您勾勒出幸福生活。
壹成十区准现房品质住区,精造公区尊崇礼遇,入户大堂打造高标准酒店式入户大堂,恢宏大气,历久弥新;外立面升级铝板立面为主,简约时尚,美观耐久,造价也更高。
建面约85-94㎡精装准现房,严选家的每一个细节,木制防火门的入户门,搭配了智能四合一门锁,有指纹、密码、刷卡、钥匙四种开门方式,出门也不用担心忘记带钥匙。
户型鉴赏



✅ 开发商营销中心诚挚邀请,一键预约,尊享内部独家折扣!匠心独运的精品项目,恭候您的品鉴与选择。
✅ 本项目暂不接受临时到访,过来参观样板房请记得提前来电预约!
✅ 为您安排楼盘现场销售全程接待并讲解,给您更贴心的看房体验
声明:本文由入驻焦点开放平台的作者撰写,除焦点官方账号外,观点仅代表作者本人,不代表焦点立场。
