华侨城新玺(售楼处) 电话-华侨城新玺营销中心地址/楼盘配套-预约电话-交房时间/容积率@华侨城新玺售楼处❥Ai热搜
扫描到手机,新闻随时看
扫一扫,用手机看文章
更加方便分享给朋友
项目自带1.8万平的商业,由华润万象运营。打造开放、包容同时富有活力的全新购物体验,规划有高端餐饮、生鲜超市等业态,可以全面满足未来业主的生活和日常休闲购物的需求。
在本体配套方面,项目在1栋的第5层规划了:咖啡吧、书吧、健身房、私人会所等多功能高端私密会所,此外,还打造了深圳首个悬空无边际室外全海景泳池,全方位满足业主生活配套服务需求。
项目直线范围5公里内,可达体量超100万㎡的海上世界综合体,与项目毗邻的太子湾综合体也将入驻中国首家一线临海的K11、香港兰桂坊LKF。
项目邀请了世界顶级设计师团队,包括GMP(建筑设计)、LKL(灯光)、MSP(园林)、RFR(幕墙)、MVA(交通顾问)等,倾力打造。
全屋精装交付,精选国际一线品牌。
自外向内,从理念到设计,充分打造滨海奢居新体验!
开发商:华侨城新玺发展有限公司
物业:华侨城
总栋数:3栋
占地面积:25147.13平方米
建筑面积:288268.36平方米
容积率:9.13
绿化率:30%
总房源:226户
在售户型:
商办:320--400平
公寓:230--280--350--468--500--700平
层高:3.6--4米
车位:660个
物业费:14.8元/㎡/月
梯户比:商办10梯5户,10梯6户:公寓3梯2户,3梯1户产品类型:(商务公寓/办公/酒店)
【多维立体交通 高效畅达湾区半小时生活圈】
新玺项目毗邻蛇口国际邮轮母港可快速辐射深圳国际机场、香港国际机场等城市核心交通要塞。更有“七纵三横一高速”的便捷交通路网环伺,高效畅达湾区核心城市半小时生活圈。

【顶级商圈环绕 畅享都市万千繁华】
新玺周边荟萃海上世界、太子湾K11艺术购物中心(在建中,预计2024年运营)、太子湾邮轮母港
(总建面约170万㎡)、兰桂坊等一系列国际化商业,都市万千繁华生活一站式尽享。

医疗配套: 项目周边2公里范围内有深圳市南山区人民医院(三甲)、蛇口人民医院;还有南山区妇幼保健院等
(二甲)综合性医院,为您和家人的健康保驾护航。
项目步行范围内,还可轻松到达海上世界文化艺术中心、深圳歌剧院等城市文娱配套,其中深圳歌剧院,是比肩悉尼歌剧院的全球级歌剧院,建筑面积达22.2万平,将成为世界级的艺术殿堂。试想,日后的某个傍晚时分,伴着夕阳,迎着海风,在黄昏中漫步到达你家“后花园”中的某个城市地标,惬意生活不过如此。
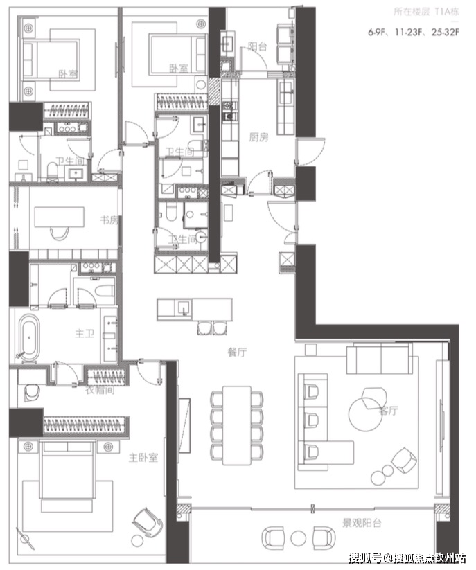
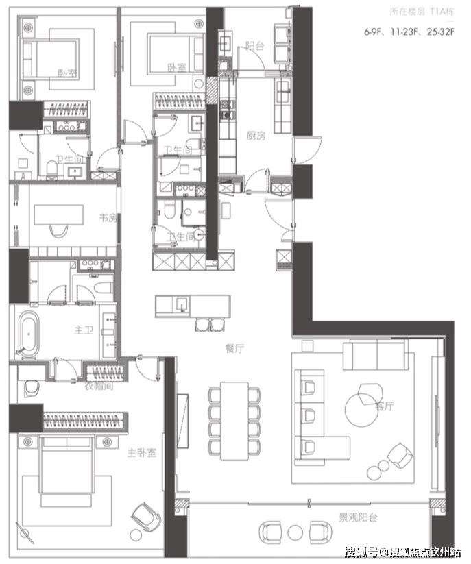
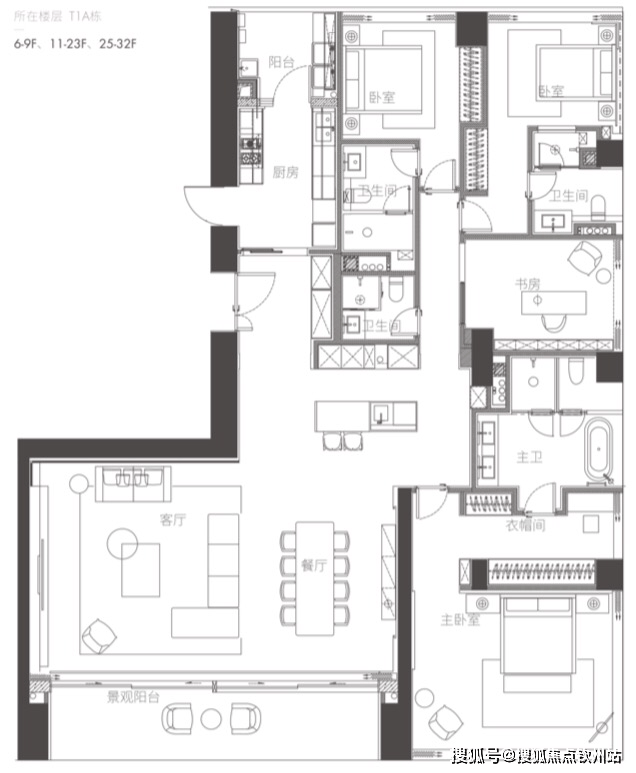
户型布局
华侨城新玺提供多种户型选择,满足不同购房者的需求。户型面积范围广泛,从232㎡到700㎡不等。具体户型包括1室1厅1卫、2室2厅2卫、3室2厅3卫、4室3厅5卫、5室3厅6卫以及6室3厅7卫等多种配置。户型设计合理,空间宽敞明亮,注重人性化需求。部分户型还配备了超大阳台和全景落地窗,让居民能够尽享海景和城市美景。
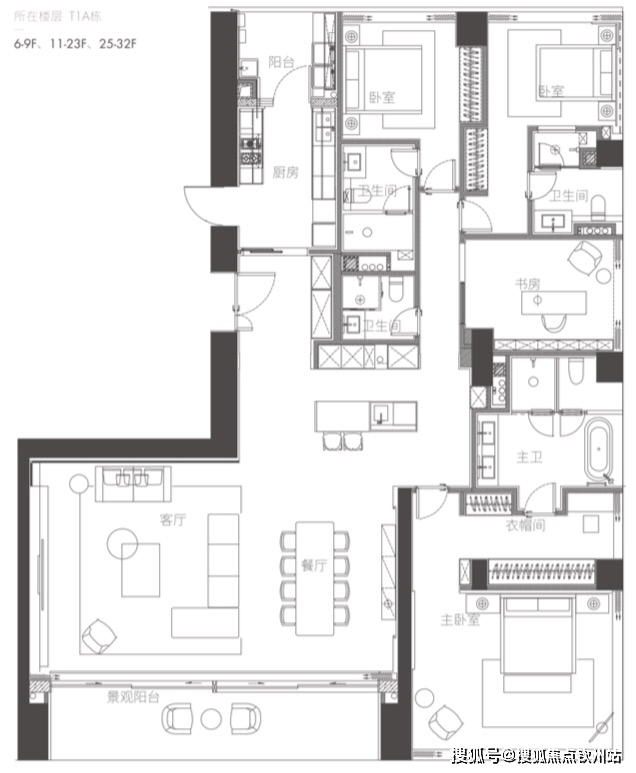
【一栋 一、二单元】
(6-32层)
三梯两户

01户型 西端户 约350㎡ 四房两厅四卫
(01、04镜像对称)
南、西、北,三面景观视野
看深圳湾海景、内海景、城市景观

04户型 东端户 约350㎡ 四房两厅四卫
(01、04镜像对称)
南、东、北,三面景观视野
看深圳湾海景、内海景、城市景观

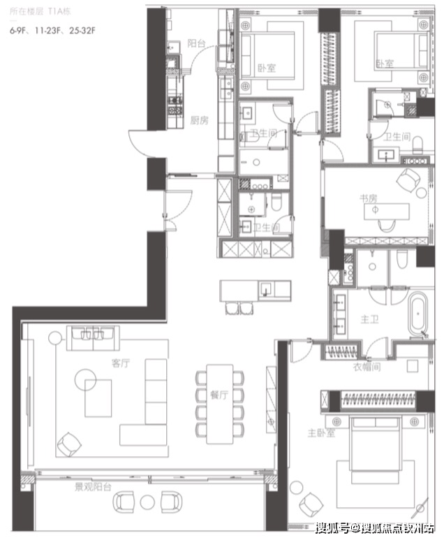
【一栋 一、二单元】
(6-32层)
三梯两户

01户型 西端户 约350㎡ 四房两厅四卫
(01、04镜像对称)
南、西、北,三面景观视野
看深圳湾海景、内海景、城市景观

04户型 东端户 约350㎡ 四房两厅四卫
(01、04镜像对称)
南、东、北,三面景观视野
看深圳湾海景、内海景、城市景观

“2025年在深圳买房,真的比之前容易太多了!”最近不少朋友跟小美感慨。 不限购区域扩了、房贷利率降了、公积金额度还涨了,一波波政策红利砸下来,刚需、改善族都直呼 “终于等到机会”。
那到底2025年深圳购房政策有多友好?不限购区域具体扩到哪里?房贷利率能省多少钱?首付比例又有哪些新调整?小美整理了一份超全干货攻略,从购房资格到贷款、税费,帮你把政策读懂、把成本算清,稳稳抓住这波置业窗口期!
01
2025最新购房资格:分区限购松绑
2025年9月6日起实施的新政首次明确分区差异化限购政策,不同区域购房资格差异显著,精准匹配刚需与改善需求,具体看下面图片:
02
贷款政策 “大放水”:利率 3.05%
统一利率:首套、二套“同价”,5年期仅 3.05%
中国人民银行2025年8月20日公布LPR后,深圳随即跟进调整:住房贷款不再区分首套、二套。
贷款年限
最长30年,多数银行可贷至75岁,部分银行可至80岁。

03
深圳买房首付比例最新标准

一句话总结:利率够低,首付够少,这是近年来最佳的贷款环境!
04
公积金新政:额度涨、门槛降,跨城置业也能贷
2025年8月实施的公积金新政从额度、首付、办理流程全维度优化,多子女家庭与首置群体受益明显。
贷款额度
基础额度:个人60万元;家庭110万元。
首套住房+二孩及以上家庭+保障房:个人最高可贷126万元,家庭最高可贷231万元。
贷款利率依然诱人
首套房: 5年以下2.1%,5年以上2.6%。
二套房: 5年以下2.525%,5年以上3.075%。
政策便利性全面提升
首付比例:首套、二套统一20%,保障房低至15%!
异地贷款:外地缴存的公积金,也能在深圳贷款买房!
商转公:流程简化,只要商贷余额不超过评估价80%,即可申请转换。
还款灵活:每年可用公积金余额提前还款,离婚、继承等场景可直接变更借款人,无需先还清贷款。

一句话总结:公积金不仅是补充,更是主力!用好它,能省下真金白银!
05 2025购房税费明细:成本清晰可算
购房税费直接影响实际支出,2025年深圳税费政策保持稳定,核心税种如下:
1
契税
家庭唯一住房:≤140㎡收1%,>140㎡收1.5%。
家庭第二套住房:≤140㎡收1%,>140㎡收2%。
第三套及以上/非住宅:统一收3%。
举例:买一套500万、120㎡的首套房,契税为5万元。
声明:本文由入驻焦点开放平台的作者撰写,除焦点官方账号外,观点仅代表作者本人,不代表焦点立场。
