深圳焦点热搜:琅玥湾佳园售楼处电话→琅玥湾佳园售楼处地址 交楼时间 2025最新价格@售楼处2025.9.25
扫描到手机,新闻随时看
扫一扫,用手机看文章
更加方便分享给朋友
4000689978
半岛擎峯二期」位于南山蛇口赤湾片区,属蛇口招商街道,是南山区的西南海角,东临蛇口太子湾,西接前海自贸区。
这个天然位置按理可以两头吃,但过去因为交通瓶颈的问题发展比较缓慢,直到近两年才开始大刀阔斧搞发展。
楼盘的具体位置在赤湾总部大厦旁,临近赤湾地铁站,是蛇口线(2号线)和环中线(5号线)的换乘站。
虽然很多人提到赤湾内心多少有点抗拒,不过在价格面前,这个地方还是有一定的性价比。位置、交通、周边配套都还是蛮不错的,如今卷到了龙华北站甚至沙井的价格,是可以拿来同位对比的。
「半岛擎峯二期」是赤湾汇广场综合体的住宅项目,这个综合体包括了商品房、人才房、办公、酒店和商场。
其中商品房住宅单独占有一个地块,有两栋超高层组成。
半岛擎峯也是开云府2期,该楼盘全部都是商品房住宅,无安居房、公租房、回迁房等,并且属于赤湾首排一线海景住宅,一梯一户板楼设计,户户朝南。
项目基本信息
开发商:中国南山开发(集团)有限公司
物业公司:赤湾物业
总占地面积:约1.1万㎡
总建筑面积:约7.5㎡
容积率:约4.5
绿化率:40%
栋数:1栋和8栋
总户数:总户数380户
总层高:45F
梯户比:2-30层5梯5户、31-45层4梯4户(1梯1户最大的卖点)
车位:330个
物业费:7.28元/㎡·月
产权:70年
房产性质:住宅
交楼时间:2025年10月
交楼标准:精装修
面积:113-167㎡3-5房
户型介绍:
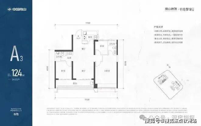
半岛擎峯二期」户型为124-129-133㎡三房二卫和203㎡大四房三房,除了最小的124㎡其他都是多阳台设计。纵使这个三房的尺度感比如今市面上很多刚需三房二卫要宽敞不少,但整体来看使用率确实不高。
129㎡三房二卫A1:
A1有两条腿,分别1-1栋01/02,主朝向是西北向,双龙抱珠格局。
舒适大三房设计主卧都享有270度采光面,整体空间尺度感大且采光面充足,视野非常宽阔。
129㎡三房二卫A2:
A2有两条腿,分别1-1栋03/06,主朝向是东南向,双龙抱珠格局。这个户型是超阔大阳台,朝向优于A1,但公卫是个暗卫。
124㎡三房二卫A3:
A3也是两条腿,分别是1-1栋04/05,主朝向是东南向,双龙抱珠格局。客厅拥有超大观景阳台,缺点是公卫是个暗卫,小次卧和主卫也对天井外走廊,采光不足。
203㎡四房三卫B1:
位于1-2栋两条腿,设有电梯厅入户空间,隐私性拉满,这个空间约有面积6.27㎡,空间也可以很好利用。
整个户型设计是四房三卫南北通透,约有7.4米大阳台。双套房设置且270°景观面,主卧带独立衣帽间和大浴缸。
133㎡三房二卫B2:
B2有两条腿,分别1-2栋03/04,主朝向西南向,竖厅设计。
这个户型的所有卧室空间都比较平均,主卧两面采光,综合来看是个很完整的传统三房户型。
交通
2号和5号线交汇站赤湾站上旁边盖,交通便利可乘坐5号线和2号线迅速到达前海宝中及蛇口、深圳湾深超总等核心片区。
拥有2号线/5号线/12号线三条地铁加持,交通路网四通八达。这里到南山核心各个区域都很近,1站可达太子湾,2站抵达前海和海上世界。
教育配套
4所幼儿园、南二外赤湾学校,周边还有九年一贯制学校(规划中)、北师大南山附属高中新校区、南山中英文学校、深圳贝赛思国际学校、深美国际学校等教育资源。
商业配套
自带约4.2万㎡商业(在建中),将引进知名运营商统一运营。地铁1站直达太子湾,享受K11 ECOAST、兰桂坊(在建中),2站海上世界,链接蛇口、前海高端商业。约6公里范围内华润万象前海、前海山姆会员店、卓悦Intown、蛇口沃尔玛、招商花园城、海岸城、宝能太古城、来福士广场等多个大型商超。
休闲配套
三山为庭:大南山,负氧离子浓度高达5000/cm³,与小南山、赤湾山三山林立,城市绿肺环抱,轻松鲜活富氧呼吸。
一海为院:伶仃洋天然在侧,黄金海岸线前沿占位,感受妈祖文化、见证郑和下西洋的远航足迹。
七园为邻:约2公里范围内,有大南山公园、小南山公园、文天祥纪念公园、华英路景观公园、赤湾公园、兴海公园、月亮湾公园等公园环伺。
人文沉淀:项目周边遍布历史遗迹,有文天祥纪念公园、天后宫、赤湾烟墩、左炮台等,见证宋明清三个时代的历史印记。
声明:本文由入驻焦点开放平台的作者撰写,除焦点官方账号外,观点仅代表作者本人,不代表焦点立场。
