沙井·鸿荣源珈誉府(鸿荣源珈誉府)首页网站丨鸿荣源珈誉府_房价_户型_楼盘详情
扫描到手机,新闻随时看
扫一扫,用手机看文章
更加方便分享给朋友
鸿荣源珈誉未来花园,由鸿荣源集团操盘,总占地面积约7.28万㎡,总建筑面积约55.23万㎡,计容建筑面积约34.25万㎡,容积率4.39,绿化率35%,共由9栋总高47-48层的超高层住宅组成,其中1栋1/2/3单元,2栋1单元住宅47F,2栋2/3单元住宅48F,3栋1/2单元住宅48F,4栋住宅48F。
总规划2578户,全部为商品房,3梯6户/3梯7户设计,规划停车位3745个,车位占比1:1.45。
名字:鸿荣源珈誉府/珈誉玖玺
区域:宝安新桥
价格:46000/㎡起
性质:红本住宅
年限:70年
规模:嘉誉府9栋,嘉誉玖玺10栋
总层高:44—48层
得房率:77%
梯户比:3梯6户/2梯2户/3梯5户
总户数:2280户
占地面积:嘉誉府43146㎡/嘉誉玖玺47900㎡
建筑面积:嘉誉府354478㎡/嘉誉玖玺405000㎡
交房时间:2025.9.30
交房标准:简装修
开发商:鸿荣源
容积率:5.33%
绿化率:35%
停车位:4333个
物业公司:深圳市鸿荣源物业服务有限公司
拿地时间:2022年5月—2092年5月
物业费:5.9元/㎡
是否限购:不限
户型面积
嘉誉府:
两房两厅66㎡
三房两厅一卫76㎡
三房两厅两卫85—87—96㎡
四房两厅两卫104—120㎡
嘉誉玖玺:
四房两厅两卫124—137—169—199㎡
周边配套
学校:直线3km范围内有55个幼儿园;10个小学,如塘尾万里学校、深圳市桥兴学校、厚德小学、万丰小学、宝安区桥头学校-桥头小学等;10个中学,如南方科技大学附属中学、立新湖外国语学校、翻身实验学校(西校区)、深圳市和平中英文实验学校、景山实验学校等。
根据相关规划,项目配建有一所63班九年一贯制学校,目前根据深圳外国语学校(集团)宝安学校的招生范围,项目位于该校的学区范围内
地铁:周边直线3km范围内有4个地铁站(塘尾、桥头、马安山、桥头西),轨道交通发达,距离最近的地铁站是塘尾。
周边直线1km内有23个公交站,距离最近的凤塘大道东站仅有36m,周边公共交通极为便捷
其他:楼盘直线3km范围内有4个一级及以上医院,为医疗需求提供了保障。
楼盘周边3km范围内有33个商场,包括果粒城、天虹商场(沙井店)、形色城购物中心(沙井店)、彩虹缤纷城、同泰时代广场等购物中心,商业配套成熟,完全可以满足日常购物需求。
楼盘周边生态环境优越,周边3km范围内有62个公园,距离最近的仅458m,非常方便日常休闲使用。
下楼即享商业:百亿超级商圈,定鼎西部新中心
🥇鸿荣源斥资打造又一湾区城市级购物中心
🏅约50万㎡“湾区壹方”、约10万㎡“熊出没”主题华强广场
🏅宝安首家山姆会员店、海岸城20万㎡商业,缤纷商业集聚
🏅共筑百亿超级商圈,定义湾区城市商业新模式,定鼎西部新中心
01
楼盘效果图
02
楼盘效果图
03
楼盘效果图
04
楼盘效果图
05
楼盘效果图
06
楼盘意向图
07
楼盘区域图
8
楼盘户型图65㎡
9
楼盘户型图 76㎡
10
楼盘户型图 ㎡85
11
楼盘户型图 87㎡
12
楼盘户型图 94㎡
13
楼盘户型图 96 ㎡
14
楼盘户型图 105㎡
15
楼盘户型图 124㎡
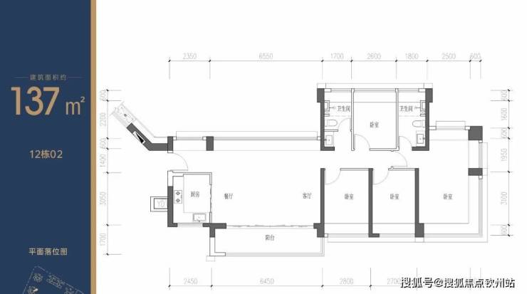
16
楼盘户型图 137 ㎡
17
楼盘户型图 169 ㎡
18
楼盘户型图 199 ㎡
声明:本文由入驻焦点开放平台的作者撰写,除焦点官方账号外,观点仅代表作者本人,不代表焦点立场。
