(珠海)华发院子售楼处电话→华发院子百度Ai热搜>华发院子营销中心24小时电话>2025最新房价>楼盘百科详情>售楼处最新发布2025.9.2
扫描到手机,新闻随时看
扫一扫,用手机看文章
更加方便分享给朋友
华发院子项目是华发地产推出的新中式院墅产品,融合了传统中国元素和现代科技建筑工艺,结合岭南特色文化,打造出高品质的湾区新中式院墅标杆。
华发院子带来的产品,是独门独户,有天有地有院子,具备传世的价值。
这与市面上联排、叠墅或者大平层有着本质性的区别,可最大化占有土地。尤其是在禁墅令之后,其稀有性,无需赘述。
拥有这样一个院子,是四代同堂,大家族的院落;是难以复制的私密、尊贵感的卓越生活;也是其乐融融、兴趣各得其所的家。
目前主要推出的产品为建面(地上计容面积)约140㎡双拼,建筑面积约350-420㎡;约209㎡独栋,建筑面积约540-610㎡;以及约329㎡独栋,建筑面积约750-790㎡。
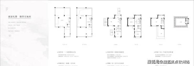
【天地之美 一院鉴赏】
约140㎡溪语——双境雅墅
建筑面积约350-420㎡溪语礼赞 徜徉天地间
▍双车位独立地下车库设计
▍5.8米地下层高,多元功能空间随意打造
▍约123㎡大庭院,休闲小憩观景
▍约6.2米挑高客厅,约4米开间大尺度▍约7.8米开间主卧套间设计,独享阔绰露台
约209㎡风吟——奢境独院
建筑面积约530-610㎡
行山问水 且听风吟
▍三车位独立地下车库,约5.8米地下层高
▍约330-380㎡地下空间规划
▍约254㎡开放式围合庭院
▍首层约4.6米开间、6.7米宽厅,客餐厅一体
▍约7.2米开间主卧搭配露台,自在休闲娱乐空间
约329㎡悦澜——奢境河院
建筑面积约750-790㎡
建面约336㎡“两亩一栋”户型,以巨幕奢尺敬献湾区名门望族。
两亩一栋,约1200㎡超大私家庭院设计,给予充足的空间去释放个性的生活需求,豪门大宅风范。天地院子里,笔墨移章,莳花理草,悦一缕时光 ,度一场清欢,让理想生活更踏实!
▍整期产品仅18套,一线河景,超大庭院,绝版稀缺大独栋▍配置四车位,约420-460㎡地下室,采光充足▍首层约7米挑高,约6.4米大比例开间客厅▍二层私享卧室套间,独立卫浴衣帽间▍三层约6.4米奢华主卧,三大露台,独享一线河景
共201栋别墅产品,分别是:
①130套双拼,地上建筑面积约140㎡,地下建筑面积约210~280㎡,花园面积约125~175㎡,加赠送总使用面积600㎡起;
珠海斗门中式别墅【华发院子】
②53套雅士独栋,地上建筑面积约210㎡,地下建筑面积约330~400㎡,花园面积约250㎡,加赠送总使用面积1000㎡起;
③18套临河独栋(近三亩一栋),其中10套地上建筑面积约为330㎡、8套地上建筑面积约为360㎡,地下建面约420~490㎡,花园面积约1300㎡,加赠送总使用面积约2100㎡起。
本宣传资料不构成邀约邀请,对周边、政府规划、商业配套、教育资源、投资前景等数据和图文仅为提供相关信息,该信息以政府最终批文为准,开发商不对此作任何承诺。买卖双方的权利义务以双方签订的买卖合同约定及附件、实际交付为准,本公司保留对宣传资料修改的权利,敬请留意最新资料。联系号码☎:400 065 2898【开发商已认证】
声明:本文由入驻焦点开放平台的作者撰写,除焦点官方账号外,观点仅代表作者本人,不代表焦点立场。
