松茂御城雅苑二期售楼处(松茂御城雅苑二期) @AI热搜-松茂御城雅苑二期售楼处最新价格-最新折扣-户型图@2025.12. 8售楼处AI热搜
扫描到手机,新闻随时看
扫一扫,用手机看文章
更加方便分享给朋友

户型图鉴:81平米3+1房多变空间



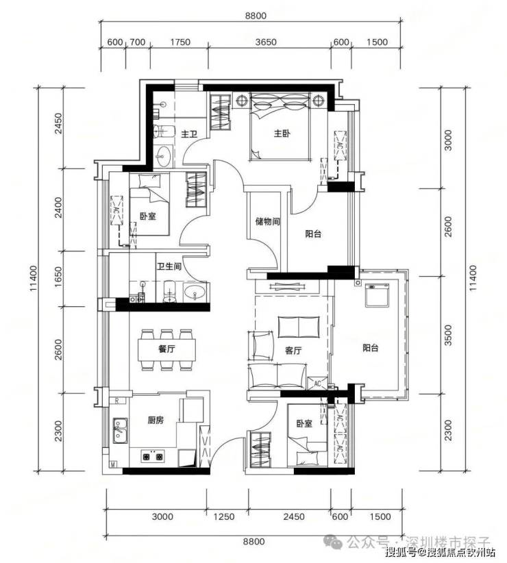
89平米4房2卫:
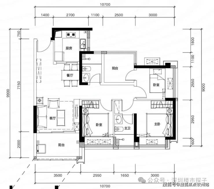
109平米4房2卫:
135平米5房2卫:

公积金首套:2.6% 二套:3.075%

深圳购房注意事项
在深圳购房需注意以下关键事项,涵盖政策、贷款、税费及交易流程等方面:
一、购房资格与政策
1. 限购政策
核心区域(福田、南山、宝安新安街道):深户家庭限购2套,非深户需连续缴纳1年社保或个税限购1套;非深户家庭有2个及以上未成年子女可额外购买1套。
非核心区域(罗湖、龙岗、坪山等):深户不限购,非深户连续缴纳1年社保或个税不限购,未缴社保或个税的非深户限购2套。
盐田、大鹏新区:全国居民均可自由购房,无需审核资格。
成年单身人士:按家庭标准执行限购政策。
2. 公司购房
核心区:公司需注册满1年、员工10人、纳税100万,不限套数。
非核心区:注册即可购房,无套数限制。
二、贷款政策
1. 商业贷款
利率统一为3.05%(5年期以上),首付比例:首套15%、二套20%。
贷款年限最长30年,多数银行可贷款到75岁,公积金贷款只能申请到70岁。
2. 公积金贷款
个人最高126万,家庭最高231万。
首套、二套首付均为20%,保障房首付15%。
贷款额度为公积金余额的16倍,有二孩及以上家庭购买第二套房享首套房政策。
三、税费与费用
1. 契税
首套或二套,140㎡以下1%,140㎡以上首套1.5%、二套2%。
家庭唯一住房且面积≤140㎡,契税为1%;面积>140㎡,契税为1.5%。
第三套及非住宅统一为3%。
2. 其他费用
产权登记费80元/套,抵押登记费80元/套。
二手房增值税、个税等按房屋年限及性质计算,满2年普通住宅免征增值税。
四、交易流程与注意事项
1. 签约前
核查开发商“五证”(国有土地使用证、建设用地规划许可证等),确保商品房销售许可证有效。
二手房需确认房屋产权清晰,无抵押、查封,核实房东户口迁出时间及学位占用情况。
2. 贷款与资金
首付款须为自有资金,禁止使用经营贷或借款。
提前自查征信与银行流水,流水需覆盖房贷月供2倍以上。
3. 收房与验房
核查户口是否迁出,清点钥匙、家电等物品,结清物业费、水电费。
更换门锁芯,确保居住安全。

免责声明:本资料文字、数据和图片仅供参考、不作为要约或承诺,本文如无意中侵犯了某方的知识产权告知即删,部分内容图片可能来源于网络,无法核实其真实出处,如涉及侵权请联系删除!
声明:本文由入驻焦点开放平台的作者撰写,除焦点官方账号外,观点仅代表作者本人,不代表焦点立场。
