深圳翰熙典居售楼处电话-深圳翰熙典居首页网站|欢迎您|楼盘百科-价格_户型_地址_详情
扫描到手机,新闻随时看
扫一扫,用手机看文章
更加方便分享给朋友
翰熙典居目前在售户型主要为建面约105-140㎡的3-4房
户型详情:
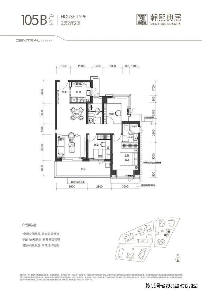
(1)105㎡3房2卫:双龙抱珠格局,朝东/南,阳台开间6.5米,适合刚需家庭。
(2)120㎡3+1房2卫:主卧套房超30㎡,可灵活改造空间,适合改善型需求。
(3)140㎡3+1房2卫:南北通透,横厅32㎡,主卧40㎡,适合大户型偏好家庭。
翰熙典居,位于深圳南山粤海街道腾讯总部旁,前身为“桂庙新村旧改项目”。
项目总建面约37万㎡,建成后将成为集住宅、商业、办公及酒店为一体的大型综合项目,能为片区供应含保障房在内近25万㎡住宅。
翰熙典居总占地70224㎡(相当于10个标准足球场大小),定位是打造集居住、商业、办公、酒店及公共配套设施为一体的综合社区。
项目开发建设用地41660㎡,容积率8.9,计容建筑面积369100㎡,包含住宅249950㎡(含人才住房和保障性住房32500㎡),商业、办公及旅馆业建筑106530㎡(含商业文化设施不低于5330㎡)。
另外,项目还有规划近12620㎡的公共配套设施、3200㎡ 的12班幼儿园、占地面2900㎡公交首末站等,并配建占地面积1500㎡的社区体育活动场地。
项目总投资83.56亿元,共分三期开发,除去保障性住房和回迁房,总共可售714套商品房。
项目是超50W方的地标综合体,分3个地块总共有9栋,这次先推2号地块三、四单元,面积是105-120-140平米新规后的产品;
三单元51层,3梯5户,3套105平米,2套120平米;四单元53层,3梯5户,1套105平米,3套120平米,1套140平米。
项目总规划1038套,其中保障房612套、回迁179套、可售商品房247套。规划停车位834个,车位比为1:0.83,车位略紧张。本期推售面积为105-135-165的3-4房,将按照新规进行户型设计,预计使用率可达90%,项目展厅及销售团队已开放展厅及样板间。
在交通配套方面,项目距离9号线/15号线(在建中)交汇处——深大南站不到300米,地铁出行十分便利。
其中,地铁15号线是深圳首条环线轨道,起终点均为前海站,极速串联起前海、宝中、大铲湾、“腾讯科技岛(在建中)”、南山科技园、后海总部基地、留仙洞总部基地等高端产业密集区,是深圳最具有价值的一个圈。
此外,自驾出行也很方便。项目临近南海大道、滨海大道,去往深超总部基地、前海自贸区、宝中等西部核心区域仅要20分钟内。
在商业配套方面,项目自带约5000㎡的商业规划。2公里范围内有海岸城、茂业百货、海雅百货等大型商超,日常购物娱乐皆能满足。
在教育配套方面,根据2024年南山学区划分,项目对口学校是南山区第二外国语学校(集团)学府一小和南山区第二外国语学校(集团)学府中学。根据坊间学校排名,两所学校均属于第二梯队。(具体入学以当年教育局公布为准)
学府中学成立于 2003 年,是南二外教育集团目前孵化的成员学校当中,综合实力仅次于南二外海德初中部的存在。学校现有 50 个教学班,2400 余名学生和 201 名教职员工,师资力量雄厚。
学府一小地处南山商业文化中心区,2001年建校,近年来刚刚扩建完成,扩建后学校环境、设施都进行升级,配备了未来教室、创客实验室等多种功能教室,生源主要覆盖深大周边,是学府中学的主要生源地小学。
在文体休闲方面,3公里范围内汇聚文心公园、南山书城,荷兰花卉小镇、南头古城、荔香公园、深圳人才公园等,各种休闲娱乐设施一应俱全。
在医疗配套方面,项目距离深圳大学医院约828米,距离三甲医院——南山区人民医院约1.2km,基本可满足居民日常看病就医需求。
项目户型图
翰熙典居的户型设计紧跟新规,套内实用率超过了90%,部分户型甚至接近100%。这意味着,购房者可以用更少的钱买到更大的使用空间。例如,105㎡的三房户型,实际使用面积相当于传统120㎡的户型,性价比极高。
翰熙典居营销中心看房/咨询热线:400-066-0916【售楼处】
预约来访尊享优惠,案场内部销售人员,一对一热情服务,让您用专业眼光去买房!
免责声明:本文如无意中侵犯了某方的知识产权,告知即删。
声明:本文由入驻焦点开放平台的作者撰写,除焦点官方账号外,观点仅代表作者本人,不代表焦点立场。
