开云府(营销中心)2025最新网站丨开云府售楼处欢迎您@开云府最新楼盘详情-售楼中心-在售户型-备案价@24小时售楼热线
扫描到手机,新闻随时看
扫一扫,用手机看文章
更加方便分享给朋友
【开发商】深圳市海越锦实业发展有限公司
【项目地址】南山区招商街道赤湾三路与赤湾六路交汇处
【占地面积】约1.1万㎡
【总建筑面积】约7.5万㎡
【建筑类型】2栋住宅
【可售套数】约380套
【产品面积段】建面约113-124-129-167㎡2-5房及少量顶复
【梯户比】5T5/4T4
【容积率】4.77
【使用率】约80%
【车位】330个,1:0.87
【楼层高】共两栋,48F/25F
【交楼时间】25年10月精装交付
【产权年限】70年
项目区域价值
【双湾交汇 城市战略前沿】
作为国家海上丝绸之路的桥头堡,赤湾占据前海湾和蛇口双湾交汇处,是两大中心组团双向奔赴的融合地带,是世界服务贸易重要基地和国际性枢纽港,既可享前海发展利好,亦可享蛇口国际生活配套。
项目周边配套
交通配套:山海丹华府距离2/8号地铁线“赤湾站”距离约300米,步行约5分钟即可,2站到海上世界,前海妈湾,另外附近有小南山隧道在建,待开通后可直达前海核心区,还有妈湾跨海通道在建,待开通后可直达腾讯科技岛,无缝对接中山通道。
学校配套:项目200米处有南二外赤湾学校,该校有41个班,其中小学26班,初中15班,是1所九年制公办学校;南山中英文学校,该校是1所12年制的国际学校,涵盖小学,初中,高中,于2023年9月份已经正式开学,并且开办了协同港籍学生班, 是一所获得深圳教育局和香港教育局统一批准的港籍子弟班。这也就意味着学校办学稳定,学生可无缝衔接香港的学校。
商业配套:项目约200米有约4.6万㎡赤湾汇商业(待营业),约1.9公里有约46万㎡的太子湾高端商业(在建,建成后将会是整个深圳最大体量最高端的商业体,内有K11ECOAST,兰桂坊太子湾等),约2.2公里有海上世界,2站可以抵达前海印里,前海世贸中心等商业综合体。
K11ECOAST是K11在内地的首个旗舰项目,计划在2024年底开业运营,总建筑面积约22.85万㎡,延续了K11品牌 “艺术·人文·自然”三大核心元素,涵盖K11购物艺术中心、K11 HACC多用途艺术展览空间、K11 ATELIER办公楼及Promenade海滨长廊等。
K11 ECOAST致力打造中国有影响力的海滨文化艺术区,开业后将成为深圳最大的购物中心之一,也是粤港澳大湾区的商业新标杆与名片。
项目户型介绍
113㎡的3房2厅2卫,设计的是竖厅格局,电梯入户送独立公区,LDKB一体化设计,动静分区,三开间朝南,客厅连接次卧出超大观景阳台,主卧大套间设计,二字型厨房带1个小生活阳台,卫生间干湿分离,得房率:72.07%(不含赠送),西南朝向。
124㎡的3+1房2厅2卫,1栋02/2栋04户型,电梯入户送独立公区,设计的是竖厅格局,LDKB一体化设计,动静分区,主卧套间设计,还有一个多功能间可以做书房,U型厨房,公卫三段式分离,得房率:72.07%(不含赠送),西南朝向。
124㎡的4房2厅2卫,1栋01/2栋05户型,电梯入户送独立公区,设计的是横厅南北通透格局,客餐厅6.1米开间,LDKB一体化设计,五开间朝南,主卧大套间设计,6.1米长观景大阳台,U型厨房,公卫三段式分离,得房率:72.07%(不含赠送),西北或东南朝向。
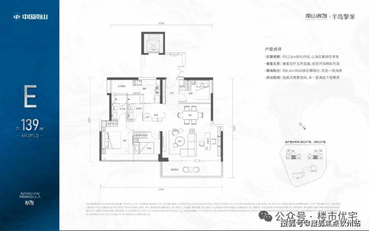
139㎡的4房2厅2卫,1栋03/2栋02高区户型,电梯入户送独立公区,设计的是竖厅类双龙抱珠格局,四开间朝南,主卧大套间设计,有1个多功能间可以做书房,6.4米长观景大阳台,L型厨房带1个生活阳台,卫生间干湿分离,得房率:72.07%(不含赠送),西南朝向。
167㎡的5房2厅3卫,1栋02/2栋03高区户型,电梯入户送独立公区,设计的是竖厅双龙抱珠格局,四开间朝南,超宽敞客厅巨幕阳台,主卧大套间设计,U型厨房,双公卫三段式分离,得房率:72.07%(不含赠送),西南朝向。
声明:本文由入驻焦点开放平台的作者撰写,除焦点官方账号外,观点仅代表作者本人,不代表焦点立场。
