鸿荣源珈誉府售楼处电话➤➤➤➤鸿荣源珈誉府首页热搜24小时电话➤➤➤鸿荣源珈誉府最新房价➤楼盘百科详情➤鸿荣源珈誉府营销中心最新发布@售楼处中心
扫描到手机,新闻随时看
扫一扫,用手机看文章
更加方便分享给朋友
═ ═ ⑉ıl⑉ 鸿荣源珈誉府 ⑉lı⑉ ═ ═
⚠️⚠️⚠️【购房须知】:
鸿荣源珈誉府项目售楼处(营销中心)电话为4000 437 779(开发商权威认证),请提前拨打售楼中心电话预约,销售一对一深度讲解楼盘, 更享额外购房优惠!谢谢您的配合!
✨✨鸿荣源珈誉府售楼中心24小时电话☎:4000 437 779【☎权威认证】✨✨
✨✨鸿荣源珈誉府售楼处24小时电话☎:4000 437 779【☎权威认证】✨✨
✨✨鸿荣源珈誉府营销中心24小时电话☎:4000 437 779【☎权威认证】✨✨
☞☞Vip贵宾置业→欢迎来电预约尊享内部折扣→匠心钜制恭迎品鉴☜☜
注: ◆◆◆若有中介虚假宣传,请及时与售楼中心核对真假,避免上当!开发商热线4000 437 779【已核验】
在深圳西部楼市中,鸿荣源的作品向来自带 “爆款基因”。位于宝安区沙井街道的鸿荣源珈誉府 2 区,作为大型综合体标杆项目,集交通便利、优质教育、丰富商业于一体,自亮相起便备受关注。

规模体量:总占地面积约 4.79 万㎡,总建筑面积约 40.53 万㎡,容积率 5.42,绿化率高达 40%,在高密度城区中开辟出舒适绿意空间。


产权与交付
产权年限从 2022 年 5 月至 2092 年 5 月,足足 70 年产权;预计 2026 年 12 月精装修交付,省心入住无需额外折腾。
楼栋与车位
规划 10 栋住宅楼,楼高 31-48 层不等;梯户比涵盖 2 梯 2 户、3 梯 5 户、3 梯 7 户,兼顾私密性与便捷性;配备 2795 个停车位,车位占比 1:1.127,彻底告别 “停车难”。
总户数
共 2479 户,既能形成浓厚的社区氛围,也能保障居住的舒适度。
二、全能配套开挂!交通 / 教育 / 商业 / 休闲全无忧
1. 交通:地铁直达 + 规划加持,速通全城核心区
项目最大亮点之一便是 “零距离” 地铁 —— 直连 11 号线塘尾站,6 站到宝中、7 站到前海、9 站到后海、11 站到车公庙,无论是通勤南山、福田,还是往返核心商圈,都高效省时。更值得期待的是,片区中远期还有规划线路 30 号线横穿而过,未来交通路网将进一步升级,出行选择更丰富。
2. 教育:名校学区 + 目送式上学,家长省心之选
根据宝安区教育局 2024 年学区划分,项目已划入深圳外国语学校(集团)宝安学校学区,优质教育资源触手可及。更贴心的是,项目北区 04-09 地块和南区 12-01 地块将新建深圳外国语学校宝安学校(集团)南校区,未来业主孩子大概率能实现 “目送式上学”,免去接送奔波,成长路上多一份安心。

3. 商业:百亿超级商圈,在家门口逛遍全球
鸿荣源斥资约 250 亿打造约 50 万㎡“湾区壹方” 城市级购物中心,规模与档次拉满;宝安首家山姆会员店将于 2025 年底开业,生鲜、家居、零食一站式采购;周边还有约 10 万㎡“熊出没” 主题华强广场、18 万㎡海岸城商业已开业,三大商业体共筑百亿超级商圈,吃喝玩乐购全满足,下楼即享繁华生活。
4. 休闲:多公园环绕,解锁自然惬意时光
项目距离凤凰山森林公园约 3.5km,闲暇时登山吸氧、俯瞰全景,感受山林静谧;周边还有万丰湖湿地公园、立新湖公园等绿色配套,饭后散步、周末野餐、亲子游玩,随时切换 “城市绿洲” 模式,为生活注入自然活力。

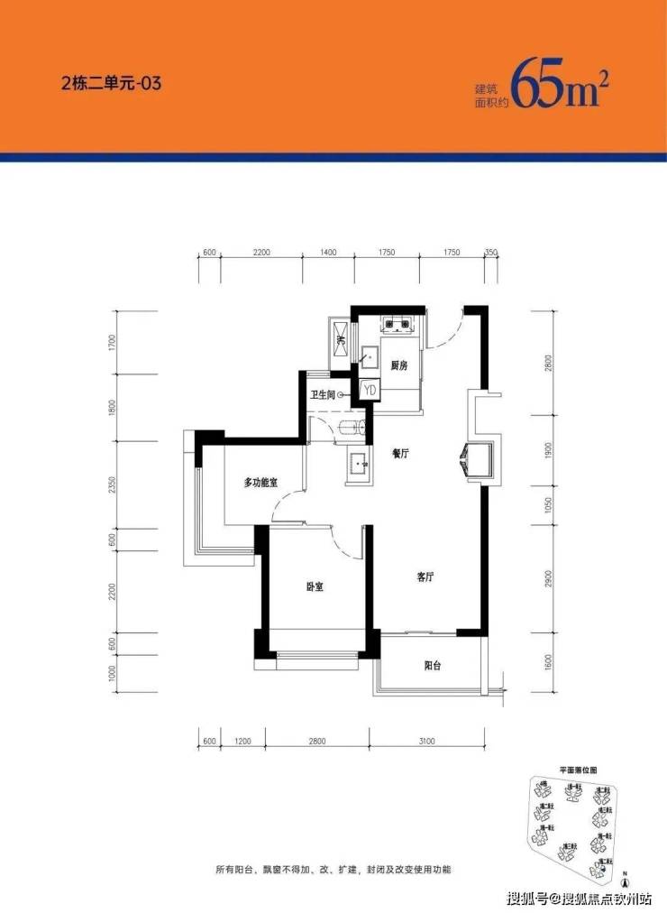
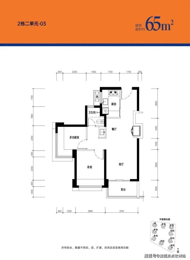
65㎡的2房2厅1卫,设计的是竖厅格局,LDKB一体化,客厅3.1米开间,S墙设计预留冰箱卡槽位,2个卧室分别为2.8/2.35米的宽度,U型厨房,得房率:77.27%(不含赠送),阳台进深1.6米,东北朝向。
76㎡的3房2厅1卫,设计的是竖厅格局,LDKB一体化,客厅3.1米开间,S墙设计预留冰箱卡槽位,3个卧室分别为2.9/2.8/2.25米的宽度,U型厨房,得房率:77.54%(不含赠送),阳台进深1.6米,东南朝向。
85㎡的3房2厅2卫,设计的是竖厅格局,LDKB一体化,客厅3.2米开间,S墙设计预留冰箱卡槽位,3个卧室分别为3/2.7/2.4米的宽度,主卧270°环幕飘窗视野,U型厨房,公卫三段式分离设计,得房率:77.54%(不含赠送),阳台进深1.6米,西北朝向。
86㎡的3房2厅2卫,设计的是竖厅南北通透格局,客厅3.2米开间,3个卧室分别为3.2/2.75/2.4米的宽度,主卧270°环幕飘窗视野,U型厨房,得房率:77.54%(不含赠送),阳台进深1.3米,主朝西北、东北、东南或西南朝向。
87平米,设计的是横厅南北通透格局,客餐厅6.2米开间,3个卧室分别为3.3/2.65/2.35米的宽度,主卧270°环幕飘窗视野,U型厨房,得房率:77.54%(不含赠送),阳台进深1.7米,主朝东南朝向。
94㎡的3房2厅2卫,设计的是竖厅格局,动静分区,客厅3.4米开间,S墙设计预留冰箱卡槽位,3个卧室分别为3.7/2.7/2.35米的宽度,主卧270°环幕飘窗视野,U型厨房,得房率:77.54%(不含赠送),阳台进深1.6米,西南朝向。
105㎡、120㎡,设计的是竖厅格局,动静分区,客厅3.6米开间,个卧室分别为3.3/2.75/2.35/2.35米的宽度,主卧270°环幕飘窗视野,U型厨房,阳台进深1.6米,西南或东南朝向看小区花园。

═ ═ ⑉ıl⑉ 鸿荣源珈誉府 ⑉lı⑉ ═ ═
⚠️⚠️⚠️【购房须知】:
鸿荣源珈誉府项目售楼处(营销中心)电话为4000 437 779(开发商权威认证),请提前拨打售楼中心电话预约,销售一对一深度讲解楼盘, 更享额外购房优惠!谢谢您的配合!
✨✨鸿荣源珈誉府售楼中心24小时电话☎:4000 437 779【☎权威认证】✨✨
✨✨鸿荣源珈誉府售楼处24小时电话☎:4000 437 779【☎权威认证】✨✨
✨✨鸿荣源珈誉府营销中心24小时电话☎:4000 437 779【☎权威认证】✨✨
☞☞Vip贵宾置业→欢迎来电预约尊享内部折扣→匠心钜制恭迎品鉴☜☜
注: ◆◆◆若有中介虚假宣传,请及时与售楼中心核对真假,避免上当!开发商热线4000 437 779【已核验】
【免责声明】本文部分信息和图片来源网络,如有内容侵权请联系删除。本文所述内容和意见仅供参考,不构成市场交易依据和投资建议。
声明:本文由入驻焦点开放平台的作者撰写,除焦点官方账号外,观点仅代表作者本人,不代表焦点立场。
