鸿荣源胤璞(售楼处) 首页网站-鸿荣源胤璞营销中心-环境-户型-鸿荣源胤璞地址-楼盘详情-配套-电话-交房时间-配套-电话-交房时间
扫描到手机,新闻随时看
扫一扫,用手机看文章
更加方便分享给朋友
项目基本信息
占地面积:约5万㎡
建设用地面积:约3.8万㎡
总建筑面积:超34万㎡(2栋甲级办公楼、1栋五星级酒店,2栋服务式公寓)
梯户比:T1栋27层3T2户 T2栋41层2梯4户
层高:3.3-3.5米
商务公寓:约5.3万㎡
商务办公:约17.2万㎡
酒店:约5万㎡
商业:约6.4万㎡
公寓、商业建筑设计公司:LEAD8
写字楼、酒店建筑设计公司:美国GP
公寓建筑面积:约5.26万㎡
总套数:约300套
产品面积:86-130-166-366㎡(1房-2房-3房-4房)
产权年限:40年(2013年-2053年)
开发商:鸿荣源集团
物业公司:鸿荣源物业
交楼标准:精装(大师定制)
交楼时间:2021年10月底
物业管理费:12.8元/㎡·月
单价:15-30万/㎡
地铁:项目与前海交通枢纽地下联通;5号线(桂湾站);1/5/11号线(前海湾)
项目基本信息
占地面积:约5万㎡
建设用地面积:约3.8万㎡
总建筑面积:超34万㎡(2栋甲级办公楼、1栋五星级酒店,2栋服务式公寓)
梯户比:T1栋27层3T2户 T2栋41层2梯4户
层高:3.3-3.5米
商务公寓:约5.3万㎡
商务办公:约17.2万㎡
酒店:约5万㎡
商业:约6.4万㎡
公寓、商业建筑设计公司:LEAD8
写字楼、酒店建筑设计公司:美国GP
公寓建筑面积:约5.26万㎡
总套数:约300套
产品面积:86-130-166-366㎡(1房-2房-3房-4房)
产权年限:40年(2013年-2053年)
开发商:鸿荣源集团
物业公司:鸿荣源物业
交楼标准:精装(大师定制)
交楼时间:2021年10月底
物业管理费:12.8元/㎡·月
单价:15-30万/㎡
地铁:项目与前海交通枢纽地下联通;5号线(桂湾站);1/5/11号线(前海湾)

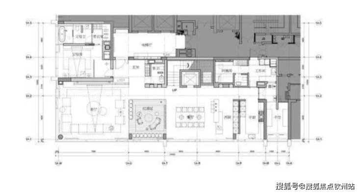
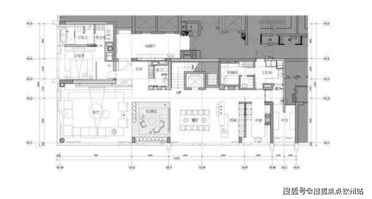
户型鉴赏
T1栋楼王(27层3梯2户,人脸识别,专梯入户)
366㎡平层,4房3厅4卫4阳台+工人套房+洗衣间
户型亮点:主佣电梯分离入户,10米开间超大横厅设计,71万㎡双公园环抱、270度一线无敌海景、多变的城市景观以及大小南山复合景观汇聚一身,除了电梯,全是景观


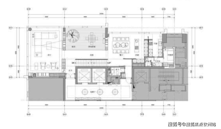
T2栋(41层,3梯4户,人脸识别梯控,标准层层高3.3m)
86㎡1+1房
4.3米客厅超宽尺度,朝东向,尽享礼盒花园美景,安静惬意。
130㎡2房2厅2卫
朝东向,4.5米客厅开间,7.5米大阳台,270℃客厅半海景、城市景观、花园内景。
135㎡,2房2厅2卫
双龙抱珠,双阳台设计;两卧室和客厅尽享前海无敌海景、18万平演艺公园。
户型C/G,166㎡平层:三房两厅三卫
户型亮点:7.8米超大开间,大横厅转角270℃无敌一线海景及18万演绎公园景观,可以说除了卫生间全是海景、公园景观及摩天轮景观;(仅供参考)

T2栋(41层2梯4户,人脸识别到层)
86㎡ 1套房+1书房
客厅、卧室全朝东南,看花园和城市夜景;
130㎡ 两房两厅两卫
客厅和两间卧室都朝东南向,4.5米客厅开间,7.5米大阳台,看桂湾河、部分海景和城市景观;
135㎡,两房两厅两卫
户型亮点:双龙抱珠,厅出阳台;两卧室和客厅相同景观,都可享受一线海景、18万演绎公园景观;
166㎡平层,三房、两厅、三卫
户型亮点:7.8米超大开间,大横厅转角270℃无敌一线海景及18万演绎公园景观,可以说除了卫生间全是海景、公园景观及摩天轮景观
交通配套
200米范围内,全亚洲最大的交通枢纽:及“9+2+1”海陆空轨立体交通规划,与世界无缝接轨。
前海作为大湾区核心交通枢纽中心,将构建“9+2+1”陆海空立体交通构架,加快前海与香港等湾区城市互联互通,加速链接全球核心城市,四通八达的先进交通规划,助您愉悦出行。
大湾区的交通中心在前海:7+5轨道,超200万平米的亚洲最大交通枢纽
前海综合交通枢纽位于前海桂湾片区,占地约20万平米,建筑面积超200万平方米,总投资约288亿,目前是在建的亚洲最大的交通枢纽。前海综合交通枢纽定位为对外交通中心、通勤中心,是穗莞深城际线、港深西部快线、深圳地铁、常规公交线路、出租车及社会车辆等多种交通接驳方式于一体的综合性交通枢纽。
前海综合交通枢纽由享誉世界的德国建筑师事务所GMP负责规划,包括地上和地下两部分
地上部分的开发早已不仅限于交通,而是围绕着交通所带来的各种城市功能的聚集。除了出租车和公交系统,前海综合交通枢纽的地上部分还有九栋超高层建筑,包括3家酒店和办公、公寓等业态。另外还规划有大型商业配套,办公居住、休闲娱乐,一站尽享。
教育配套
学府林立,菁英教育,书香延绵百年
周边环伺国际名校资源哈罗礼德学校。荟同学校。国王学校等以精英化教育培养下一代

邻近2所幼儿园、九年制南山实验学校、前海港湾学校,前海港湾小学以及哈罗国际、 荟同双语、国王学校等
桂湾规划片区内,规划主要的教育设施包括国际学校一所、九年一贯制学校三所、小学一所、幼儿园七所

医疗配套
汇聚医疗配套全系资源,环伺周边,为家人的身心健康全程保驾护航
泰康国际医院(在建,三甲)、仁济医院、南方医科大学深医院(三甲)、南山区人民医院(三甲)等
泰康国际医院效果图

商业配套
高端定制级商业——壹方汇
【前海鸿荣源中心】自享逾6万㎡壹方汇商业与前海规划建设的百万平米超级商业中心”,环球潮奢集结,坐享全方位辐射的商业核心,会晤前海繁华

近揽前海未来最大的购物中心:前海国际枢纽中心商业购物中心
周边汇聚约8万㎡万象前海、约4万㎡前海卓悦INTOWN、约3万㎡山姆旗舰店等品牌商业开车10分钟可达壹方城购物中心。欢乐港湾购物中心,蛇口K11兰桂坊等大型商业中心
文体配套
世界级人文地标环伺,享全球文化魅力共赏代表中国水准的人文艺术氛围
伯克利未来音乐中心(规划中)、国深博物馆(在建)、前海演艺中心(规划中)等
生态配套
中央生态,自然盛景,畅享美好日常
近揽公园、绿道、水体等中央生态
为全球菁英创造涵养身心怡然之地
桂湾公园、前海演艺公园、前海石公园、运动公园等自然簇拥
前海将按照“公园中建城市、城市中建公园”的理念,规划“一湾、两山、五区、四岛”结构,建设国际化城市新中心。
“一湾、两山、五区、四岛”
一湾:生态前海湾
两山:大南山、小南山
五区:桂湾区、前湾区、妈湾区、蛇口片区、宝安中心区
四岛:国际科技创意岛、深港服务贸易岛、国际交流会议岛、深港航运物流岛
产品实景鉴赏




【鸿荣源胤璞】
声明:本文由入驻焦点开放平台的作者撰写,除焦点官方账号外,观点仅代表作者本人,不代表焦点立场。
