松茂御城二期售楼处电话丨松茂御城二期【营销中心】 (24小时电话 ) 松茂御城二期首页网站欢迎您丨最新价格-楼盘详情-周边配套
扫描到手机,新闻随时看
扫一扫,用手机看文章
更加方便分享给朋友
深圳光明区凤凰片区-松茂御城二期 售楼处电话☎:400 006 8087【售楼处已认证】✅
深圳光明区凤凰片区-松茂御城二期 售楼中心电话☎:400 006 8087【售楼中心已认证】✅
深圳光明区凤凰片区-松茂御城二期 营销中心电话☎:400 006 8087【营销中心已认证】✅
深圳光明区凤凰片区-松茂御城二期 销售中心电话☎:400 006 8087【销售中心已认证】✅
官方认证电话为 400 006 8087,该号码由开发商统一认证,可用于预约看房、咨询房源及优惠活动。
本项目暂不接受临时到访,过来参观样板房请记得提前来电预约!
为您安排楼盘现场销售全程接待并讲解,给您更贴心的看房体验!

🉐超100%使用率·即买即住·赠送品牌精装
🏠建面约81-137㎡ 精装现房 13号线双地铁口
✨邻383万㎡13号线重点城市更新✨
项目位于广深港科创走廊重要节点的“世界一流科学城”光明,归属凤凰城街道,邻建面约383万㎡13号线重点城市更新单元(在建),占位光明城市发展的“价值洼地”,同享磅礴产业规划红利。13号线重点更新项目(在建),总投资约420亿元,其体量约为光明城站TOD的25倍。将结合13号线月亮路站塑造、城市蓝绿公园网络提升、产城空间更新,无限链接生产、生活、生态要素,建设成光明区“三生融合示范区”。
松茂御城二期,由松茂集团开发,总占地面积约4.53万㎡,总建筑面积约29.78万㎡,容积率4.67,绿化率40%,共分2期开发打造,后期将会有风雨连廊连接在一起,总规划2130户,停车位2321个,车位占比约1:1.09。
二期总建筑面积约20.74万㎡,计容建筑面积约14.24万㎡,共由9栋总高32F的住宅组成,另外还规划有1所9班制幼儿园,总规划1225户,全部是商品房,回迁房暂不确定,小区还规划了菜市场,公交首末站,社区服务中心等,停车位1548个。
楼盘基本数据
楼栋:南区3栋住宅+1栋公寓,北区9栋高层住宅(已封顶)
得房率(含赠):
梯户比 :A和B栋2梯6户(33层);C栋2梯5户(32层))
总户数:2126户
车位数:2222个
车位比:超1比1
学校:可申请“深中光明校区+深实验光明学校+光明区外国语学校”
地铁:地铁13号线月亮路站500米(2025年底通车)
商业:已有”15万m²大仟里+10万m²蓝鲸世界+6万m²万达广场”,隔壁4.6万m²华润商业在建中。
是否装修:有
批地时间:2014年11月
产权年限:70年
交付时间:现楼
占地面积:45352.06 ㎡(南+北两区)
建筑面积:309784.95 ㎡
容积率 :4.85
绿化率 :约40%
开发商 :深圳市松茂房地产集团有限公司
物业公司:海天泰物业、3.8元/㎡/月
学校配套:根据2024年光明区教育局最新的学区划分,小学学区划分在教科院实验小学,秋硕小学,龙豪小学,光明实验学校,初中学区划分在深圳中学光明科学城学校二初中部,凤凰城实验学校初中部。
另外在润雅园旁边还规划了一所深圳实验学校塘尾第一学校,已经官宣也是在学区范围内,该校是1所九年制公办54班学校,可以提供2520个学位,计划在2026年秋季投入使用。
交通配套:松茂御城紧挨着松白路主干道,周边还有东明大道,光明大道,沈海高速,深圳外环高速,南光高速,龙大高速等交通要道。
目前距离在建的13号地铁线“月亮路站”约400米,3站到光明城站,5站到石岩上屋站,计划在2025年通车运营。
松茂御城东侧为13号线公明车辆段片区综合开发项目。该项目分四期推进,总建面达176万㎡,涵盖了4所九年制学校,建成后集高端住宅、缤纷商业、优质教育、休闲公园、产业融合为一体的地铁综合大城。
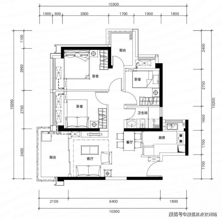
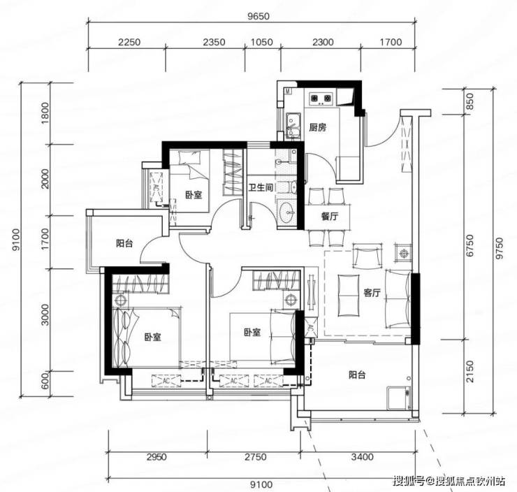
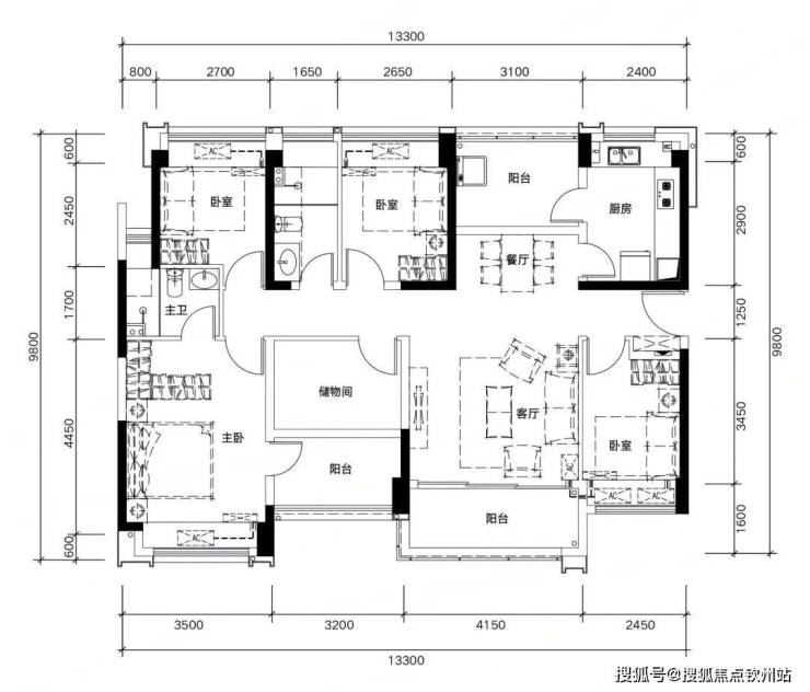
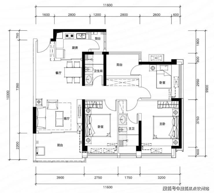
✨🔥 户型鉴赏 🔥✨
✅ H01户型:约81㎡ 三房两厅两卫:
✅ H02/03户型:约81㎡ 三房两厅两卫:
✅ G03户型:约81㎡ 三房两厅两卫:
✅ G05户型:约82㎡ 三房两厅两卫:
✅ B01户型:约89㎡ 四房两厅两卫:
✅ B02户型:约89㎡ 四房两厅两卫:
✅ B03/05户型:约89㎡ 四房两厅两卫:
✅ B06 户型:约109㎡ 阔绰四房两厅两卫:
✅ G02户型:约109㎡ 四房两厅两卫:
✅ G01户型:约135㎡ 五房两厅两卫:
✅ E03户型:约135㎡ 稀缺五房两厅两卫:
深圳光明区凤凰片区-松茂御城二期 售楼处电话☎:400 006 8087【售楼处已认证】✅
深圳光明区凤凰片区-松茂御城二期 售楼中心电话☎:400 006 8087【售楼中心已认证】✅
深圳光明区凤凰片区-松茂御城二期 营销中心电话☎:400 006 8087【营销中心已认证】✅
深圳光明区凤凰片区-松茂御城二期 销售中心电话☎:400 006 8087【销售中心已认证】✅
免责声明:部分信息来源于网络,如果侵权,请联系及时删除!
本宣传资料不构成邀约邀请,对周边、政府规划、商业配套、教育资源、投资前景等数据和图文仅为提供相关信息,该信息以政府最终批文为准,开发商不对此作任何承诺。买卖双方的权利义务以双方签订的买卖合同约定及附件、实际交付为准,本公司保留对宣传资料修改的权利,敬请留意最新资料。
声明:本文由入驻焦点开放平台的作者撰写,除焦点官方账号外,观点仅代表作者本人,不代表焦点立场。
