深圳(南山)翰熙典居售楼处电话→翰熙典居百度Ai热搜>翰熙典居营销中心24小时电话>2025最新房价>楼盘百科详情>售楼处最新发布2025/11/15
扫描到手机,新闻随时看
扫一扫,用手机看文章
更加方便分享给朋友
空窗三年的科技园终于来盘了,南山粤海唯一在售新房【翰熙典居】,位于南山科技园+深圳大学旁的地铁口黄金地段,极为稀缺的位置,原桂庙新村旧改楼盘。面积段在105-120-140㎡的3-4房。
分户型开盘折后价
105户型折后总价约868万起
120户型折后总价约1008万起
140户型折后总价约1414万起
有着“中国硅谷”之称的深圳最牛街道——粤海街道,唯一在售新盘【翰熙典居】在2025年5月下旬取证入市,首推247套住宅,建面约105-140㎡3-4房,已按新规调整户型。成交均价在9万/平左右。
翰熙典居,位于深圳南山粤海街道腾讯总部旁,前身为“桂庙新村旧改项目”。
项目总建面约37万㎡,建成后将成为集住宅、商业、办公及酒店为一体的大型综合项目,能为片区供应含保障房在内近25万㎡住宅。
项目总规划1038套,其中保障房612套、回迁179套、可售商品房247套。规划停车位834个,车位比为1:0.83,车位略紧张。
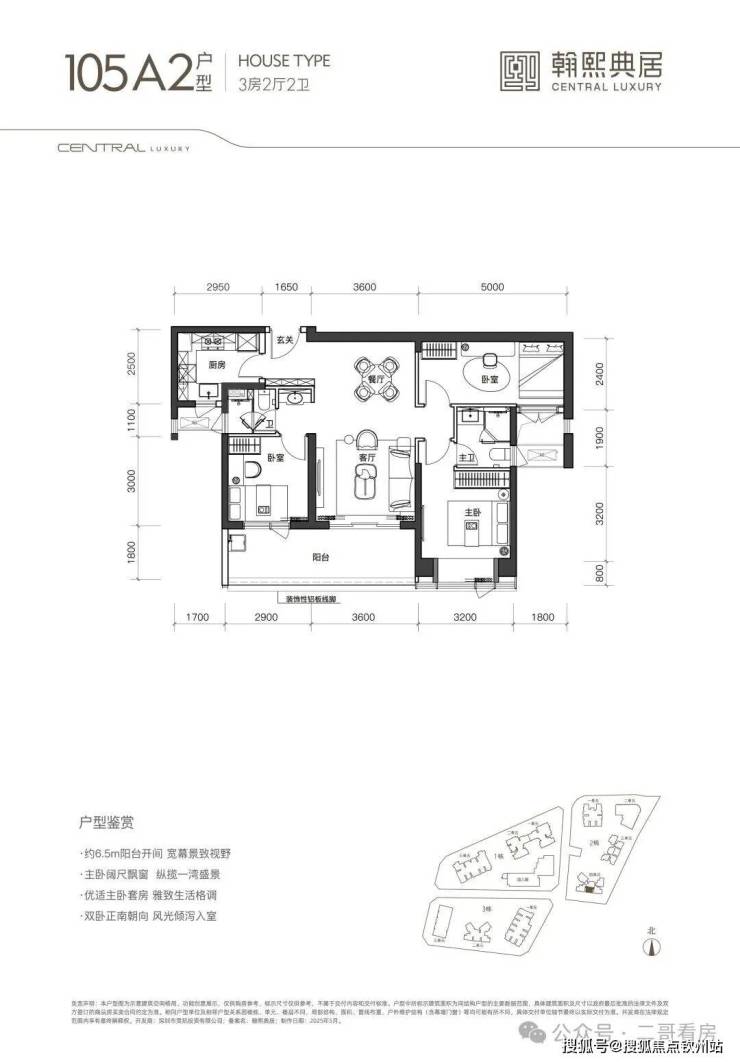
据最新消息,本期推售面积为105-120-140的3-4房,将按照新规进行户型设计,预计使用率可达90%。
质匠高定丨集聚一流大师 匠造雅质奢宅 翰熙典居联袂华汇设计、迈丘设计、CCD(香港郑中设计事务所)等国际国内大师,匠制三重归家礼序,打造美学园林及品质公区,成就卓尔不凡的超感生活。
流线之幕 | 幕墙集成系统静雅奢华风格延续奢宅风貌,历久弥新的品质凝练

盛世翰韵 | 新东方都市风格园林 度假式无边际泳池,樱花大道、无界人文街区

逐光之旅 | 大师高定艺术公区以超脱酒店的艺术手法,构筑雅静空间,大堂墙面高端用材,精心雕琢尊崇归家仪式感

奢阔空间丨中心极境 礼献粤海 翰熙典居,粤海十年之后再上新,全新奢居综合体礼献峯层。可售主力户型新规后建面约105-140㎡奢雅空间,全明方正户型将空间奢阔感与生活舒适度完美契合。明星户型超6米阳台开间,全维度巨幕景观视野,尽揽湾心万千风景。


枢纽中心丨双地铁上盖TOD无缝接驳地铁9号线、15号线(在建中)交汇深大南站。核心区罕有TOD项目。四横:滨海大道、深南大道、北环大道、学府路 三纵:南海大道、后海大道、白石路 (以上所有交通规划最终通车时间以政府最新工程进度落实为准)
5重生态丨山/湖/园/海/湾 聚揽城市一湾风华 1山1湖:深圳大学杜鹃山、文山湖 4公园:荔香公园、文心公园、科技公园、深圳人才公园 1深大后花园1海湾:约15公里深圳湾滨海长廊 (项目规划连廊直通深大,中国十大最美校园之一。该天桥为方便深大师生进出而设置,后期具体人员进出管理以深圳大学有关规定为准)

百万商业丨湾区繁华潮向 臻藏生活万象 咫尺海岸城商圈,近距离可达深圳湾万象城、万象天地、鹏润达广场、后海汇、来福士广场
9大文体丨城市峯层配套 擘画都心生活闲情逸趣保利剧院、南山书城、南头古城、南山图书馆、南山文体中心、南山博物馆、深圳湾体育中心、深圳湾文化广场(在建中)、粤海文体中心(在建中)
优教护航丨全龄教育环伺 赋写下一代美好未来 幼儿园:项目自带1所12班制幼儿园小学:西侧规划有1所30班小学(地块红线外)、南二外学府一小 中学:南二外学府中学、深圳南山中加学校大学:深圳大学,全国十大最美校园(周边教育设施如有变动,以南山区教育局最新颁布政策为准)
声明:本文由入驻焦点开放平台的作者撰写,除焦点官方账号外,观点仅代表作者本人,不代表焦点立场。
