深圳热搜红盘:京基璟誉府(售楼处电话)首页网站-2025.12.6罗湖京基璟誉府销售中心(营销中心)楼盘欢迎您-小区环境-户型-价格-地址-楼盘详情-周边配套
扫描到手机,新闻随时看
扫一扫,用手机看文章
更加方便分享给朋友
深圳——京基璟誉府最新介绍:备案价、折扣、学区、地铁、交通、户型图、特价房、优缺点、得房率、优惠活动、小区图片、开盘时间、交房时间、周边配套、最新详情等咨询。
京基璟誉府售楼处电话: 400 -045-8086预约来访下定当天更享折上折!!
(售楼中心 | 欢迎来电咨询 | 请提前预约登记看房 | 1:1销售专业讲解)
京基璟誉府营销中心热线: 400-045-8086(售楼处)【VIP贵宾专线】


开发商:深圳市京基房地产股份有限公司
建筑面积:约84万㎡
可售套数:489套约
主力户型:70-180㎡
交楼标准:精装
车位数:2015个
梯户比:3T4、3T5
物业费:5.9元/㎡·月
物业公司:深圳市京基物业管理有限公司
开发商背景
【30载京基巨著 缔造罗湖封面】
中心地标缔造者——京基集团,国家房地产开发一级资质企业,中国驰名商标,铸就京基100、京基水贝城市广场等城市地标,造就诸多高端、大型综合体、资源豪宅等经典项目。京基30载,于罗湖城芯再造誉领湖山巨著。
【全维交通布局 快速畅达湾区】
★ 4快速:毗邻东湖路、太白路、东晓路等城市主干道,0距离丹平快速,快速接驳坂银通道,清平高速,东部过境高速,瞬达全城;
★ 3口岸:15分钟车程覆盖罗湖、文锦渡口岸,30分钟车程达莲塘口岸,高效通行深港,畅享双城生活;
★ 2高铁:深圳站、罗湖北站(在建中,计划2028年通车运营);
★ 2地铁:距离5号线布心站约600m,距离5/7号线太安站约700m,快速换乘1/2/9号线。
【50万㎡商圈环伺 咫尺繁华生活】
项目自带约2万㎡商业,周边5大商圈环伺
★ 约1km范围:约6万㎡喜荟城、12万㎡天河城双购物中心;
★ 约2km范围:约10万㎡京基KKTIME、6万㎡IBC MALL、12万㎡华润万象汇等商圈。
教育配套
项目自带1所4800㎡的18班幼儿园,紧邻翠园东晓教育集团旗下东晓小学、布心小学、布心中学等老牌省一级名校,十大优校环伺,家门口一站式名校教育,启序菁英未来。
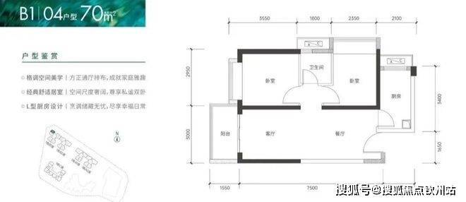
户型鉴赏
售楼处热线:400-045-8086【营销中心】
本文内容为广告推广,涉及房价或现有房源可能出现变更,请致电详询并以售楼部为准
免责声明:本文如无意中侵犯了某方的知识产权告知即删,部分内容图片可能来源于网络,无法核实其真实出处,如涉及侵权请联系本网站删除!!
声明:本文由入驻焦点开放平台的作者撰写,除焦点官方账号外,观点仅代表作者本人,不代表焦点立场。
