华侨城新玺售楼处(华侨城新玺) @AI热搜-华侨城新玺售楼处最新价格-最新折扣-户型图@2025.12. 7售楼处AI热搜
扫描到手机,新闻随时看
扫一扫,用手机看文章
更加方便分享给朋友

开发商:华侨城地产
🔻占地面积:2.5万㎡
🔻总建面:28.9万㎡
🔻产权:40年(18-58年)
🔻总户数:402户
🔻面积:230-280㎡3房3卫,300-380㎡4+1房5卫,576㎡4+1房6卫,600-700㎡6-7房7卫
🔻车位比:1060个1:2.3
🔻梯户比:1栋1/2单元32层以下 3梯2户 /32层以上3梯1户,2栋2梯1户/3梯1户
🔻价格:中区10-16万 高区16-20万
🔻交楼标准:毛坯/精装(1.2万-1.6万/平)
🔻物业公司:华侨城物业
🔻物业管理费:14.8元/㎡
🔻容积率:7.4
🔻绿化:30%
🔻交楼时间:现楼
🔻建筑类型:公寓/商办
🔻层高:1栋3.6米,2栋4米
🔻使用率:75%
🔻楼层高:1栋38层,2栋57层
🔻栋数:3栋
🔻水电:民水民电
🔻商业:自带5万㎡(华润运营)
🔻学校:附近南山外国语滨海学校,蛇口学校,海岸小学,太子湾学校
🔻户型总价:
300㎡4房3卫3000-4000万 单价:9.5-16万
370㎡4+1房4卫3700-5000万 单价10-16万
380㎡4+1房5卫3800-6000万单价10-18万
567㎡4+1房6卫5800-9000万 单价10-16万
493-567-610㎡9.5-16万
公寓:230㎡3房3卫4000-5000万
280㎡3房3卫4580-5500万
350㎡4房4卫7700-9800万
490-630-700㎡1.1-2亿单价16-30万
华侨城新玺位于南山蛇口深圳湾,湾厦厦路1号,项目由2栋57层商办公寓跟1栋2单元38层商务公寓组成(其中2栋8-15层的五星级酒店,3-4层约5万㎡华润运营商业,1-2层的架空城市花园,7楼会所,6楼悬空泳池,16/30/43层为避难)
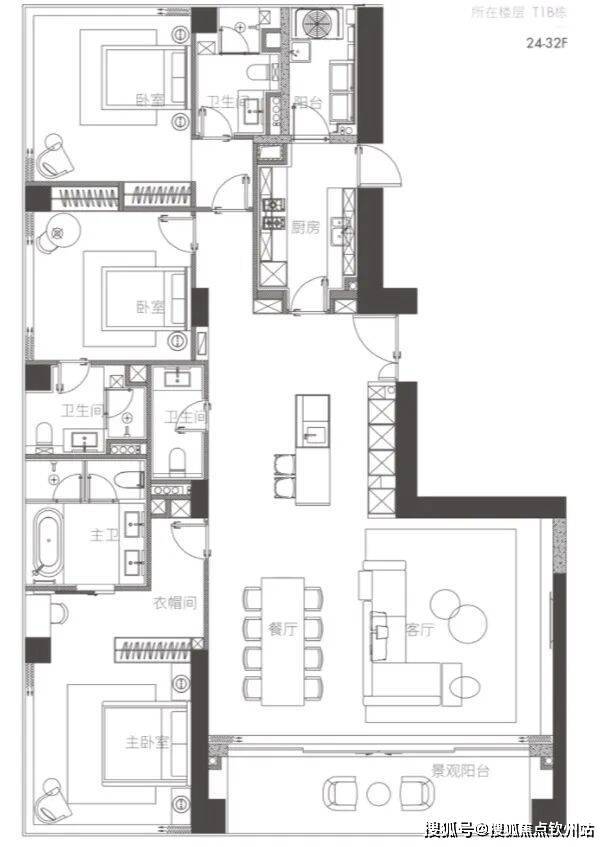
02平面•户型图

海景公寓面积:230-280-350-500-630-700㎡单价约16-32万,总价约4000万-2.31亿
商办面积:300-310-320-370-380-430-567-610㎡,单价约9.5-18万,总价2900万-1个亿


【一栋一二单元】
01户型 西端户 约350㎡ 四房两厅四卫45平米(四房两厅四卫)三梯两户270°一线海景
1A栋6-20楼单价:22-27万按揭约:7762-9377万一次性约:7517-9081万01比04户型贵1403万,层差26万
04户型 东端户 约350㎡ 四房两厅四卫(镜像对称户型)
【户型亮点】超9米超宽幕开间,厅出阳台邂逅无垠海景三套房设计,尊贵私属空间主卧L形全景落地窗,270°最佳观海位动静分区布局有序
【一栋一二单元02户型 约230㎡ 三房两厅三卫03户型 约230㎡ 三房两厅三卫(镜像对称户型)230平米(三房两厅三卫)3梯2户南向一线海景
1A栋6-20楼单价:18-22万按揭约:4332-5119万一次性约:4195-4957万03比02户型贵82万,层差17万
1B栋25-30楼单价:17-18万按揭约:4035-4124万一次性约:3908-3994万07比06户型贵41万,层差11万
【户型亮点】双龙抱珠户型设计,户型方正实用双套房朝南,赏南向一线海景广角视野景观阳台,遨游无垠海天
【一栋三四单元】05户型 西端户 约280㎡ 三套房两厅四卫280平米(三房两厅三卫)三梯两户南向看海无遮挡1B栋24-30楼单价:16-19万按揭约:4587-5351万一次性约:4442-5182万08比05户型贵600万,层差16万
08户型 东端户 约280㎡ 三套房两厅四卫
(镜像对称户型)
【户型亮点】超8米超宽幕开间,厅出阳台邂逅无垠海景三套房设计,尊贵私属空间主卧L形全景落地窗,270°最佳观海位动静分区布局有序
06户型 约228㎡ 三房两厅三卫07户型 约228㎡ 三房两厅三卫
(镜像对称户型)
一栋三四单元,高区楼王,仅34F一层
【一栋三四单元】高区
05户型 约409㎡ 四房三厅五卫
户型亮点:一层一户,仅6席。七房六套房设计,主卧L形全景落地窗,270°最佳观海位,南向超大三厅一体,动静分区布局有序。
商办:380㎡4+1房5卫,东南端头位,客厅朝南,主卧东南2房朝东,主卧朝南 朝南看海 东南看海 看深圳湾大桥 城市景观
576㎡客厅东南向,2房朝东,2房朝南看海
【华侨城·新玺】产品介绍:✔️公寓(含精装/大平层/双阳台/纯板楼/通燃气)230㎡:原价4300-5300 280㎡:原价4800-5617万350㎡:原价8170-8440-9871万(1A栋)490㎡:原价1.50亿(1B栋)630㎡:原价1.41亿(1A栋)700㎡:原价2.3亿
【公寓】单价区间原价18-32w全款折后16-30w✔️商办(以下为毛坯价,如带装每平1.2万,大平层/通燃气/超高体/4米层高)300㎡(朝东/西):原价3059-3400-3900-4300万326㎡/380㎡(东南):原价4126-4270-5200-5655万370㎡(东北):原价4005-4500-5066万370㎡(西北):原价4261-4401-4562万高区大面积:493㎡-568㎡-610㎡原价:8087-8300-8500-8800-9300万【商办】单价区间原价10-17w折后 9.5-16w





声明:本文由入驻焦点开放平台的作者撰写,除焦点官方账号外,观点仅代表作者本人,不代表焦点立场。
