深圳焦点热搜:深铁前海时代尊府售楼处电话-深铁前海时代尊府售楼处地址--深铁前海时代尊府热线@售楼处2025.9.25
扫描到手机,新闻随时看
扫一扫,用手机看文章
更加方便分享给朋友
关于前海的网红盘——【前海时代三期】,好消息,项目最快预计本月23日取证,月底开盘,加推53栋三单元,共172套,其中159套约89平三房两卫159套,约190平四房三卫13套,主力是89平三房两卫户型。

这次3单元是53栋几个单元中位置最好的,位于头排,景观视野基本没有遮挡,高层还能看到桂湾河海景。
【前海时代三期尊府】已正式开放实体样板!项目将于三月份底首推58栋的245和285㎡大平层豪宅,3梯2户,仅77套房源,预计参考之前推售的大户型,预计大约11万左右均价!目前全套户型已经出炉,小户型产品五月份推售53栋-3单元89-190㎡!
项目区位
「前海时代三期尊府」位于前海桂湾片区南侧,临近滨海大道和桂湾河,在整个前海自贸区内算是住宅的C位,正南侧水廊道公园,东南望南山西南看城市海景。
整个「前海时代」大项目规划总建面约130万㎡包括了商业、写字楼、公寓、酒店、住宅,可以算是一个超大型的综合体。其中商业将会交由华润运营,连接万象前海商业。

海三湾中,桂湾是配套相对最为成熟的板块,目前桂湾片区目前建设已经近8成,前海已交付的23栋写字楼中,约有90%位于桂湾。深圳共规划7个金融聚集区,桂湾金融企业占比已超70%。
截至24年12月,前海深港国际金融城累计引进金融机构322家,其中港资外资占比约25%。涵盖了渣打、惠理等140家风投创投及国际资管等机构,管理基金规模达到1800亿元。
此外,前海国际人才港通过多元化的线上线下服务平台,已累计服务人才近60万人次,波士顿咨询、罗盛咨询等21家国际知名机构、猎头公司均已入驻。
此外,投资50.5亿的前海石公园、投资288亿的前海综合交通枢纽、以及华润万象前海、前海山姆、卓越intown,也都在桂湾。
项目介绍
「前海时代三期尊府」位于前海桂湾片区南侧,临近滨海大道和桂湾河,在整个前海自贸区内算是住宅的C位,正南侧水廊道公园,东南望南山西南看城市海景。 整个「前海时代」大项目规划总建面约130万㎡包括了商业、写字楼、公寓、酒店、住宅,可以算是一个超大型的综合体。其中商业将会交由华润运营,连接万象前海商业。
三期共分三个地块进行开发
7-2地块(尊府1)为55-60栋,约608套,面积段为约192-209-250-292㎡大平层。其中55、56、57、60栋270套于2023年12月开盘,备案均价9.9万/㎡,总价区间1606-2855万,当天售罄;
5-2地块(尊府2)为53栋三个单元,约516套,面积段为约89-190㎡的3-4房,其中53-1和53-2栋344套于2024年3月开盘,备案均价9.8万/㎡,总价区间751-2134万,如今仅剩少量房源。
5-1地块精品住宅为52-2栋,约256套,180套小户型,60套120㎡三房,16套大户型,全部未售。
计划3月加推的住宅位于7-2地块(尊府1)58栋77套245㎡四房三卫和约285㎡四房四卫大平层;
随后计划5月加推的住宅位于5-2地块(尊府2)53-3栋约172套89㎡三房二卫和190㎡四房三卫户型。
户型鉴赏

3月首推58栋户型
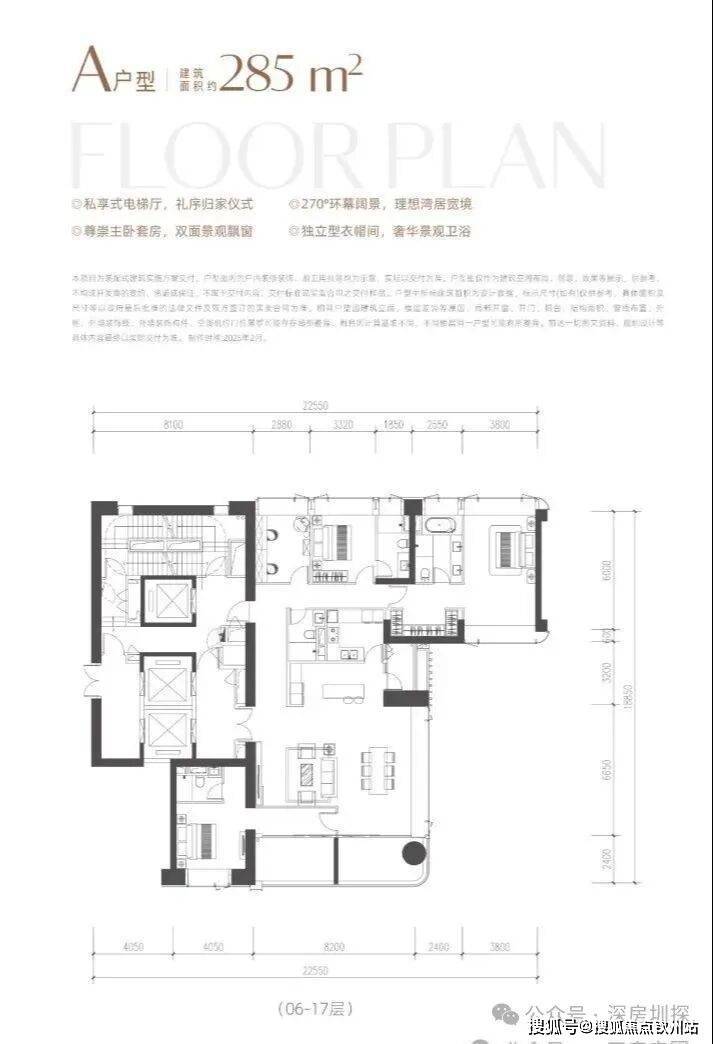
A户型约285㎡户型图
B户型约245㎡户型图
区位介绍
前海时代三期尊府片区位于深圳市前海桂湾区的南侧,临近滨海大道和桂湾河,地理位置优越,紧邻多个地铁线路,包括地铁1号线、5号线和11号线的鲤鱼门站,步行距离约720米。该区域是前海金融核心区,拥有成熟的商务氛围和完善的配套设施。
交通配套
公共交通方面,桂湾坐拥西部最大的地下交通枢纽前海湾站,目前项目已经大致上出地面,两年内完工。
轨道:项目距离地铁站为1号线鲤鱼门站约720米,距离5号线、9号线前湾站约900米,1/5/11号三条地铁线交汇。
另外还有穗深(广东-东莞-深圳)城际以及未来的深港西部快线在此设站,未来还会接通深珠城际,可以直接刷深圳通不用抢票。
路网交通:接通深圳目前各大重要主干道,项目紧邻月亮湾大道、滨海隧道(滨海大道地下道路一期工程)梦海大道连接前湾、妈湾、宝安中心,出行便利。
商业配套
项目自带8万平㎡商业,已确定引入华润运营,预计作为“万象前海二期”的目标去打造,能全面满足日常生活所需。 周边商业氛围浓厚,已开设的有万象前海、卓悦INTOWN、山姆旗舰店等品牌商业,而即将开业的有前海壹方汇和前海K11,后续紧跟的还有交通枢纽的约19万㎡大型商业区。当桂湾商业连成片的时候,其城市配套规模和人气流量会更火爆。
教育配套
教育方面,桂湾片区暂时没有特别出色的学校,前海时代对口学校为九年制南山实验集团前海港湾学校。
项目2公里内一所九年制学校正在建设中(未确定引进的学校)。 此外,前海还有3所知名国际学校:荟同学校、英国国王学校深圳分校、深圳哈罗公学及深圳礼德国际学院。 桂湾规划片区内,规划主要的教育设施包括国际学校一所、九年一贯制学校三所、小学一所、幼儿园七所。
周边配套
桂湾片区内有海边演艺公园(由华侨城操刀)、桂湾公园、双界河公园、月亮湾水廊道。目前桂湾公园已建成,海边公园即将二次升级,双界河和月亮湾水廊道暂时还是毛坯状态。
项目西侧预留有一块公园绿地,另外1.5公里范围内分布有双界河水廊公园、荷兰花卉小镇、前海演绎公园、中山公园等,日常休闲娱乐就近即可满足。
医疗配套方面是桂湾片区唯一的短板,不仅是现在缺,法定图则中也没有综合医院规划,这意味着,将来在桂湾如需就医只能依赖周边片区医疗配套辐射。不过,人家地理位置比较好,毗邻宝中片区。
项目西侧预留有一块公园绿地,另外1.5公里范围内分布有双界河水廊公园、荷兰花卉小镇、前海演绎公园、中山公园等,日常休闲娱乐就近即可满足。
声明:本文由入驻焦点开放平台的作者撰写,除焦点官方账号外,观点仅代表作者本人,不代表焦点立场。
