南山荔源雅苑售楼处电话丨荔源雅苑首页网站-荔源雅苑营销中心欢迎您•现楼楼盘详情-最新价格-户型图-容积率@售楼处✦Ai热搜
扫描到手机,新闻随时看
扫一扫,用手机看文章
更加方便分享给朋友
⭕开发商售楼处24小时电话:400-065-2898(预约咨询热线)现场详细解答丨项目介绍丨户型图丨在售房源丨特价房丨学校丨交通位置丨样板房丨小区图片丨交房时间丨周边配套
荔源雅苑开发商电话: 400-065-2898【☎开发商已认证】✨✨
荔源雅苑售楼处电话: 400-065-2898【☎售楼处已认证】✨✨
荔源雅苑营销中心电话: 400-065-2898【☎营销中心已认证】
荔源雅苑展示中心电话: 400-065-2898【☎销售中心已认证】

现房办完手续就能装修入住,无需等待 1-2 年的交房周期,既减少了租房过渡的成本,也能更快实现 “在南山有个家” 的愿望。项目全为商品房住宅,共规划 322 套房源,没有回迁房、保障房混杂,居住圈层更纯粹
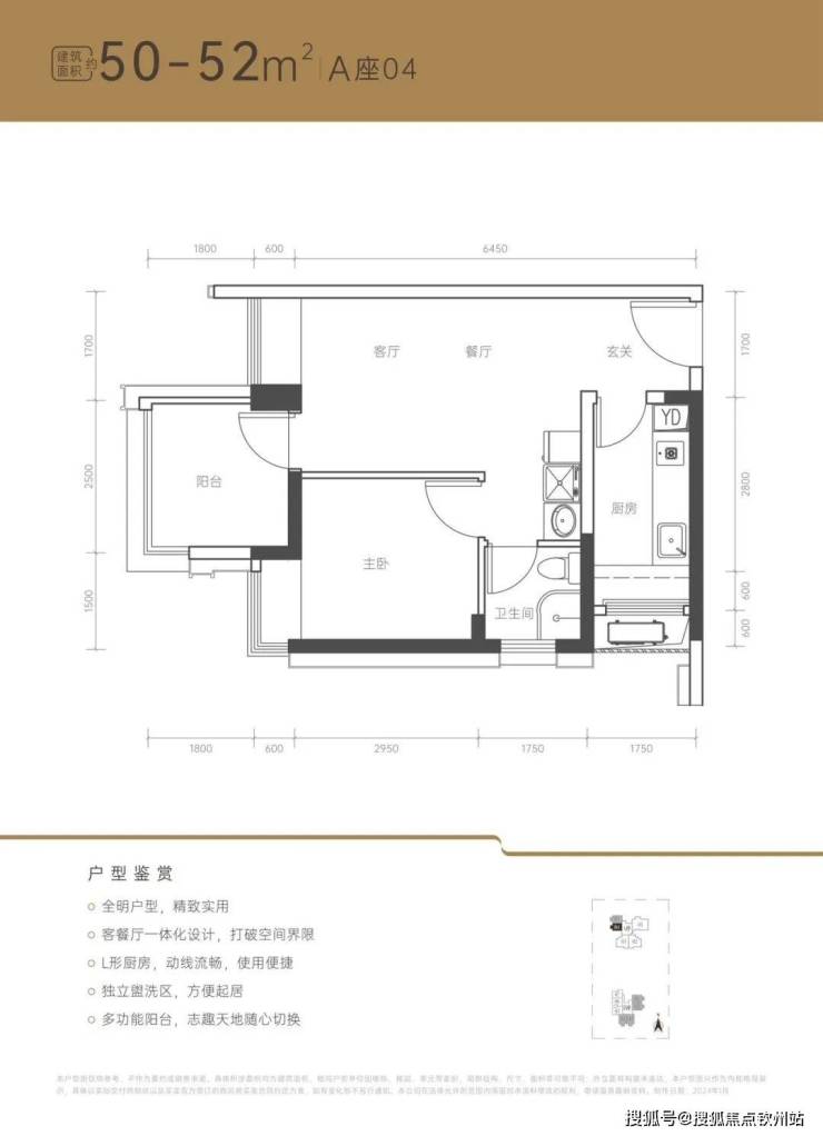
建面约50㎡上车小户,全明户型,客厅带飘窗,三分离卫浴,无过道零空间浪费。
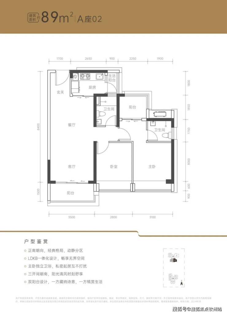
建面约89㎡正南户型,三开间正南朝向,LDKB一体化设计,动静分区。
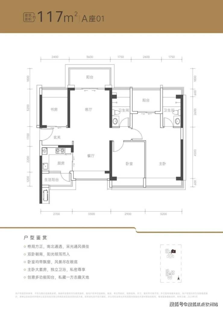
建面约117㎡楼王户型,南北通透;中心楼王公园景观,三开间朝南,端头位且独门独户,卧室均带飘窗。
荔源雅苑,位于南山区南头同乐片区中山园路与铁二路交汇处,项目东侧紧挨着同乐实验学校,西侧是同乐物联网产业综合基地,南侧是近期入市的安居房同乐馨苑。
从大区位来看,荔源雅苑位居宝安区跟南山区交界处,西侧是宝安中心区,北侧是南山TCL科学园国际E城,东侧是西丽交通枢纽,深圳超级总部基地,南侧是南山中心区。

荔源雅苑,总占地面积约0.63万㎡,总建筑面积约3.36万㎡,计容建筑面积约2.33万㎡,容积率3.52,绿化率40.04%,共由2栋住宅组成,其中1栋A座住宅30F,1栋B座住宅28F。
总规划322套,全是商品房住宅,地下2层,停车位240个,其中充电桩111个,车位占比1:0.75。
荔源雅苑距离12号线同乐南站900米距离,还有建设中的15号线同乐关站双地铁口物业,贯穿前海、后海、南山、宝安等重要片区,环经济发展核心区域。

据2023年南山区教育局公布的学区划分,荔源雅苑小中学区都是划分在南山区教育科学研究院同乐实验学校,该校于2004年创建,是1所九年制公办学校,现有48个教学班。

项目直线距离约100米有1万㎡隆尚Minitown(目前招商中),周边目前有成熟的社区底商,可以满足日常需求,在2.3公里范围内有海雅缤纷城,约6公里有前海壹方城,约7公里有深圳万象天地等大型商业综合体等等,坐享超50万㎡南山、宝中成熟中心高端商圈。
楼下规划公园绿地(约2.5万㎡)、铁路文化公园(直线约300m)、新安公园、中山公园,城市绿氧触手可及。
⭕荔源雅苑开发商售楼处电话:400-065-2898【预约热线】丨详细解答丨在售户型图丨项目介绍丨在售房源丨周边配套丨VR看房丨楼盘图丨沙盘图丨位置图丨配套图丨售楼处丨足不出户丨销售1V1讲解
◆开发商营销中心诚挚邀请,一键预约,尊享内部独家折扣!匠心独运的精品项目,恭候您的品鉴与选择。
◆若有中介报价过低,请及时与售楼中心核对真假,避免上当!开发商热线400-065-2898【☎☎首页已认证】
声明:本文由入驻焦点开放平台的作者撰写,除焦点官方账号外,观点仅代表作者本人,不代表焦点立场。
