汇城茗苑 (售楼处电话~) -汇城茗苑营销中心(售楼处汇城茗苑户型图--容积率--楼盘详情-配套-交房时间@2025年9月最新售楼处电话
扫描到手机,新闻随时看
扫一扫,用手机看文章
更加方便分享给朋友
汇城茗院位于南山大学城核心区域,7号线西丽湖站地铁口附近,交通便利。项目占地约2.69万㎡,建筑面积约5.5万㎡,容积率2.055,提供380户高品质住宅。主力户型为约116㎡的三梯四户设计,现楼毛坯交付。项目周边自然景观丰富,人文氛围浓厚,是深圳发展新中轴的重要组成部分。

二、周边配套
交通配套:汇城茗院交通便捷,紧邻地铁7号线西丽湖站B出口,距离约300米,可实现与地铁5号线、2号线的便捷换乘,未来还将接通13号线南北黄金快线。自驾可通过丽山路直通留仙大道、沙河西路等主干道,快速到达深圳各区。此外,项目周边还有西丽高铁站、机场等重要交通枢纽,出行无忧。

教育配套:项目周边教育资源丰富,包括桑泰丹华幼儿园、德意名居幼儿园、中科硅谷幼儿园及国际预科学院等优质学前教育机构。中小学方面,项目划入南二外平山学校(54班九年一贯制)和丽湖实验学校学区,为业主子女提供一站式优质教育服务。

商业配套:虽然项目附近暂无大型商业综合体,但益田假日里商场和天虹商场距离项目仅约1公里,步行即可到达。此外,片区内还汇聚了超30万平商业集群,如宝能环球汇、云城万科里等,满足业主多样化的消费需求。

医疗配套:项目毗邻深圳大学总医院,该医院将是南山最大的三甲医院之一。此外,南方科技大学附属医院孙逸仙心血管医院也近在咫尺,为业主提供国际化一体化的医疗服务。
三、在售户型
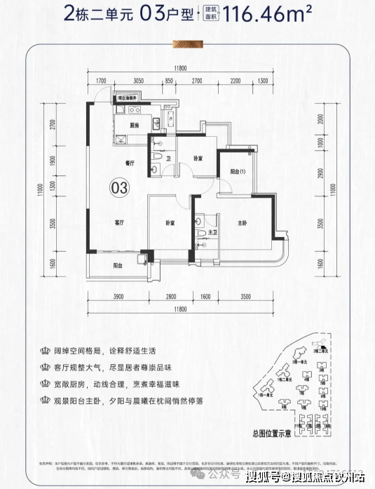
汇城茗院主力在售户型为约116㎡的三梯四户设计,空间布局合理,采光通风良好,满足现代家庭对舒适生活的追求。




四、项目优劣势分析
优势:
地理位置优越,紧邻地铁7号线西丽湖站,交通便利。
教育资源丰富,涵盖从幼儿园到中小学的一站式教育服务。
自然景观丰富,人文氛围浓厚,居住环境宜人。
商业配套逐步完善,满足业主多样化消费需求。
医疗配套齐全,提供国际化一体化的医疗服务。

劣势:
项目附近暂无大型商业综合体,需步行一段距离到达购物中心。
南二外平山学校为新办分校,教学水平有待验证。

五、总结
综上所述,汇城茗院以其优越的地理位置、丰富的教育资源、完善的医疗配套和宜人的居住环境,成为南山大学城区域的热门楼盘。虽然目前商业配套尚待完善,但随着周边区域的不断发展,未来潜力巨大。







❄免责声明:本文如无意中侵犯了某方的知识产权告知即删,部分内容图片可能来源于网络,无法核实其真实出处,如涉及侵权请联系本网站删除!!!
声明:本文由入驻焦点开放平台的作者撰写,除焦点官方账号外,观点仅代表作者本人,不代表焦点立场。
