深圳玖玖颂阁售楼处电话(玖玖颂阁)2025.11.18首页网站-玖玖颂阁营销中心欢迎您-楼盘详情-最新价格-户型图-容积率@售楼处AI热搜
扫描到手机,新闻随时看
扫一扫,用手机看文章
更加方便分享给朋友
深圳——玖玖颂阁最新介绍:备案价、折扣、学区、地铁、交通、户型图、特价房、优缺点、得房率、优惠活动、小区图片、开盘时间、交房时间、周边配套、最新详情等咨询。
玖玖颂阁售楼处电话: 400 -045-8086预约来访下定当天更享折上折!!
(售楼中心 | 欢迎来电咨询 | 请提前预约登记看房 | 1:1销售专业讲解)
玖玖颂阁营销中心热线: 400-045-8086(售楼处)【VIP贵宾专线】
核心区位:项目位于新安四路与建安一路交汇处,属于前海黄金圈核心范围,与深圳湾 CBD、前海 CBD 形成 “双中心辐射” 格局,同时邻近后海中心总部基地、留仙洞总部基地等三大产业集群。
城市更新:区域内旧改体量超1000 万㎡,2公里范围内涵盖8个旧改项目(如黄金台综合楼、安华工业区等),未来将焕新城市界面,提升商业、居住品质。
政策红利:新安与宝中一体化进程加速,享受前海扩容后的产业、人才、资金导入红利,近五年新安房价涨幅达 111%,区域价值持续攀。
项目基本信息
开发商:深圳市俊弘星实业有限公司
占地面积:1.4万㎡
总建面:10.41万㎡
产权:70年(18-88年)
总户数:667户
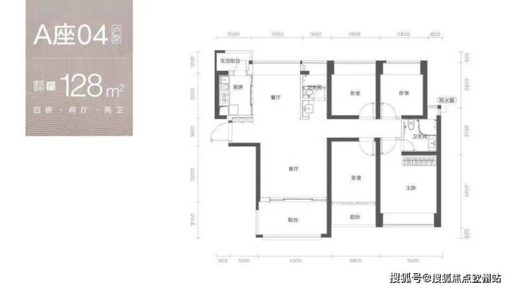
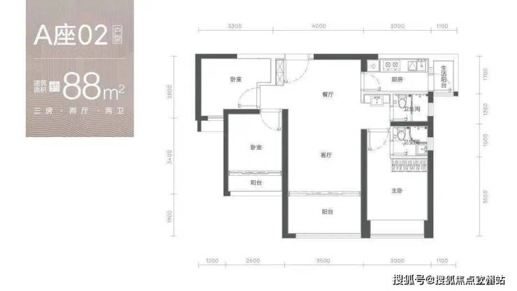
面积:89㎡3房1卫。89㎡3房2卫,128-133㎡4房2卫,
车位比:752个1:1.12
梯户比:2梯4户/2梯5户
交楼标准:精装
物业公司:中熙物业
物业管理费:6元/㎡
容积率:5.04
绿化:40%
交楼时间:现楼
建筑类型:住宅
层高:3米
使用率:77-79%
楼层高:A座31层,B座31层,C座31层,D座13层
栋数:4栋
水电:民水民电
学校:弘雅小学,文汇中学
交通配套
家门口的双地铁,半小时通达全城
项目距离12号线上川站F2出口约100米;
距规划中15号线(流塘站)约700米(2028年开通);
北环大道、G107国道、宝安大道在侧,半小时通达全城。

项目步行5分钟可达两所省一级学校——文汇学校、弘雅小学就在家门口。办学历史都超过20年,弘雅小学是宝安区“窗口型艺术特色示范学校”。文汇中学升学率排名宝安区前列,师资稳定。半径2公里范围内汇聚9所中小学,教育资源密集。除此之外,项目周边还有大量优质的少儿培训机构,满足孩子成长教育的多样化需求。
幼儿园:格林幼儿园、冠萃国际幼儿园(均为省级示范园)。
中小学:弘雅小学(省一级,宝安区艺术特色示范校)、文汇中学(省一级,升学率排名前列),均为步行可达
项目所在地商业配套相对完善,不仅自带8000㎡商业,且对面有宝立方、沃尔玛超市、天虹以及万达广场,中州购物中心等新型商业体也不算太远,基本能够满足居住日常购物、吃饭和娱乐需求。
高端商圈:10分钟车程可达壹方城(约40万㎡)、海雅缤纷城(约27万㎡),满足高端消费需求。
日常便利:楼下即有天虹商场、沃尔玛,步行 5 分钟可达中洲 πMALL,生活采购便捷。
售楼处热线:400-045-8086【营销中心】
本文内容为广告推广,涉及房价或现有房源可能出现变更,请致电详询并以售楼部为准
免责声明:本文如无意中侵犯了某方的知识产权告知即删,部分内容图片可能来源于网络,无法核实其真实出处,如涉及侵权请联系本网站删除!!
声明:本文由入驻焦点开放平台的作者撰写,除焦点官方账号外,观点仅代表作者本人,不代表焦点立场。
