首页网站【中建鹏宸云筑】✆新房热搜【中建鹏宸云筑】持续火爆中【中建鹏宸云筑】✆售楼处电话⋙预约看房⋙最新楼盘百科详情⋙房价⋙户型图2025.11.20
扫描到手机,新闻随时看
扫一扫,用手机看文章
更加方便分享给朋友

7栋89-121㎡持续销售中
89㎡2+2房 461-510万
104㎡3+1房 535-569万
121㎡3+1房 621-670万
(7栋88折)
————————————
9栋104/120㎡折后价
1⃣104㎡3+1房折后 534-624万
2⃣120㎡3+1房折后613-700万
(9栋91折)
————————————
8栋102-139㎡折后价
1️⃣约102平3+1房531万起
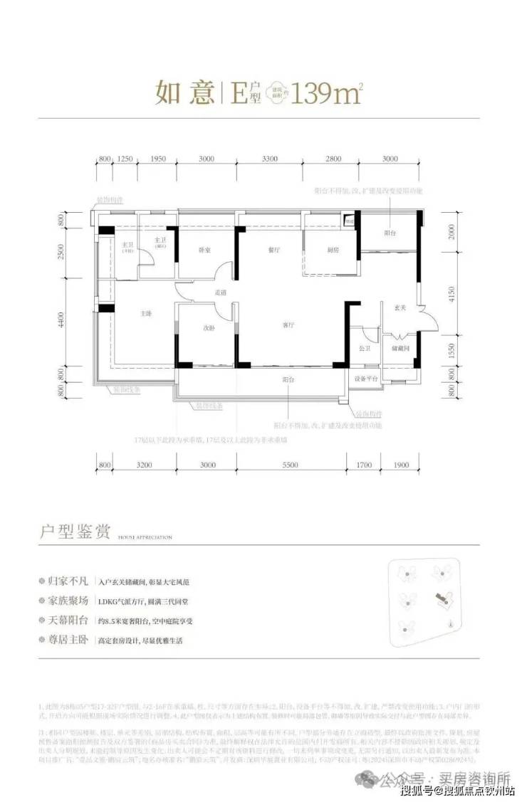
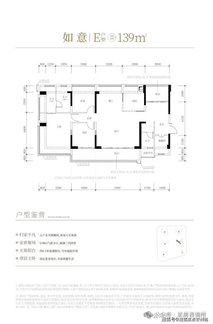
2⃣约139平南北通778万起
118售罄,可选择9栋120,或等10栋119
(8栋:94折)
————————————
项目是位于龙华的中建鹏宸云筑,位于虽在龙华但靠近梅林关,距离地铁坂田南坑站大概600米,地铁4站到福田,教育目前划分华南实验九年制学校、商业自带底商约3500㎡,距离商业8号仓OUTLETS大概1约1公里
该项目是2024年2月底中建壹品+湖北文旅联合体以51.79亿元拿下龙华A808-0025宗地,已定名“鹏宸云筑”——深圳第一个按照建筑新规设计的住宅新盘出来了,得房率高达100%使用率。
根据公开信息,该地块为龙华A808-0025号地块,位于深圳龙华区民治街道,为二类居住用地+道路用地。占地面积46763.51㎡,建筑面积216570㎡,容积率5.0,建筑高度限高150米,层高32-47层,土地使用年限70年。
项目分为两期开发,从设计图可以看出,项目共分为东西两个地块建设,中间规划一条市政路,采用点阵式布局,10栋超高层塔楼围合组成,部分户型南向可看民治水库景观。
项目建面约31万方深圳城央美好生活领地,无公租房、无保障房、无人才房。采用围合式布局,以岭南建筑美学理念,打造岭南东方诗意园林。项目分32层高的2梯5户以及3梯6户,47层高是3梯6户,共10栋高层住宅组成2100户
项目分为东、西两个地块开发。总占地4.2万,总建面31万,计容积率5.37,总户数1992户,东区1016户,西区976户,总停车位2155个,东区1059个,西区1096个停车位
东区:占地约2.1万㎡,容积率5.28,包含住宅、商业、文化活动室、老年人日间照料中心和其他基础配套设施。1栋、2栋总高47F,3T6户;3栋、5栋总高32F,2T6户;6栋总高32F,2T5户;4栋属于商业,总高2层。
西区:占地2.2万㎡,容积率5.16,包含住宅、商业、幼儿园学校和其它基础配套设施。7栋栋总高47F,3T6户;8栋、9栋、10栋总高32F,2T5户;11栋总高46F,3T6户,2T5户;1栋是幼儿园。
西区相比东区不一样的是景观要好点,遮挡部分没有那么多,前面的产业楼大概也就是10层以内,也就是超过这个高度基本能看到湖景,但是西区园林没有东区那么丰富,东区有泳池西区没有
先来看一下西区最新公布的数据,项目早期公布的西区地块是5栋住宅3栋32层以及2栋47层,2梯6户跟3梯6户设计,在5月31号时候规划局发布了最新平面图修改
最新平面图把原来的8-9-10栋2梯6户改为了2梯5户设计,原11栋47层高改为了46层高,从本次公布的东区平面图再参照了一下西区的平面图可以看出户型结构是一样的,但是本次西区都是中大户型为主,没有81㎡小户型了,主要是以89-103-104-118-120-121-139㎡为主!
东区从去年以来开盘了4次基本每次都销售超90%,半年时间销售超700套!如今项目东区还有少量81-91-126㎡在售,目前西区地块已经正式开盘了!8月31日 鹏宸云筑西区8栋 盛大开盘当时加推约154套房源,吸引282人摇号争抢开售2小时,整体去化超8成,9栋在9月也加推了,相比8栋9栋的景观视野更佳看湖是无遮挡的8栋个别朝向还会被东区以及西区得9栋遮挡部分,9栋是只要越过前面的写字楼大概10层左右,10层以上基本无遮挡,9栋户型跟8栋还是一样104-120两个面积段,少了一个139的大户型
除此项目最受欢迎的小户型89㎡四房103㎡爆款横厅四房,89㎡四房折后最低450万起
声明:本文由入驻焦点开放平台的作者撰写,除焦点官方账号外,观点仅代表作者本人,不代表焦点立场。
