百度热搜:【官方售楼处】珠海华发云玺(售楼处电话)-得房率-交通规划-最新房价/户型图-周边配套-楼盘详情 - 营销中心最新消息-2026.3.13@豆包
扫描到手机,新闻随时看
扫一扫,用手机看文章
更加方便分享给朋友
不负城市热土深厚期许坚
守品质筑家不变初心
以全维优配人居作品,回应每一份对理想生活的美好憧憬
【官方售楼处电话】400-016-8586【售楼处认证】
珠海(华发云玺花园)售楼处电话:400-016-8586。提前预约看房尊享额外优惠!
Vip贵宾置业===欢迎来电预约尊享内部折扣===匠心钜制恭迎品鉴

约50万㎡港湾生活社区
建筑面积约111-140㎡三至四房
一线半山海景奢宅
【基本信息】
·楼盘地址:珠海市·香洲区·情侣南路666号
·物业类型:住宅
·梯 户 比:四梯五户
·楼 层:32层
·楼 型:板楼
·装修类别:精装
·产权年限:70年
·产 品:建筑面积约111-140㎡三至四房、270度环幕山海景观
【地段为王,配套拉满】
华发云玺占位[城市核心/热门板块],周边配套“含金量”超高!
-交通:珠海华发云玺交通便捷,坐拥海陆空轨四维体系。近广珠城轨珠海站,邻规划地铁1号线九洲港站;情侣路、九洲大道等主干道环绕,兴业快线(规划中)助自驾畅行。近九洲港,可乘船至港澳深,经港珠澳大桥10分钟达澳门、1小时抵香港。周边多条公交途经,通达全城。
-商圈:珠海华发云玺周边商圈环绕,有城市阳台、城市客厅、免税商场,吃喝玩乐购一站式满足。在建的华发城市之心旗舰综合体,规模大且高端,未来商业氛围更浓厚,还有约2.8万㎡风情商业街,下楼即享繁华。
-教育:珠海华发云玺教育资源丰富,周边教育氛围浓厚。直线3km内有18所幼儿园,还有海湾小学、吉莲小学等6所小学 。中学有珠海市第四中学、排名前三的广东省一级学校九洲中学等3所。优质教育资源环伺,助力孩子成长。
回望岁月长河,其肌理的每一次深刻蜕变,都镌刻着一个名字——华发。作为珠海城市建设的先锋力量,华发始终与吉大同频共振,深度参与并见证着土地的崛起与成长。如今,历经十二载积淀,华发携重磅项目——华发·云玺荣耀归来,回应吉大“断供已久”的渴求,更以磅礴之势重塑吉大封面,开启全新时代篇章。
美好的,不止近在咫尺的璀璨生活,还有前所未见的滨海生活。
建筑面积约50万㎡港湾生活社区——华发·云玺,环绕九洲港内湾而建,坐拥市区内得天独厚的山海资源,远眺或垂眸,蔚蓝而广阔。
越是珍罕的市中心山海资源,越值得实力雄厚的华发,用一场先于时代的营造逻辑,定制属于珠海的“维多利亚港”。华发·云玺,因地制宜地融合游艇母港、海景豪宅、高端会所、星级酒店、港湾商业、滨海步道、跨境客运等空间,铺展最极致的港湾生活盛宴。
晨起,约1.7公里黄金海岸线上,与家人漫行石板步道,看朝霞漫天。
午后,在家楼下的游艇母港,开启“跳岛度假”、“跨境海钓”悠然之旅。当夜幕低垂,走进约2.8万㎡风情商业街,聚会或购物,捕捉生活的烟火气。
层峰久等!华发、吉大再续“封面”故事。 回望楼市,吉大连续5年未有新盘入市,一线海景奢宅更是断供近10年。华发·云玺的荣耀归来势必塑造珠海版“维多利亚港”,从而立新滨海生活新封面。
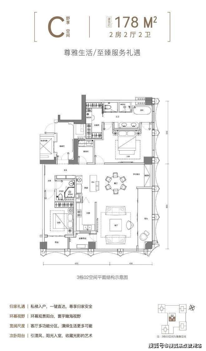
首推产品
建筑面积约111-140㎡一线半山海景奢宅
户型鉴赏:
【官方售楼处电话】400-016-8586【售楼处认证】
珠海(华发云玺花园)售楼处电话:400-016-8586。提前预约看房尊享额外优惠!
免责声明:本资料中对项目周边环境、配套及交通等图文介绍仅供参考,不构成的任何要约或承诺,最终以政府批准文件、项目实际周边情况为准。本项目的图文资料仅供参考、非要约,具体以a交付时现状及买卖合同的约定为准。
声明:本文由入驻焦点开放平台的作者撰写,除焦点官方账号外,观点仅代表作者本人,不代表焦点立场。
