加福华尔登府邸(售楼处)首页网站-加福华尔登府邸售楼处-加福华尔登府邸营销中心欢迎您-周边配套-楼盘详情-最新价格-户型图-容积率@售楼处2025-08-30
扫描到手机,新闻随时看
扫一扫,用手机看文章
更加方便分享给朋友
深圳福田CBD-加福华尔登府邸 售楼处电话☎:400 006 8087【售楼处已认证】✅
深圳福田CBD-加福华尔登府邸 售楼中心电话☎:400 006 8087【售楼中心已认证】✅
深圳福田CBD-加福华尔登府邸 营销中心电话☎:400 006 8087【营销中心已认证】✅
深圳福田CBD-加福华尔登府邸 销售中心电话☎:400 006 8087【销售中心已认证】✅
本项目暂不接受临时到访,过来参观样板房请记得提前来电预约! 为您安排楼盘现场销售全程接待并讲解,给您更贴心的看房体验!

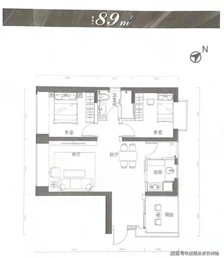
加福华尔登府邸,户型和价格如下:
(1)85㎡:2+1房2卫,折后总价650万-750万,折后单价7.6万-8.8万;
(2)86㎡:2+1房2卫,折后总价650万-753万,折后单价7.6万-8.8万;
(3)89㎡:3房2卫,折后总价750万-1000万,折后单价8.4万-11万;
(4)125㎡:3房2卫,折后总价837万-1170万,折后单价6.7万-9.36万;
加福华尔登府邸位居福田CBD,地处深圳市核心位置,是集行政、文化、信息、国际展览、金融商务等于一体的综合服务中心,占据着城市顶级资源,拥有得天独厚的区位优势
基础信息
产权年限:住宅,70年
产权年限:1998年~2068年
交房时间:2023年8月31日
交房标准:毛坯
总户数:462户
梯户比:6梯8户
楼层:地上67层,地下3层
占地面积:7602平方米
建筑面积:51581平方米
总楼层:67楼
层高:3.25米
5楼起卖(主力户型85-86-89-125平2-3房)
开发商:加福投资(深圳)有限公司
物业费:8.9元/平方米/月
物业公司:华尔登物业管理(深圳)有限公司
楼层总高239米
车位数:500个
车位比:1:1.1
学校:福田外国语南校区小学初中
交通配套
项目与地铁4号线的交汇站福田口岸站(距离约380米)无缝接驳,同时还临近地铁7号线福民站,可轻松换乘多条地铁,畅通全城。
商业配套
接驳地铁|奢享一站式商业空间
接驳地铁商业,共同打造高品质、高标准的一站式繁华商业空间
尽享福田CBD繁华版图,拥揽卓悦中心、卓越世纪中心、深圳中心城广场、COCOPAPK、皇庭广场等超级SHOPPING MALL。深圳的繁华商业步行街—水围文化商业街为邻,于传承老店里享受繁华慢时光。
教育配套
项目周边教育资源非常丰富,据不完全统计项目1.5公里范围内学校不少于17所,其中像福田保税区外国语学校、福田外国语学校南校区、荔园外国语小学水围小学这种知名度和口碑度较高的学校距离项目也都非常近。

医疗配套
项目距离最近的是福田妇幼保健院,开车15-20分钟可达北京大学深圳医院,福田人民医院,深圳儿童医院,深圳市福田区中医院,中山大学附属第八医院,福田第二人民医院,深圳市眼科医院,香港大学深圳。

休闲配套
周边环绕超500公顷的360度环幕景观,北看福田CBD繁华城市景观、南看香港米浦,西看深圳湾、东看罗湖城市景观,集萃深圳中心最高端丰盛的景观资源,创造完美的城市生活平台。
楼盘优势
1、优越地理位置:项目位于福田CBD核心区域,紧邻福田口岸,享有三地铁(4号线、7号线、10号线)及双口岸的便捷交通网络,出行极为便利。
2、丰富教育资源
:周边有福田外国语南校区等优质学校,为九年制公立学校,教学质量上乘,为孩子提供良好教育环境。
3、高品质建筑与设计:项目设计取意于“鹏城”的“鲲鹏”之态,外观典雅,采用国际品牌用材,配备高端硬件设施,如日本原装进口三菱高速电梯等。
4、专业物业服务
:华尔登物业提供服务,秉承五星级酒店专业、规范的服务体系,打造24小时管家式服务。
户型图赏析:
深圳福田CBD-加福华尔登府邸 售楼处电话☎:400 006 8087【售楼处已认证】✅
深圳福田CBD-加福华尔登府邸 售楼中心电话☎:400 006 8087【售楼中心已认证】✅
深圳福田CBD-加福华尔登府邸 营销中心电话☎:400 006 8087【营销中心已认证】✅
深圳福田CBD-加福华尔登府邸 销售中心电话☎:400 006 8087【销售中心已认证】✅
免责声明:部分信息来源于网络,如果侵权,请联系及时删除本宣传资料不构成邀约邀请,对周边、政府规划、商业配套、教育资源、投资前景等数据和图文仅为提供相关信息,该信息以政府最终批文为准,开发商不对此作任何承诺。买卖双方的权利义务以双方签订的买卖合同约定及附件、实际交付为准,本公司保留对宣传资料修改的权利,敬请留意最新资料。
声明:本文由入驻焦点开放平台的作者撰写,除焦点官方账号外,观点仅代表作者本人,不代表焦点立场。
