「塘城壹号花园售楼处电话」塘城壹号花园营销中心预约接待展厅电话-评价如何--地铁站点-交房时间-户型图-2025.9.1最新消息@多少钱一平
扫描到手机,新闻随时看
扫一扫,用手机看文章
更加方便分享给朋友
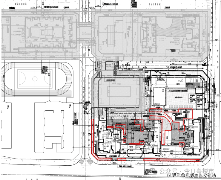
项目由4栋45F超高层住宅、3栋40F、30F写字楼、1栋45F保障房、1栋3F幼儿园以及一所九年制学校组成,未来将建设成为集住宅。
【推售产品】67-87-96-125平2-4房
塘城壹号花园所处区位是龙华的次中心,紧邻北站国际商务区,800米范围拥有3站地铁(含在建),是深圳13个重要交通枢纽区域之一,交通条件得天独厚。项目本身规模巨大,品类众多,集成了住宅、保障性住房、办公、商业、公共配套等多项品类于一体,总建筑面积约55万平米。

地铁:项目距离6号线【上芬站】就在楼下,是名副其实的双地铁口物业,4号线地铁【上塘站】仅300米,乘坐地铁到深圳北约10分钟,到福田约20分钟,到南山约40分钟,通勤时间进一步缩短。
毗邻华东师范大学附属深圳龙华学校
项目自带一所幼儿园,旁边有54班九年一贯制【华东师范大学附属龙华学校】、未来小学、龙华实验学校、和平实验学校、龙华信义学校等教育环绕,营造书香人文大境。
项目本身自带一定体量商业,加上项目周边有不少小区底商,此外距离大型商业AT MALL上塘荟约500米,平时购物很方便
再远一点,距离龙华壹方天地购物中心、天虹购物中心约2公里,距离红山6979约2.8公里,如果需要到这些大型商场,可以乘坐公交或者自驾前往,完全能满足平时周末满足购物休闲娱乐的需要。
塘城壹号花园充分利用上塘核心的区位优势和TOD的驱动优势,打造高密环境下的立体枢纽。通过高效集约的布局规划,将完善的配套有机结合,并在平接轨道站点的三层设置连接住宅、办公、商业的空中大堂,实现站城一体、无缝接驳。在此基础上融入便捷交通场景、城市空间场景、日常闭环场景、超级中心场景、都会办公场景五大生态场景,实现传统 TOD到TOD+的进化 。
塘城壹号花园前身是恒大岳盟工业区城市更新单元,该更新单元总占地面积约3.5万㎡,总建筑面积约55万㎡,官方规定容积率11.54,绿化率30.05%。

此后项目由安居建业集团接手,背后站着人才安居、深业、万科、特区建工集团四大巨头。
该更新单元共分3个地块开发建设,总计建设6栋住宅、3栋写字楼。
02地块,1栋35层保障性住房,1栋16层写字楼。
04地块,1栋52层保障房,1栋53层住宅,1栋33层写字楼
05地块,3栋54-64层超高层住宅,1栋45层写字楼,1栋12班制幼儿园。

这一次首推的塘城NEXT TOWN,是05地块。首推货量603套。其中,67㎡2房共228套;87㎡3房共163套;96㎡3房共163套;125㎡4房共49套。精装交付。
大部分朝向好、视野好的户型,主要集中在5栋4/5单元,部分96㎡、125㎡户型视野好、朝向好,户型结构好,如果实际价格低于周边,可以无脑冲;
2、67㎡、87㎡户型部分户型视野受限,选择时要考虑楼层、朝向。
适合年轻刚需上车,400多万就能挨上红山的边,毕竟是深圳排名前几的网红片区,性价比不错。
整个项目的体量比较大,投资的时候要综合考虑周边竞品情况。
公积金首套:2.6% 二套:3.075%





声明:本文由入驻焦点开放平台的作者撰写,除焦点官方账号外,观点仅代表作者本人,不代表焦点立场。
