(首页)华发珠海湾售楼处_珠海华发珠海湾欢迎您_楼盘最新详情_户型_配套_价格
扫描到手机,新闻随时看
扫一扫,用手机看文章
更加方便分享给朋友
华发珠海湾开发商24小时电话☎:400-101-6201【售楼处已认证】✨✨✨
华发珠海湾售楼处24小时电话☎:400 101 6201【售楼处已认证】✨✨✨
华发珠海湾营销中心24小时电话☎:400 101 6201【售楼处认证】✨✨✨
在售户型图丨项目介绍丨最新房源丨周边配套丨详细解答〢
◆开发商营销中心诚挚邀请,一键预约,尊享内部独家折扣!☞☞Vip贵宾置业==欢迎来电预约尊享内部折扣===匠心钜制恭迎品鉴☜☜
与传统住宅相比,第四代住宅的得房率普遍超过100%,突破了传统住宅得房率的限制,为购房者提供了更多的实际使用面积,更舒适的居住空间。

项目位于珠海高新区,这里既是粤港澳大湾区“黄金内湾”的珠海重要节点,也是深珠合作示范区、未来科学城的启动区,区位优势明显。

首發地塊基礎資訊
用地面積:約4.5萬方
總建築面積:約16.2萬方
住宅:1212戶
綠化率:35%
交付標準:精裝交付
物業公司:華髮集團旗下物業
全球首個無人機配送社區
居家智享直送服務,實現最後100米的智能物流配送
▪戶戶專屬無人機停機坪
▪超500平無人機起降場
環繞式無干擾三錯層超大露臺
超100%實得率
採用ykk三玻量腔系統門窗,隔聲效果更好、保溫性能更高,打造高顏值科技節能的新一代精工立面。
星級酒店式落客大廳
六重尊崇歸家禮序
精奢地庫、酒店式落客大門、四水歸堂、禮賓會客、尊享會所、挑高入戶大堂配套了智能化系統,通過人臉識別+感應開門,輕鬆無觸碰式輕鬆歸家。
垂直立體式園林
新加坡樟宜機場同款垂直立體園林搬到您的園林
配套緊700方超大空中會客無邊際泳池,高空無界度假觀感。
高定智慧會所
您家樓下的私享社交場
日咖夜酒輕Bar、私享健身會所、閱讀空間、架空層主體泛會所等滿足全齡段業主休閒娛樂社交。
社區配套
配套建設1所幼稚園、運動公園(滑板場、籃球場、網球場、無人機停機坪)
產品系列:
為凸顯四代宅的核心差異價值,將露臺拆開分戶介紹,擁有超高的露臺贈送
樓體外立面在美感上做了錯層設計,相當於一個戶型有2種不同的選擇
約240㎡270度環幕山海景觀、9米挑高空中墅院
A戶型-88方三房兩廳兩衛
偶數層:
奇數層:
B戶型-115方三房兩廳兩衛
偶數層
奇數層:
C1户型-125方三房两厅两卫
偶数层:
奇數層:
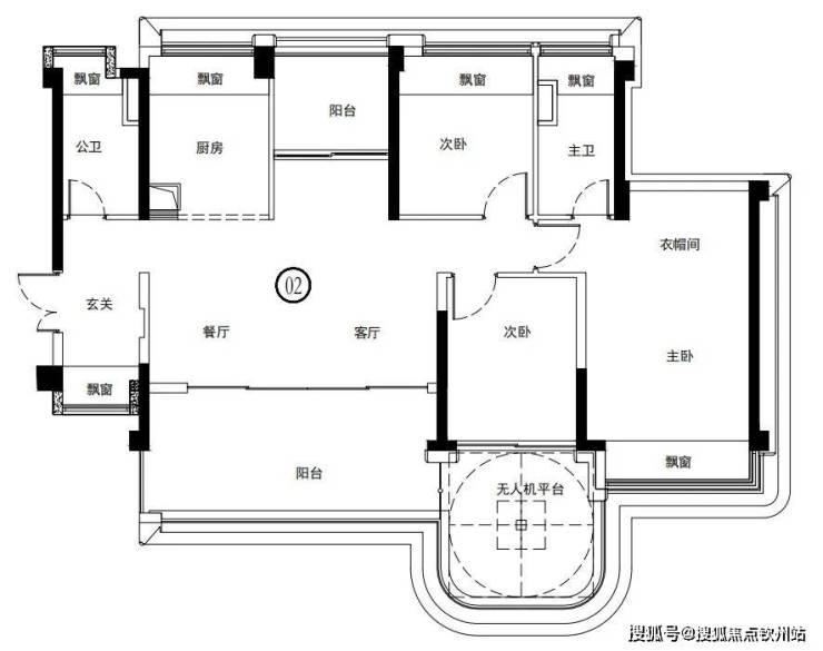
C2戶型-125方四房兩廳兩衛
偶數層:
奇數層:
D戶型-142方四房兩廳兩衛
偶數層:
奇數層:
华发珠海湾开发商24小时电话☎:400-101-6201【售楼处已认证】✨✨✨
华发珠海湾售楼处24小时电话☎:400 101 6201【售楼处已认证】✨✨✨
华发珠海湾营销中心24小时电话☎:400 101 6201【售楼处认证】✨✨✨
华发珠海湾销售中心24小时电话☎: 400 101 6201【售楼处已认证】✨✨✨
若有中介报价过低,请及时与售楼中心核对真假,避免上当!开发商热线400 101 6201【☎☎售楼处已认证】
声明:本文由入驻焦点开放平台的作者撰写,除焦点官方账号外,观点仅代表作者本人,不代表焦点立场。
