【2025.9.18】深业世纪山谷商墅售楼处电话@首页网站-深业世纪山谷商墅营销中心电话-深业世纪山谷商墅欢迎您-楼盘详情-周边配置-最新价格-热线电话
扫描到手机,新闻随时看
扫一扫,用手机看文章
更加方便分享给朋友
…深业世纪山谷商墅……深业世纪山谷商墅……
项目还毗邻约200万㎡高尔夫球场,推窗即享一线果岭生态景观,四大公园环绕,畅享湿地郊野的清新与宁静。
🚀深业世纪山谷引爆华侨城 🚀
🚀深湾鼎豪 传世墅院🚀
‼️绝版产品仅6⃣席 ‼️
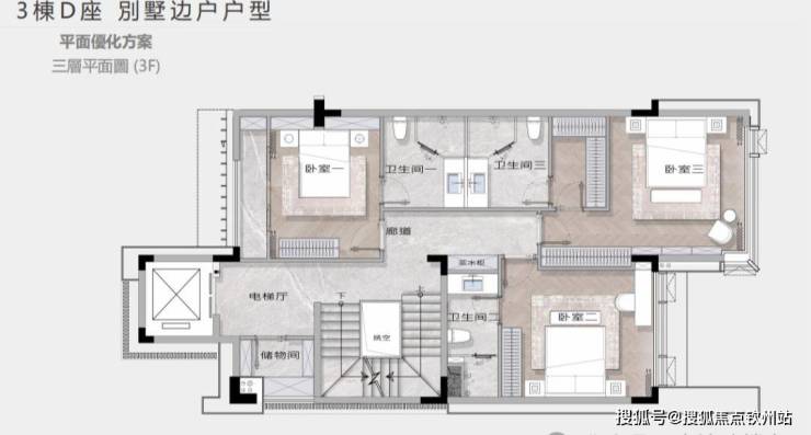
【在售面积】386-405平
【核心价值】
1.华侨城地块稀缺性 绝无仅有
2.国企背书 高品质 高圈层
3.独门独户 专梯入户 管家专属服务
4.总价3⃣字头起🉑买华侨城的别墅
5.带露台花园 使用率超100%
6.单独停车位 一户配置3个
项目占位深湾中轴头排,无敌视野,坐拥山/河/海/湿地/郊野五重稀缺自然景观资源,璀璨盛景尽收眼底,他处很难再有。
深业世纪山谷位于总长约13.7km的大沙河生态长廊之上,南可俯瞰深圳湾海景、东望波托菲诺别墅区、北望塘朗山。朝看绿木晨露,暮看夕阳铺水,享受惬意生。


众所周知,拥有稀缺头排景观的物业,房价表现及溢价能力要强于非头排物业。譬如全球最贵豪宅ONE 57,就是纽约曼哈顿中央公园的头排物业。
梳理数据可以发现,在深圳湾豪宅区内,有头排景观的物业比非头排物业普遍贵约20-30%。如华润深圳湾瑞府,看海景户型比不看海景户型要贵约30%。

声明:本文由入驻焦点开放平台的作者撰写,除焦点官方账号外,观点仅代表作者本人,不代表焦点立场。
