深圳首页热搜:绿景白石洲售楼处电话→绿景白石洲2025最新房价→楼盘百科详情@售楼处中心
扫描到手机,新闻随时看
扫一扫,用手机看文章
更加方便分享给朋友
深圳——绿景白石洲最新介绍:备案价、折扣、学区、地铁、交通、户型图、特价房、优缺点、得房率、优惠活动、小区图片、开盘时间、交房时间、周边配套、最新详情等咨询。
绿景白石洲售楼处电话: 400 -045-8086预约来访下定当天更享折上折!!
(售楼中心 | 欢迎来电咨询 | 请提前预约登记看房 | 1:1销售专业讲解)
绿景白石洲营销中心热线: 400-045-8086(售楼处)【VIP贵宾专线】
户型鉴赏

建面约110m²三房两厅两卫
瞰景三房,卧室标配飘窗,观景阳台展开风景画卷
|餐客一体化,连通阳台,畅享全家欢聚时刻
|动静分区舒适化营造,休慎与家庭活动互不干扰
|主卧私享化,独立卫浴、衣帽间,自在天地一隅
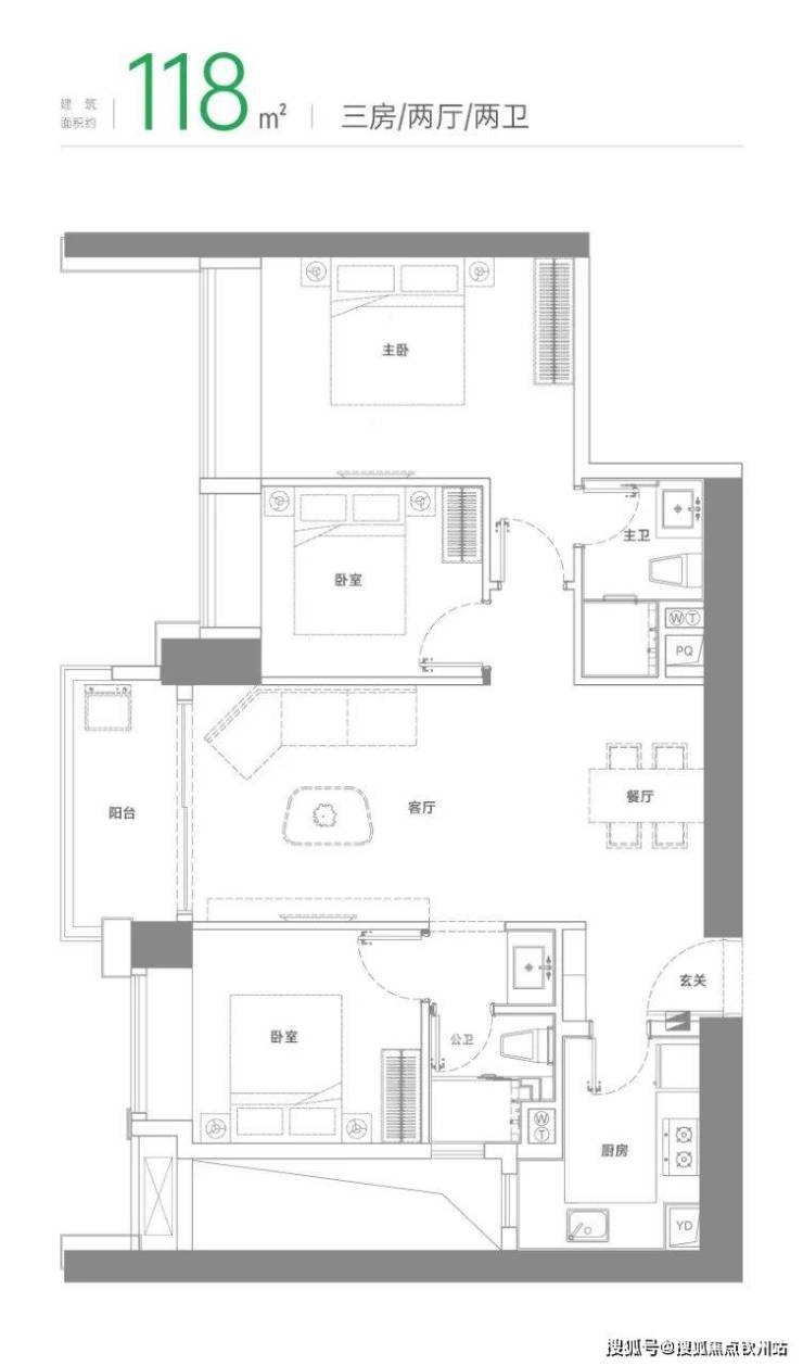
建面约118㎡三房两厅两卫
横向四开间设计,南向约13.4m奢华采光面,和光同悦南向观景C位,客厅、卧室随心眺望窗外城市风景
奢享主卧,生活阳台、衣帽间、私人卫浴,独享非凡领地
餐客一体贯通阳台,打造舒适、宽敞的家庭欢聚天地本户型所在位置示意

东是华侨城豪宅区,南有深圳湾超级总部基地,西临高新园,北靠塘朗山,风水天成,价值洼地!
传奇总在续演,青春永不落幕!
绿景白石洲·璟庭
项目基础资料
【发展商】绿景天盛集团
【项目总名称】 绿景白石洲
【项目总建面】约500万平
【本次推售】绿景璟庭(一期)
【一期占地】约3万
【一期建面】约46万平
【产权年限】70年
【本次推售】住宅
【推售户数】1257套
【推售面积】110-125-187平
【总楼层】74层
【层高】3米
【梯户比】高区3梯6户、低区4梯7户
【产品面积】110-125-187平米
【使用率】71%
【单价】约9万
【车位数】1983个
【交楼标准】精装
【交付时间】2025年年底
【物业费】8.8元
【物业公司】绿景物业
超级十字轴心 深圳价值之核
绿景白石洲位处深圳 gdp 首区南山区的核心地段,深南大道横轴和大沙河科创走廊纵轴交汇的超级十字轴心,链接四大总部基地,聚合城市发展能量,为未来总部基地规划的精英技术人才打造高端生活配套区,代言深圳价值高度。
深圳中央公园 高阶峰层资产
深圳市南山区国土空间分区规(2021-2035年)(审批中)中提出深圳唯一的"中央公园",以深圳湾 Cbd +中央公园构筑深圳核芯引擎,集聚全球总部企业、高端居住圈层和高阶完善配套,一座中央公园代表深圳未来的价值选择,看见未来全球高级别城区风范。

区域价值
绿景白石洲位位于深圳 gdp 首区南山区的核心地段,深南大道横轴和大沙河科创走廊纵轴交汇的超级十字轴心,链接四大总部基地,聚合城市发展能量,为未来总部基地规划的精英技术人才打造高端生活配套区,代言深圳价值高度。
2035规划中深圳中央公园 高阶峰层资产
深圳市南山区国土空间分区规(2021-2035年)(审批中)中提出深圳唯一的"中央公园",以深圳湾 Cbd +中央公园构筑深圳核芯引擎,集聚全球总部企业、高端居住圈层和高阶完善配套,一座中央公园代表深圳未来的价值选择,看见未来全球高级别城区风范。

交通配套
一期绿景璟庭离1号线白石洲站约800米左右,离2号线的世界之窗站约1.5公里;此外还有29号线白石洲北(2023年已经开始建了,预计28年通车)就在一期璟庭楼下;29号线自南向北连接南山红树湾到光明科学城,未来三站即可到达深圳最大高铁站西丽高铁站(在建中)。
自驾出行也很方便,连接深南大道、北环大道、沙河东路等城市干道,而且都耗资做了地下层通道,可以直通项目地下停车场,能避免部分拥堵。
商业配套
自带超40万m²城市旗舰级商圈,涵盖国际购物中心、立体生态街区、地下步行街、高端社区 Mall 等全业态、全场景,一条1.2公里中央绿轴串联各业态空间,形成集购物、旅游、文娱为一体的城市新潮打卡地。
教育配套
白石洲1公里范围内,聚集了5所初中,7所小学。项目所处片区已纳入南山外国语集团教学,现在周边有沙河小学,南山第二实验学校,且项目自身带4所幼儿园共57班,3所九年一贯制学校共90班,学校都会在一期建成时共同交付。
医疗配套
楼盘3公里范围覆盖香港大学深圳医院、华侨城医院、沙河医院等康体医疗资源,其中一级甲等公立医院沙河医院距离项目仅为百米之内,未来本项目业主可以近享一站式高品质健康诊疗服务。
生态配套
约3.4平方公里中央公园、约24万m2燕晗山郊野公园、约68.5万m2华侨城国家湿地公园、深圳湾超总十字生境、绿景白石洲约1.2公里中央绿轴,约15km滨海长廊,与华侨城三大主题公园,共同组成深圳超级公园带,每一次呼吸与远眺,都有来自国家级生态保护区的气息
售楼处热线:400-045-8086【营销中心】
本文内容为广告推广,涉及房价或现有房源可能出现变更,请致电详询并以售楼部为准
免责声明:本文如无意中侵犯了某方的知识产权告知即删,部分内容图片可能来源于网络,无法核实其真实出处,如涉及侵权请联系本网站删除!!
声明:本文由入驻焦点开放平台的作者撰写,除焦点官方账号外,观点仅代表作者本人,不代表焦点立场。
