珠海华发香山湖畔最新信息-2026新年咨询详情-华发香山湖畔售楼中心电话
扫描到手机,新闻随时看
扫一扫,用手机看文章
更加方便分享给朋友
珠海华发香山湖畔;华发科技+好房子迭代力作;国际酒店化智慧住区
华发香山湖畔售楼中心电话:400 033 9667【已认证】
华发香山湖畔售楼处电话:400-033-9667【已认证】
华发香山湖畔营销中心电话:4000339667【已认证】
在售户型图丨项目介绍丨最新房源丨周边配套丨详细解答〢
◆开发商营销中心诚挚邀请,一键预约,尊享内部折扣!匠心独运的精品项目,恭候您的品鉴与选择。
项目最新介绍:房价、折扣、户型图、特价房源、得房率、优惠活动、开盘时间、交房时间、周边配套、最新详情等咨询
开发企业:华发股份
产品类型:高层/超高层住宅、商业
建筑风格:现代
项目规划强调与城市整体风貌自然融合,项目自南向北,从文化宫方志馆、南塔、北塔、到凤凰山脉依次升高,打造极具美感的天际线,同时采用板式建筑和全面宽玻璃设计,结合独有的看山资源,实现景观及朝向资源最大化。
塔楼立面采用竖向线条主边框,营造秩序感与挺拔感,横向线条的飘板, 创造出了独特的水平延伸感,勾勒同频国际的时代审美。采用无山墙设计,以景观资源最大化为导向,所有外墙面能开尽开,实现高窗墙比。塔冠呈现极富生命力的曲线,赋予建筑张力,打造金色塔冠美学。
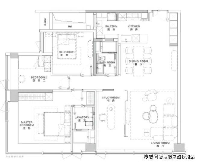
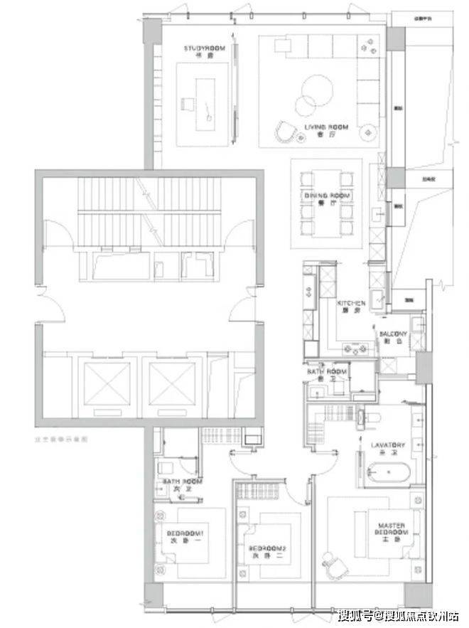
项目涵盖建面约108-205㎡面积段户型,户型方正,LDKB厅餐客一体化设计,多面宽南向采光,360°采光楼型,栋栋视野无遮挡,转角主卧270°景观视野。灵活开合拓宽空间。
▲户型② 建面约134㎡户型
200㎡户型硬装设计为灰白绿色调,定制全铜入户门+隐藏智能门锁,地面天然石材设计;赠送客厅背景墙、木饰面及全屋玻纤壁布。142㎡户型采用定制灰调,天然木质与岩板搭配,柜体材质选用天然影木木皮面板加灯带设计,软装设计搭配皮革、木质、岩石、贵金属,运用不同材质的交叠,与空间体量呼应。
区位绝佳:被公园与城市综合体环绕
项目位于香洲区迎宾北路东侧、梅华东路南侧,既是新香洲核心地段,又处于兴业路快线迎宾支线隧道出口,这意味着由此到高新区,也只需20分钟。
在这个稀缺招牌打造上,香山湖畔也发挥到极致,项目以180米地标超塔之姿矗立,构成业主专属的"上帝视角",将珠海城央独有的自然生态馈赠与景观秩序——山、水、园、城同时装进窗框,地标豪宅气质傲视全城。
配套「尊贵感」
稀缺与极致体验的统一
当然,有了卓越地段作为豪宅底色,在产品力的打磨上,香山湖畔更是不留余力。
项目抛弃了传统社区设计,而将约3.5万平米的精奢级华发商都作为整个楼盘的底盘,让住宅楼盖在这个超级底盘上,由外到内,创新打造了垂直生活圈模式,构筑了一个别样但丰富完整的生活场景。
开发商售楼处热线:400 033 9667 【营销中心】
本文内容为广告推广,涉及房价或现有房源可能出现变更,请致电详询并以售楼部为准
免责声明:本文如无意中侵犯了某方的知识产权告知即删,部分内容图片可能来源于网络,无法核实其真实出处,如涉及侵权请联系本网站删除!!!
声明:本文由入驻焦点开放平台的作者撰写,除焦点官方账号外,观点仅代表作者本人,不代表焦点立场。
