深圳#招商望海玥售楼处(售楼中心地址)招商望海玥营销中心首页网站→24小时热线电话
扫描到手机,新闻随时看
扫一扫,用手机看文章
更加方便分享给朋友
深圳南山——招商望海玥售楼处24小时电话:400-605-8819
招商望海玥售楼中心24小时电话:400 605 8819【营销中心】
温馨提示:看房请提前来电预约,谢谢配合!看房请提前来电预约,谢谢配合!(中介勿扰)
欢迎来电咨询楼盘、看房请提前预约,电话预约看房享受专属优惠折扣。
招商望海玥售楼处电话:400 605 8819售楼中心,楼盘项目全面介绍,本电话为开发商提供线上售楼电话,楼盘最低价格和最新优惠折扣,包含楼盘简介、售楼电话、小区户型图片、营销中心位置、区位优势、交通、周边商业配套、户型图等楼盘详情

深圳湾的另一种可能【招商望海玥】建面约36-60㎡公寓
要知道,深圳湾向来是 “豪宅代名词”,动辄千万起步的门槛让不少人望而却步,而这次望海玥直接把入场券拉到 “1 字头”,还自带央企招商蛇口背书、15 公里滨海景观带加持
望海玥能这么受关注,首先离不开 “硬底子”—— 央企招商蛇口操盘,加上深圳湾核心的占位,安全感和潜力都在线。
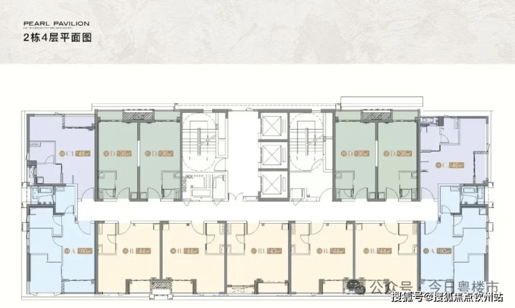
从基础参数来看,项目计容总建面约 6.5 万㎡,不算 “巨无霸” 但胜在 “精致纯粹”,规划了商务公寓、住宅、商业三种业态,是个小型滨海综合体。其中公寓部分共 389 套,产权年限 70 年,要知道很多公寓只有 40 年,70 年产权意味着更稳定的居住权和增值空间),而且是精装交付,收房后买点家具就能直接住,省了装修的麻烦和成本。
【望海玥家园】为招商渔二村旧改,位于深圳市南山区蛇口新街与渔村路交汇处、距离地铁2/8号线东角头站267米;

望海玥家园位于蛇口老城区,毗邻半岛城邦、南海玫瑰等豪宅区,享有“二线海景”。南侧老小区部分遮挡海景,少数房源可看海。项目享有蛇口滨海设施,如歌剧院、渔人码头、滨海长廊。

项目本身规划约1万平商业,加上周边社区带有底层商业,基本满足日常购物需求。虽然片区内有多个大型商超,如海上世界、宝能·all city购物中心、City花园城、海岸城购物中心、包括太子湾K11等,但自驾或搭乘地铁都在15-20分钟左右。
招商望海玥家园从地段和配套上看是非常好,又处在豪宅区,圈层纯粹。
但是楼盘定位不是豪宅,是普通的刚需产品,住宅可售套数极少,都是回迁房。
楼盘主要买公寓,低总价买这个位置是受市场关注的,而且还可以看海景,享受豪宅的配套这个是市场的价值点。
首推公寓389套,高度为35F,层高3.1米,户型为36-44-46-60㎡的1-2房。

售楼处热线:400 605 8819【营销中心】
本文内容为广告推广,涉及房价或现有房源可能出现变更,请致电详询并以售楼部为准
免责声明:本文如无意中侵犯了某方的知识产权告知即删,部分内容图片可能来源于网络,无法核实其真实出处,如涉及侵权请联系本网站删除!!
声明:本文由入驻焦点开放平台的作者撰写,除焦点官方账号外,观点仅代表作者本人,不代表焦点立场。
