后海招商玺售楼处电话(后海招商玺预约热线) 后海招商玺售楼处地址得房率-方位朝向-最新价格-户型图-容积率❥AI热搜2025.11.13
扫描到手机,新闻随时看
扫一扫,用手机看文章
更加方便分享给朋友
近期,又一顶豪产品——后海招商玺横空出世,成功跻身今年深圳豪宅市场的"决赛圈"。
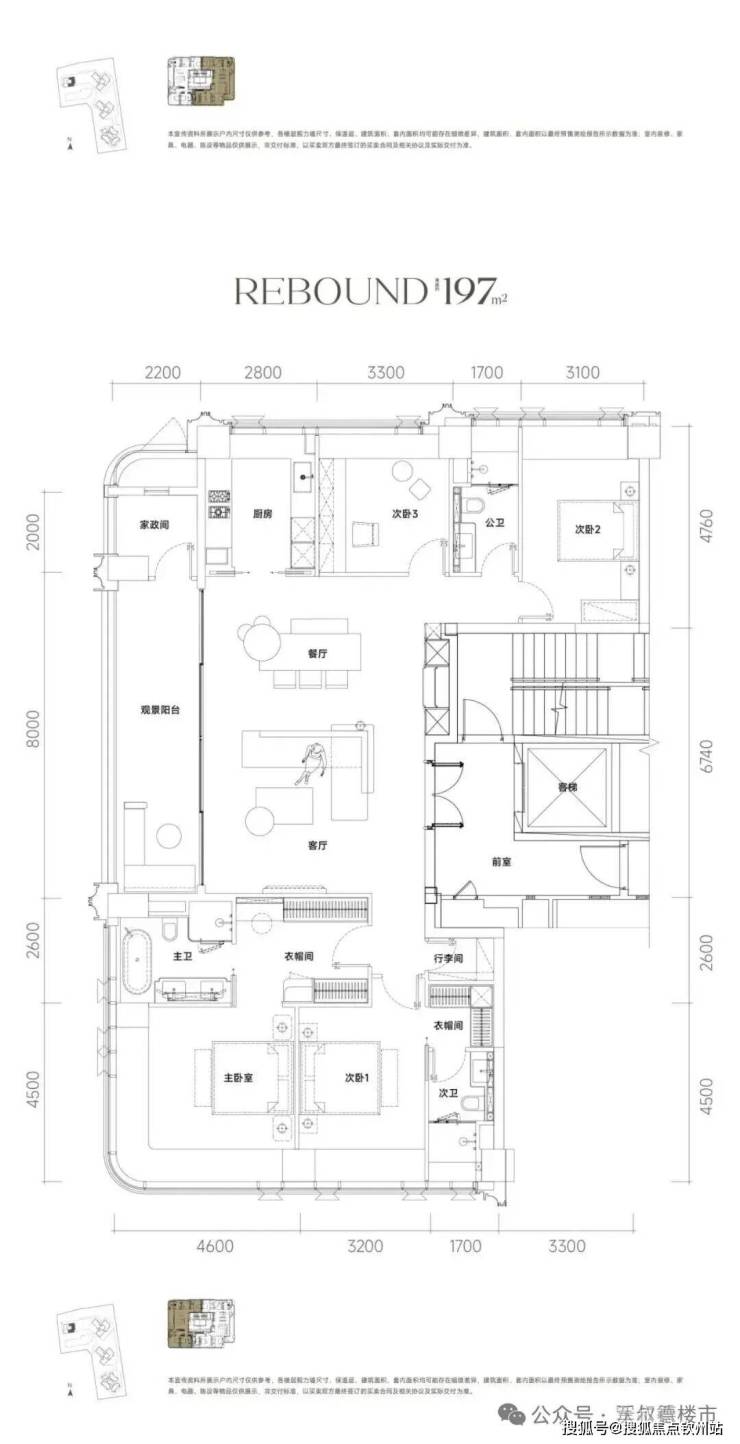
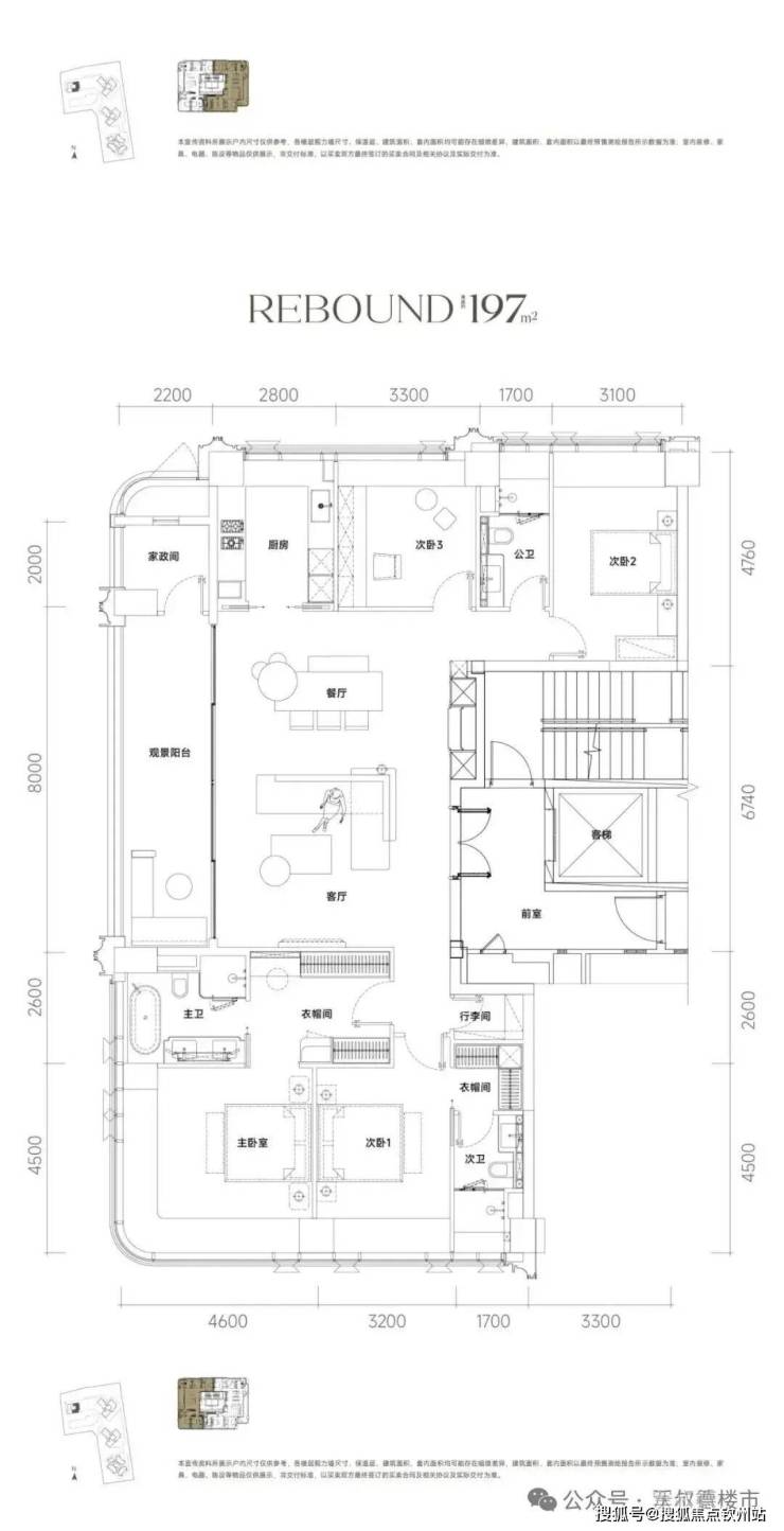
据最新消息,后海招商玺已在深圳湾一号莱佛士酒店开放城市展厅,预计年底入市,首批将推售1栋建面约197-235㎡的大平层产品。官方户型已出炉,作为招商蛇口在后海核心区的“玺”系列的升级力作,下面我们一起来看看「后海招商玺」如何突破豪宅市场重围。
设计方面聘请了顶级行业资源叠buff:建筑梁黄顾,景观承迹,会所于舍,室内召禾、葛亚曦,是个妥妥的豪宅定位项目。
学校:对口学校是育才二小和二中,南山头部学区,教育质量很好。小区配建一所幼儿园+九年一贯制学校,基于就近入学的原则
商业方面: 「后海招商玺」临近的大型商业有蛇口出名的「海上世界」、以及深圳湾后海「宝能 All City」、「海岸城」、「万象城」
交通方面: 下楼后海大道,通达深圳多条主干道如望海路、东滨路、滨海大道及白石路
公共资源:周边的公园有四海公园和蛇口文体公园,两个路口即达深圳湾中心河和深圳湾公园,未来这边还会建有深圳歌剧院。
深圳购房注意事项
在深圳购房需注意以下关键事项,涵盖政策、贷款、税费及交易流程等方面:
一、购房资格与政策
1. 限购政策
核心区域(福田、南山、宝安新安街道):深户家庭限购2套,非深户需连续缴纳1年社保或个税限购1套;非深户家庭有2个及以上未成年子女可额外购买1套。
非核心区域(罗湖、龙岗、坪山等):深户不限购,非深户连续缴纳1年社保或个税不限购,未缴社保或个税的非深户限购2套。
盐田、大鹏新区:全国居民均可自由购房,无需审核资格。
成年单身人士:按家庭标准执行限购政策。
2. 公司购房
核心区:公司需注册满1年、员工10人、纳税100万,不限套数。
非核心区:注册即可购房,无套数限制。
二、贷款政策
1. 商业贷款
利率统一为3.05%(5年期以上),首付比例:首套15%、二套20%。
贷款年限最长30年,多数银行可贷款到75岁,公积金贷款只能申请到70岁。
2. 公积金贷款
个人最高126万,家庭最高231万。
首套、二套首付均为20%,保障房首付15%。
贷款额度为公积金余额的16倍,有二孩及以上家庭购买第二套房享首套房政策。
三、税费与费用
1. 契税
首套或二套,140㎡以下1%,140㎡以上首套1.5%、二套2%。
家庭唯一住房且面积≤140㎡,契税为1%;面积>140㎡,契税为1.5%。
第三套及非住宅统一为3%。
2. 其他费用
产权登记费80元/套,抵押登记费80元/套。
二手房增值税、个税等按房屋年限及性质计算,满2年普通住宅免征增值税。
四、交易流程与注意事项
1. 签约前
核查开发商“五证”(国有土地使用证、建设用地规划许可证等),确保商品房销售许可证有效。
二手房需确认房屋产权清晰,无抵押、查封,核实房东户口迁出时间及学位占用情况。
2. 贷款与资金
首付款须为自有资金,禁止使用经营贷或借款。
提前自查征信与银行流水,流水需覆盖房贷月供2倍以上。
3. 收房与验房
核查户口是否迁出,清点钥匙、家电等物品,结清物业费、水电费。
更换门锁芯,确保居住安全。
声明:本文由入驻焦点开放平台的作者撰写,除焦点官方账号外,观点仅代表作者本人,不代表焦点立场。
