首页网站-中建鹏宸云筑首页网站2025营销中心欢迎您-中建鹏宸云筑楼盘详情-最新价格-户型图-容积率@售楼处
扫描到手机,新闻随时看
扫一扫,用手机看文章
更加方便分享给朋友

正式启动登记认筹!梅林关红盘【中建鹏宸云筑】再推9栋!于8月31日8栋开盘选房,目前已选房结束,官方数据揽金8.2亿,共卖了126套,去化8成左右。共282批客户入围,比例1:1.83,目前所剩优质已经不多!本次加推的9栋户型为104-120㎡的纯四房产品,位置非常不错,依旧是看山看水库一线景观!

鹏宸云筑西区地块8栋,折后总价在526-863万/套,这次西地块的9栋开盘,估计差不多。
(折后单价表 / 总价表)
103㎡,91套,均价5.64万/㎡,开盘5.1-5.9万/㎡,总价526-604万
118㎡,31套,开盘5.5万/㎡,开盘5.1-5.7万/㎡,总价604-668万
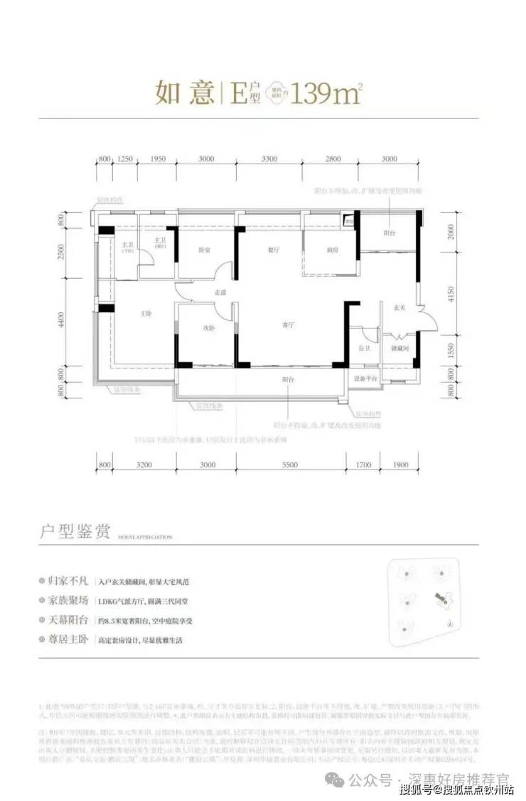
139㎡,31套,开盘均价6万/㎡,单价5.4-6.2万/㎡总价756-863万
项目分为东、西两个地块开发。总占地4.2万,总建面31万,计容积率5.37,总户数1992户,东区1016户,西区976户,总停车位2155个,东区1059个,西区1096个停车位
东区:占地约2.1万㎡,容积率5.28,包含住宅、商业、文化活动室、老年人日间照料中心和其他基础配套设施。1栋、2栋总高47F,3T6户;3栋、5栋总高32F,2T6户;6栋总高32F,2T5户;4栋属于商业,总高2层。
西区:占地2.2万㎡,容积率5.16,包含住宅、商业、幼儿园学校和其它基础配套设施。7栋栋总高47F,3T6户;8栋、9栋、10栋总高32F,2T5户;11栋总高46F,3T6户,2T5户;1栋是幼儿园。

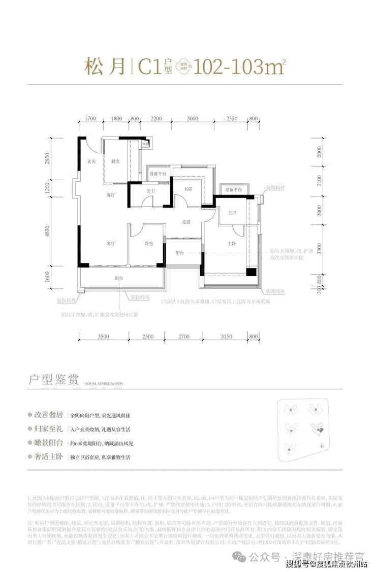
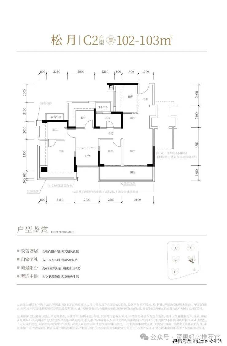
东区从去年以来开盘了4次基本每次都销售超90%,半年时间销售超700套!如今项目东区还有少量81-91-126㎡在售,目前三季度公布了要加推154套也就是西区地块了!之前就猜测西区地块首推154套大概率是8栋的32层高的104-121-148㎡户型,户型大概率还是跟东地块大差不差,目前西地块8栋户型图出来了,确实是首推这栋,建面是102-118-139㎡!相比之前东区6栋大户型104-121-148户型会小几个平米面积但是格局基本是一样的就是139户型不再是双阳台了,本次推售102-103㎡共91套,118㎡31套,139㎡91套

目前诚意登记中,预计月底拿证加推,价格可以参考东区6号楼备案均价为6.12万/㎡,总价570-974万元,开盘93折,折后均价5.69万元/㎡,折后总价530-905万元。
鹏宸云筑平面图
|PLAN
(8栋平面图)
项目建面约31万方深圳城央美好生活领地,无公租房、无保障房、无人才房。采用围合式布局,以岭南建筑美学理念,打造岭南东方诗意园林。项目分32层高的2梯5户以及3梯6户,47层高是3梯6户,共10栋高层住宅组成2100户
区位介绍:
港深科技中轴之上,向南连接河套深港科技创新合作区、福田CBD,向北连接坂雪岗科技城,享有龙华福田双中心配套服务。

龙华七大重点片区之一,投资700亿元,改造占地面积4.63平方公里,将新增开发量达180万平方米,中建三局集团有限公司深度参与梅林关片区开发运营,推动片区年总产值达1500亿,打造“大湾区数字经济核心引领区、数字科创先锋示范区”。

对标深超总、腾讯企鹅岛及香蜜湖国际金融中心,四大微城市之一,产学研商住定位,世界500强海克斯康已落户,已集聚35+龙头名企,打造湾区数智产业集群,数字产业集群度达95%,驱动板块加速蜕变。
交通配套:
10号地铁线“南坑站”距离约500米,22号地铁线“横岭站”距离约700米,2站到福田冬瓜岭,4站到岗厦北,6站香蜜湖,7站车公庙。约2.5公里还有深圳最大北站枢纽,快速通达深圳各大区域。
项目周边道路有珠三角环线高速、五和大道、民乐路等,可快速到达深圳各核心区域。
商业配套:
500米范围内有8号仓奥特莱斯,在1.5公里范围内还有龙华印象汇、星河coco city、星河cocopark,天虹商场等商业综合体,举步即是繁华。

项目自带约3500㎡底商,西侧紧邻星河World商业集群,涵盖办公、零售、餐饮等多业态。此外,深圳北站商圈、坂田万科广场等均在10分钟车程内,形成多层级商业网络。
教育配套:
项目自带1所12班制幼儿园。
北侧规划有一所广东省一级学校建设标准的九年一贯制72班学校待建,据传是红山中学附属学校、龙华实验学校或者龙高集团学校其中之一的学校进驻。
根据龙华教育局2024年最新的学区划分,
小初学区:都是划分在华南实验学校。
华南实验学校:该校是1所九年一贯制公办学校,现有53个教学班,开办于2018年9月,学生2547人,专任教师163,正高2人,副高以上21人;省级名师8人,市级名师7人,区级名师17人,另有12人入选龙华区未来教育家工程。
(最终的学区划分、入学条件、招生计划等均以教育主管部门颁布的政策和学校的通知为准)
社区打造:
鹏宸云筑这种有点新中式味道的园林风格设计,也算是比较少见的,特别是这种风格,应该也属于新中式的一种,在中国文化复兴的现阶段,是个加分项。

售楼处热线:400 605 8819【营销中心】
本文内容为广告推广,涉及房价或现有房源可能出现变更,请致电详询并以售楼部为准
免责声明:本文如无意中侵犯了某方的知识产权告知即删,部分内容图片可能来源于网络,无法核实其真实出处,如涉及侵权请联系本网站删除!!
声明:本文由入驻焦点开放平台的作者撰写,除焦点官方账号外,观点仅代表作者本人,不代表焦点立场。
