热搜好房:深圳湾1号售楼处电话-深圳湾1号容积率-得房率-最新价格@售楼处2025.9.23
扫描到手机,新闻随时看
扫一扫,用手机看文章
更加方便分享给朋友
深圳湾一号位于中国深圳市南山区,正对深圳湾,毗邻深圳人才公园,享有绝佳的一线海景。是深圳湾内湖的一线海景项目,是不可复制的黄金地段。

深圳当下发展的最核心地段就是南山区(GDP占全深圳四分之一),南山区最核心就是深圳湾,这里拥有不可复制的黄金海岸线,15公里的环海长廊,要知道深圳是四大一线城市中唯一拥有海景资源的,因此海景极为稀缺!

深圳湾一号由8座塔楼及1座商业建筑组成,分为南北两区。
北区T1是写字楼,T2、T3、T4为公寓,南区T5、T6、T8为公寓,T7为环球商务中心;总建筑面积47.5万㎡。

深湾会所采用的不仅是顶级的服务标准,而且汇聚了各行各业的精英人士。与香港马会、北京长安俱乐部等知名机构的联合运作,更使其成为进入全球顶级社交圈层的入场券。
会员们可以享受到遍布全球超过250家的高尔夫俱乐部、城市康体俱乐部及商务俱乐部的特权。
深湾会的二期项目位于深圳湾一号的南区裙楼,占地2000平方米。这一区域为会员们提供了运动、休闲、宴会以及移动办公的空间,进一步丰富了会员们的日常生活和商务活动。深湾会三期的云端会所更是将奢华体验推向了极致。
深圳湾一号楼盘介绍
深圳湾一号总建筑面积47.5万㎡,由8座塔楼及1座商业建筑组成,分为南北两区,北区分为:T1写字楼、T2、T3、T4公寓;南区分为:T5、T6、T8公寓,T7为环球商务中心。

📢📢:深圳湾一号
📢📢:深圳湾一号
A户型户型介绍及户型图(约430平)
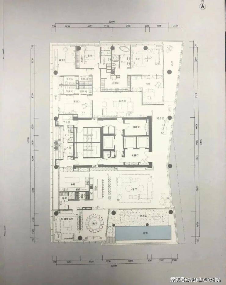
28层天际屋户型介绍及户型图958平
偶数层户介绍及户型图614平
📢📢:深圳湾一号
高区偶数层,A户型介绍及户型图(21-49层)约520平
高区偶数层,A户型介绍及户型图(21-34层)330凿-340平
📢📢:深圳湾一号
声明:本文由入驻焦点开放平台的作者撰写,除焦点官方账号外,观点仅代表作者本人,不代表焦点立场。
