开云府售楼处(开云府)首页网站-开云府营销中心欢迎您-楼盘详情·最新价格-户型图-容积率@2025.09.25售楼处AI热搜
扫描到手机,新闻随时看
扫一扫,用手机看文章
更加方便分享给朋友
开云府- 启幕城芯繁华 ��主力建面约124-203平精装3-4房,龙华价格买南山,清盘特惠
开发商售楼处24小时电话:400-065-2898(预约咨询热线)现场详细解答丨项目介绍丨户型图丨在售房源丨特价房丨学校丨交通位置丨样板房丨小区图片丨交房时间丨周边配套
124平三房二卫,675~710万
129平三房二卫,716~764万
203平四房三卫,1100~1380万
【基本信息】
🔸 占地面积:约3.4万㎡
🔸 建筑面积:约32万㎡
🔸 绿化率:30%
🔸 业态:住宅、商业、写字楼、国际五星级酒店
🔸 可售住宅:418户
🔸 物业费:6.79元/㎡/月
🔸 车位数:1346(专享地上车位:460个,综合地下车位:886个 )
🔸 车位比:约1:1.1
🔸 梯户比:T1栋4梯6户,T2栋4梯4户
🔸 交房时间:2025年6月精装交付
🔸 片区运营开发商:中国南山开发(集团)股份有限公司
🔹 项目地址:南山区赤湾六路东北侧(地铁2/5号线赤湾站E口地铁上盖)
「半岛擎峯二期」户型为124-129-133㎡三房二卫和203㎡大四房三房,除了最小的124㎡其他都是多阳台设计。纵使这个三房的尺度感比如今市面上很多刚需三房二卫要宽敞不少,但整体来看使用率确实不高。
129㎡三房二卫A1:
A1有两条腿,分别1-1栋01/02,主朝向是西北向,双龙抱珠格局。
舒适大三房设计主卧都享有270度采光面,整体空间尺度感大且采光面充足,视野非常宽阔。
129㎡三房二卫A2:
A2有两条腿,分别1-1栋03/06,主朝向是东南向,双龙抱珠格局。这个户型是超阔大阳台,朝向优于A1,但公卫是个暗卫。
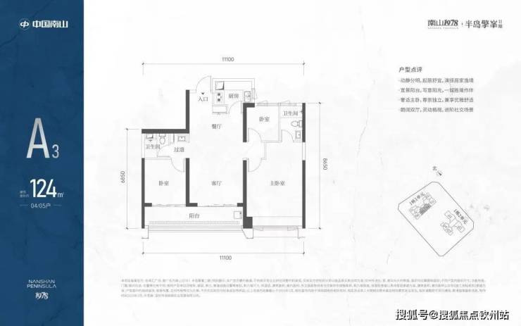
124㎡三房二卫A3:
A3也是两条腿,分别是1-1栋04/05,主朝向是东南向,双龙抱珠格局。客厅拥有超大观景阳台,缺点是公卫是个暗卫,小次卧和主卫也对天井外走廊,采光不足。
203㎡四房三卫B1:
位于1-2栋两条腿,设有电梯厅入户空间,隐私性拉满,这个空间约有面积6.27㎡,空间也可以很好利用。
整个户型设计是四房三卫南北通透,约有7.4米大阳台。双套房设置且270°景观面,主卧带独立衣帽间和大浴缸。
133㎡三房二卫B2:
B2有两条腿,分别1-2栋03/04,主朝向西南向,竖厅设计。
这个户型的所有卧室空间都比较平均,主卧两面采光,综合来看是个很完整的传统三房户型。
粤港澳大湾区,国家战略高地下的发展命题,深圳先行示范。赤湾,占位湾区核心,是深圳乃至整个粤港澳大湾区面向世界的海上门户,继后海CBD、深圳湾超级总部之后, 赤湾将是湾区最后的滨海经济体,成就世界聚焦的湾区CBD集群最后价值沃土。
项目周边配套
交通配套:山海丹华府距离2/8号地铁线“赤湾站”距离约300米,步行约5分钟即可,2站到海上世界,前海妈湾,另外附近有小南山隧道在建,待开通后可直达前海核心区,还有妈湾跨海通道在建,待开通后可直达腾讯科技岛,无缝对接中山通道。
学校配套:项目200米处有南二外赤湾学校,该校有41个班,其中小学26班,初中15班,是1所九年制公办学校;南山中英文学校,该校是1所12年制的国际学校,涵盖小学,初中,高中,于2023年9月份已经正式开学,并且开办了协同港籍学生班, 是一所获得深圳教育局和香港教育局统一批准的港籍子弟班。这也就意味着学校办学稳定,学生可无缝衔接香港的学校。
商业配套:项目约200米有约4.6万㎡赤湾汇商业(待营业),约1.9公里有约46万㎡的太子湾高端商业(在建,建成后将会是整个深圳最大体量最高端的商业体,内有K11ECOAST,兰桂坊太子湾等),约2.2公里有海上世界,2站可以抵达前海印里,前海世贸中心等商业综合体。
K11ECOAST是K11在内地的首个旗舰项目,计划在2024年底开业运营,总建筑面积约22.85万㎡,延续了K11品牌 “艺术·人文·自然”三大核心元素,涵盖K11购物艺术中心、K11 HACC多用途艺术展览空间、K11 ATELIER办公楼及Promenade海滨长廊等。
K11 ECOAST致力打造中国有影响力的海滨文化艺术区,开业后将成为深圳最大的购物中心之一,也是粤港澳大湾区的商业新标杆与名片。
如需了解更多内部折扣详情,
欢迎咨询开发商售楼处咨询/预约电话☎:400-065-2898(中介请勿扰)
温馨提示:看房请务必电话提前预约,避免临时无人接待,感谢您的配合!
开发商承诺:一对一专属开发商销售服务,尊享开发商内部优惠服务!
声明:本文由入驻焦点开放平台的作者撰写,除焦点官方账号外,观点仅代表作者本人,不代表焦点立场。
