宝安-鸿荣源珈誉府丨鸿荣源珈誉府售楼处_24小时电话-鸿荣源珈誉府楼盘详情_最新价格-户型-配套@售楼处电话
扫描到手机,新闻随时看
扫一扫,用手机看文章
更加方便分享给朋友
全国八强-深圳冠军鸿荣源珈誉府- 启幕城芯繁华 ��主力建面77-199㎡3-4房改善首选
开发商售楼处24小时电话:400-065-2898(预约咨询热线)现场详细解答丨项目介绍丨户型图丨在售房源丨特价房丨学校丨交通位置丨样板房丨小区图片丨交房时间丨周边配套
【项目名称】鸿荣源·珈誉府
【占地面积】约4.31万㎡
【建筑面积】约35.45万㎡
【推售产品】建面约76-181㎡3-5房
【交付标准】送简装
【交房时间】2025年9月30日
【产权年限】70年
【房产性质】住宅
【首推套数】2280户
【车位比】1:1.13
【容积率】5.33
【绿化率】35%
【梯户比】3T4 / 3T6 / 3T7
【开发商】鸿荣源
【物业公司】鸿荣源物业
【项目地址】深圳·宝安·11号线塘尾站
定中心:汇集三大国家战略规划,湾区价值荣耀绽放,奠定中心地位!
地铁:无缝连接11号线塘尾站,6站到宝中(22min),7站到前海(25min),9站到后海、11站到车公庙,便捷到达南山、福田。
4站直达机场东综合枢纽(规划中):大型“空铁联运”的综合交通枢纽,集国际航空、高铁(深茂铁路-在建中)、城际铁路(穗莞深城际-在建中)、地铁(1号线、12号线)、公交等多种交通方式于一体。
众多知名发展商入驻,区域城市更新整体规模超过1000万㎡,鸿荣源珈誉府属于净地开发,地块更大更完整,更纯粹,兑现速度更快,区域蝶变,一座世界级城市中心正在崛起。
深圳外国语学校(集团)宝安学校,广东省一级学校,宝安区委区政府首次引进的深圳“四大名校”。
超体量城宇宙 | 再造标杆大城
建面约248万㎡城宇宙,鸿荣源礼献湾区,缔造城市地标,以“定中心、誉未来”为打造理念的城市级的恢弘钜作,集“誉”系高端住宅、约50万㎡城市级购物中心、总部办公、高端酒店于一体。
再造一座“壹方城” 顶级全能配套
鸿荣源斥资约250亿打造的又一城市地标级“壹方城”,全国规模最大的“50万㎡全业态重奢奥莱”,由鸿荣源前海壹方城运营团队原班人马运营,相比于前海壹方城规模更大,业态更丰富,体验更高端,影响力更大,商业定中心,万千繁华尽在掌握。
✅约2.8万㎡园林景观,最大楼间距约187米
✅配备全龄泳池,亲子乐园,交流花园,构建全龄活动功能配套
✅源于莫奈《睡莲》为灵感的艺术主题花园,让您仿佛置身梦幻仙境中


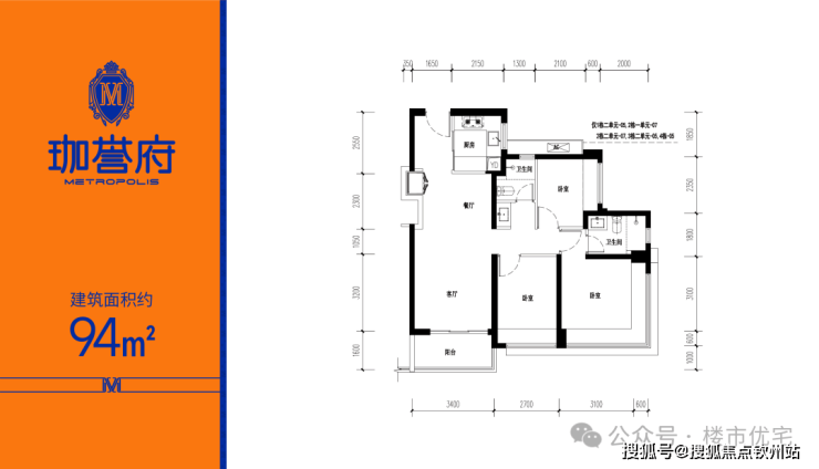
约94㎡(竖厅)三房两厅两卫【总价约435-512万】
✅三开间全园林向,改善首选,大尺度舒居三房,空间尺度感强

约94㎡(横厅)三房两厅两卫【总价约498-521万】
✅稀缺横厅,四空间坐拥超大园林主轴景观,创意3+1全生命周期户型

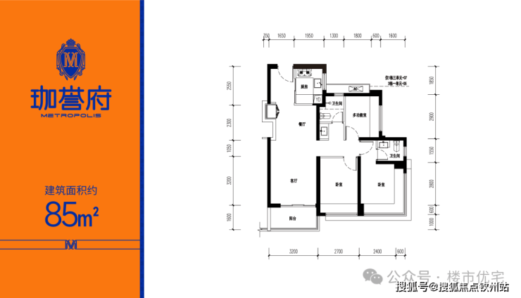
约85㎡(竖厅)三房两厅两卫【总价约396-440万】
✅主卧套房,270°采光,双卫生间设计,生活高效舒适

约86㎡(竖厅)三房两厅两卫(2区1-1-01/07)【总价约405-422万】
✅楼王单位,活动区双向互通,主卧飘窗L型设计,采光通风俱佳

约85㎡(横厅)三房两厅两卫【总价约415-455万】
✅稀缺横厅,双面通厅,超高实用率,创意“3+1”全生命周期户型

约76㎡(竖厅)三房两厅一卫【总价约372-382万】
✅南向精致三房,市场罕见,低门槛高享受,最低门槛入住全能大城

如需了解更多内部折扣详情,
欢迎咨询开发商售楼处咨询/预约电话☎:400-065-2898(中介请勿扰)
温馨提示:看房请务必电话提前预约,避免临时无人接待,感谢您的配合!
开发商承诺:一对一专属开发商销售服务,尊享开发商内部优惠服务!
声明:本文由入驻焦点开放平台的作者撰写,除焦点官方账号外,观点仅代表作者本人,不代表焦点立场。
